Back to Home Page of CD3WD Project or Back to list of CD3WD Publications

CLOSE THIS BOOKMaking of Roof Flashing - Course: Timberwork techniques. Instruction examples for practical vocational training (Institut für Berufliche Entwicklung, 26 p.)
VIEW THE DOCUMENT(introduction...)
VIEW THE DOCUMENTPreliminary Remarks
VIEW THE DOCUMENTInstruction Example 3.1.: Working of Boards for a Roof Base Facing
VIEW THE DOCUMENTInstruction Example 3.2.: Making of a Roof Base Facing
VIEW THE DOCUMENTInstruction Example 3.3.: Template Making for a Rafter Foot
VIEW THE DOCUMENTInstruction Example 3.4.: Re-proofing of Buildings

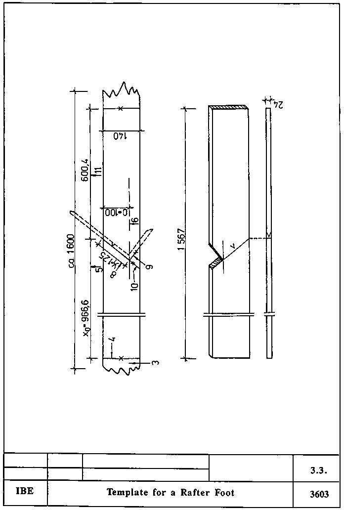
Instruction Example 3.3.: Template Making for a Rafter Foot

The template for the rafter foot of a purlin roof to be built shall be made and the real rafter length be determined.

Dimensions

Width of building: 8000 mm
Height of roof: 3000 mm
Cross section of rafter: 80/140 mm2
z (horizontal distance of eaves flashing) = 500 mm
n (height of inferior purlin above surface of attic beam) = 80 mm
o (square attachment timber) = 100 mm


Figure

Hand tools

Frame saw

Measuring and testing means

Folding rule, carpenter's steel square

Auxiliary accessories

Paper, pencil, hand sketch, abrasive paper, board approx. 1600 mm long and 140 mm wide

Necessary previous knowledge

Reading of drawings, measuring and testing, scribing, sawing, smoothing

Sequence of operations

Comments

1. Determine real rafter length.
Req.: Spl
Known: SplR = b2 + h2

Formula: Spl = SplR + y
(See also Fig. 16 in "Trainees' Handbook of Lessons")



h = 3000 mm


z = 500 mm


SplR = (42 + 32) m2


SplR = 5000 mm



y = 625 mm


Spl = 5000 mm + 625 mm


Spl = 5625 mm


2. Determine x0
Req.: x0
Known: SplR = 5000 mm
z = 500 mm

x0 is the size from the inferior purlin line up to the rafter foot, not the length for the template!
(See also Fig. 16 in "Trainees' Handbook of Lessons")
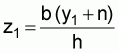
Formula:

b = 4000 mm



n = 80 mm


h = 3000 mm


o = 100 mm



y1 = 125 mm



z1 = 273.3 mm



x0 = 966.6 mm


3. Put straight board of approx. 1600 mm length on work bench.

Board width to comply exactly with rafter height.

4. Scribe angular line at left end and mark with section mark.

Use steel square.
Go to the right only as far as to produce a square cut.

5. Measure in and mark the size x0 from the angular line.

Scribe only thin and short line.

6. Measure in and scribe square attachment timber.

Do not scribe over the entire length but only scribe thin line in the area of the rafter foot line.

7. Mark the size y1 on the long leg of the square.

Scribe thin line.
Mark it at the outside of the square.

8. Place square with marked size y1 at x0 mark and swivel the square until point of intersection with square attachment timber is reached.

Place it exactly!

9. Scribe surface of inferior purlin and front face of inferior purlin.

Scribe a thicker line at the short leg of the square and a thin line at the long leg.

10. Scribe front face of inferior purlin.

Place long leg of square at thin line and scribe bird's mouth depth.

11. Scribe template length.

Measure from x0 line. Use a square.
Use maximum length but at least 500 mm!

12. Saw out template.

Saw exactly and perfectly square.
Special care is required for sawing the bird's mouth!

13. Smooth cut surfaces with abrasive paper.

Use fine-grained abrasive paper!
Smooth very gently - no chamfers must be produced!

14. Transfer scribed lines of bird's mouth to upper narrow side of template.

Scribe thin line.


Template for a Rafter Foot

TO PREVIOUS SECTION OF BOOK TO NEXT SECTION OF BOOK