Back to Home Page of CD3WD Project or Back to list of CD3WD Publications

CLOSE THIS BOOKHandbook for Agrohydrology (NRI)
Chapter 2: Measurement of runoff
VIEW THE DOCUMENT(introduction...)
VIEW THE DOCUMENT2.1 Estimates of runoff
VIEW THE DOCUMENT2.2 Collecting runoff data
VIEW THE DOCUMENT2.3 Water level recording instruments
VIEW THE DOCUMENTEquipment costs
VIEW THE DOCUMENTAppendix A: Measurement of runoff

Handbook for Agrohydrology (NRI)

Chapter 2: Measurement of runoff

Background

"Runoff" is the term usually employed to distinguish the flow of water running off the land's surface during and shortly after rainfall, from the longer term flow of groundwater to rivers. This distinction is achieved by the analysis of flow data from perennial streams and rivers in humid climates, but in many agrohydrological and water harvesting situations, groundwater contributions are not present and all flow is runoff. This will almost certainly be the case in arid and semi-arid climates.

The collection of runoff data is very site and purpose-specific, both in terms of the kind of information that will be required and the manner in which it is best obtained. Runoff events are less frequent than rainfall events, in all climates. In areas of low rainfall, where agrohydrological and water harvesting projects are usually located, the number of runoff events may be fewer than ten per season. This compounds the unhelpful fact that problems with equipment and installations are not encountered until runoff occurs. If these problems are not rectified quickly, a large proportion of a season's data can be easily lost. Moreover, both equipment and experimental designs have to cope with a large range of runoff volumes and peak flows, so careful planning and a quick response to unexpected situations are very important in the success of collecting comprehensive, accurate information.

In planning runoff experiments it is important to have a clear idea of the object of research. For example:

1. In some regions, there may be no existing hydrological data. In this case it may be most suitable to spread project resources thinly and to collect information on as many different hydrological factors, at as many sites as possible. The replication of experiments will be limited and the development of hydrological models using these data will probably not be possible. A careful selection of off-station sites will be needed; adequate field staff and vehicles should be available and routine visiting schedules should be drawn. Site observers may be necessary and a greater proportion of automatic equipment will be needed. But a great number of varied circumstances will be documented and the data should be suitable for input into existing models. The information will be especially useful for projects that are following on and the research may provide insight into areas of hydrological behaviour not previously observed.

2. In other instances a much narrower focus may be desired. The development of hydrological models may be a priority and a large number of replicated experiments will be needed so that the data are amenable to statistical verification. It may be important to work cooperatively with existing projects, to extend the range of project activities and it may not be possible to undertake research in many environments.

Some projects will have a more practical applications bias and research may be combined with farmer participation and the implementation of farming systems. The overall objectives of any project will determine the financial commitment that is placed on the measurement of runoff, but it is assumed for the purpose of this guide that in the field of agricultural hydrology, runoff measurement is of primary importance.

2.1 Estimates of runoff

Estimates of runoff are made for two reasons:

1. They are essential guides in the decision of which system of runoff measurement to use, either volumetric or continuous. After this decision has been made, these estimates must be used to determine the size and capacity (peak flow and flow volume) of the equipment.

2. If the measurement of runoff is not to be undertaken, then calculations must be made to estimate the design specifications of bunds, channels etc. that are to be used in the mechanics of water harvesting and field layouts.

2.1.1 Estimates Based on Previous Data

A project may be fortunate in succeeding previous work that has already undertaken runoff measurement. These data can provide a good starting point for the selection of appropriate equipment. For example "Will a 100 litre collection tank be large enough to collect runoff from a 50 m² plot when previous data show that a 50 litre tank was large enough for a 20 m² plot?". The answer in this case would probably be "Yes", but caution must be exercised. Comparisons of catchment size, land use, slope and rainfall must be made to ensure that these data can be used for the purpose of installation design. Generally, if a project is succeeding another it is likely that most of the physical conditions under which the new project will operate will be similar and catchment size may be the primary concern in estimating flow peaks and volumes. Catchment size is by no means the main influence on runoff amount, however.

Consider Table 2.1 below, data from a strip tillage experiment undertaken in semi-arid SE Botswana. All physical conditions for the plots, including rainfall for each season, were identical. In both seasons the smallest plots produced most runoff (both seasonal and event by event) and the conclusion may be drawn that catchment size exerts an influence on runoff, though this influence appears to be relatively small and is unlikely to cause serious problems in estimating probable runoff proportions, volumes or peak flows, by a simple ratio of previous to proposed catchments areas. The complete set of rainfal/runoff data relating to these plots is given in chapter 7, section 7.1.

Other research has shown that for small plots, runoff proportions (percentages, sometimes called "runoff efficiencies") tend to be larger for small catchments until the distance of flow is about 80 m. Thereafter it is assumed that runoff proportions remain the same for catchments with the same conditions.


Table 2.1: Runoff Proportion (%) versus Catchment Size (average of 2 replicates)

Other factors can be much more influential than catchment size. In the example above, the variation in runoff from catchments of the same size due to differences in rainfall between the seasons was as great as that due to plot size. It must be remembered that data from previous work may have been collected during historical periods with greater or lesser rainfall amounts and/or intensities than those of a new project, even though the location of the data collection site is the same. Variations in other catchment physical conditions, such as vegetation and crop cover, the level of which are determined by yet other environmental circumstances (especially rainfall and human activity), may also be important. The data in Table 2.2 shows runoff from the same-sized plots at the same site for three different rainfall seasons, each plot has a different kind and density of vegetation cover. The data are from a rangeland area of SE Botswana.


Table 2.2: Variation of Seasonal Runoff (%) with Vegetation Cover

Note that not only does vegetation cover type and extent determine runoff, but once again the difference in seasonal rainfall exerts a strong influence. In this case the season with most rainfall produced least runoff from all plots. This kind of comparison shows the influence of different, variable conditions on runoff.

The difficulties in estimating future runoff from past data are best overcome by a statistical analysis of the information: changes in catchment condition or rainfall pattern which affect runoff amount will be present in the data and will be accounted for.

The main design criterion of hydrological equipment is whether or not this equipment will cope with the largest individual runoff event in any given number of seasons. In experimental and equipment design, it is the balance struck between the cost of the over-design of equipment and the possibility of equipment failure during large storms, that is particularly important. A probability must be assigned to the occurrence of the particular design flow or peak that is selected. This can be done by several statistical methods the simplest of which is the annual maximum series, outlined below:

a. Theoretical Distributions

Runoff data are often matched to statistical distributions with known forms. Extrapolation can be made relatively simple where a good adherence to a statistical distribution can be found, but hydrological data may not conform, or different distributions may be more suitable in different geographical regions.

b. Partial Duration Series Methods

These methods do not evaluate the bulk of the data, but use a number of flows for each season that are greater than a selected runoff threshold. The pattern of these values is determined and linked to a statistical distribution from which flows of a specified return period can be extrapolated. The use of these methods is suitable when the number of seasons for which data have been collected is small, perhaps only 10 or less.

Annual Maximum Series

This method, which is a particular kind of partial duration series, selects the largest event of each year or season, tabulates them in order of magnitude and from this list derives a flow peak with a probability of occurrence and return period. To extrapolate for large events, the data may be plotted as in Figure 2.1 below on log-normal probability paper. This is a very simple and straightforward method, its main limitation is that it requires a large number of years' data to be useful, as it selects only the greatest flow from any season.


Figure 2.1: Annual Maximum Series, Runoff versus Probability

These methods of estimation of design flows are discussed in detail in Chapter 8, Data Analysis.

2.1.2 Theoretical Estimates of Flow

A great deal of research has been undertaken to develop hydrological models that can predict runoff peak flows and volumes. The majority, however, are not suited to general use. Sometimes they are too complex but most frequently they are limited by the geographical localities and hydrological conditions within which the data were collected. Many models are regression models and their value is difficult to assess outside their own particular circumstances.

Presented here are five models that can be used to predict peak flows and three models that are suitable to estimate runoff volumes. They are suitable for use with a wide range of catchment sizes and conditions. These methods of estimation have certain drawbacks: they can be relatively inaccurate because they make simplifying assumptions. They demand the availability of some primary data such as catchment physical characteristics and rainfall. However, they have been used for some time in a variety of environments with success and are based on measurements from a great number of catchments, with a wide range of physical characteristics.

2.1.2.1 Peak Flows

Peak flows determine the design specifications of structures such as bunds, channels, bridges and dams. Peak flows also determine the capacity of the control sections of flow-through measurement systems and the collection pipes and transfer conduits of volumetric collection vessels. Some estimate of peak flows must be made before the design of these systems can be completed.

Design peak flows are linked to particular return periods, such as the maximum flow in 5, 10, 25, etc. years and design specifications are a balance between economic cost and the prevention of failure of the structure. Where no serious damage will result, for example on field bunds, a low return period ( say 5 or 10 years ) can be used. The 10 year return period is commonly used for agricultural purposes . Where serious damage or the loss of life is involved, then designs for large return periods, perhaps 50 or 100 years, are necessary. The return period most appropriate to the objectives of the project should be decided upon.

a. Rational Method

The Rational Method which estimates peak flows, is a simplified representation of the complicated process whereby rainfall amount and intensity, catchment conditions and size as well as human activity, determine runoff amount, but it is suitable where the consequences of the failure of structures are limited. The method is usually restricted to small watersheds of less than 800 ha and is based on the rainfall/runoff assumptions of the hydrograph below.


Figure 2.2: Hydrographic Basis of the Rational Method

The equation to calculate peak flows is:

q = 0.0028 CirA where (2.1 )

q = peak flow in m³ s-1
C = the runoff coefficient
ir = maximum rainfall intensity in mm h-1 for the desired return period and the "time of concentration" of the catchment, Tc.
A = area of the watershed in hectares (1 ha = 10,000 m²)

The rainfall intensity is assumed to be uniform for the period and over the whole catchment for a time at least as great as the time of concentration of runoff, (Tc).

Values of Coefficient C

The value of C is the ratio of the peak runoff rate to the rainfall intensity and is dimensionless. It represents the proportion of rainfall that becomes runoff and is determined, to a large extent. by catchment conditions. Work by the US Soil Conservation Service has enabled the influence of many of these conditions to be expressed in various values of C. Examples of these C values are given in Tables 2. 3 for the USA (temperate region' 700-1000 mm average annual rainfall) and 2. 4 below for Malawi in central southern Africa (sub-tropical region' average annual rainfall variable. from < 400 mm to > 1000 mm). Different hydrological conditions according to soil groups are accounted for.


Table 2.3: Coefficient C values for USA

Values of coefficient 'C' for Malawi are given in Table 2.4:


Table 2.4: Coefficient C values (Malawi)

Rainfall intensity, ir

The rainfall intensity value used in the Rational Method is selected according to the desired return period for the design of the structure under study. The duration of the rainfall intensity is, for the purpose of the Method, said to be equal to the time of concentration of the runoff, Tc.

A graph or set of graphs can be drawn, to determine the maximum rainfall intensity for a particular return period and a particular rainfall duration (equal to Tc for the purposes of the Method). Such graphs demand the availability of many years of data, as they represent the line of best fit through a group of data points drawn from a wide range of rainfalls and their intensity measurements. Extensive records are especially necessary for long duration-intensity periods, which are not experienced frequently. Obviously, the climates of geographical regions will vary and even local differences can be great where a country shows a marked variety of topographic form. Areas of uniform rainfall characteristics should be provided with unique sets of rainfall intensity graphs. Figure 2.3 shows the manner in which these graphs are drawn.

A simple alternative way to calculate the return period of the maximum rainfall intensity for a specific duration, where data are too sparse to plot graphical relations, is shown below in Table 2.5 using 10 years' hypothetical example data. Where extrapolation is concerned, it should be remembered that the accuracy of estimation is related to the quantity of available data and the length of record. Note that in Figure 2.3, the lines defining Tc/Intensity relations are lines of best fit obtained from many storm data.


Figure 2.3: Example Graphs of Return Period, Intensity and Duration (which = Tc)

Example return periods used widely for different structures are: Field structures, 5-10 years; Gully control and Small farm dams, 20 years; Large farm dams, 50 years.

List the data as follows (duration in mins, intensity in mm h-1, m is order number of the item in the array). The rainfall intensity is the maximum intensity recorded that season or year, for the particular duration. The return period, in descending order of magnitude, of the rainfall intensity in years - (n+1)/m., where n is the number of years of record. Note that in the example Table 2.5 below, the exact values for the 5 and 10 year returns must be interpolated from the table and the values are given in bold type. Although the relation between intensity and duration is in fact curvilinear, linear interpolation does not lead to important inaccuracies. Making the time steps between the durations smaller, increases accuracy.


Table 2.5: Annual Maximum Series (Hypothetical Example Data.)

Intensities for the same return period increase with shorter duration (and Tc). It is also clear from the example above, that long records of data are necessary to obtain rainfall intensity values associated with long return periods as well as long durations and this may be a limiting factor with work in developing countries where records are frequently short. Great care must be exercised in using data that are imported from other regions, if local data are not available.

Time of concentration, Tc

The time of concentration (Tc) is the time by which water from most distant parts of the catchment has reached the outlet. The following formula has been developed to estimate Tc., with example values given in Table 2.6.

Tc = 0.0195 L0.77 S-0.385 where (2.2)
Tc is in minutes
L the maximum length of the catchment in m, and S = slope of the catchment in m m-1 over the total length L


Table 2.6: Values of Tc using Formula 2.2

The time of concentration, when calculated from equation 2.2 or obtained from Table 2.6, can be used to obtain the desired maximum rainfall intensity, depending on return period.


Figure 2.4: Time of Concentration, Tc, for Catchment Areas 0 - 36 Hectares

Equation 2.2 is not universally accepted and alternatively, the time of concentration can be found by dividing the measured length of flow by the estimated flow velocity. Manning's formula can be used to estimate flow velocities, although the estimation of flow velocity using Manning's formula can be a complex matter for large catchments where changes in channel form, size, slope and roughness can vary greatly and where the evaluation of these characteristics may be difficult. Figures 2.4 (above) and 2.5 (below) give values of Tc for a range of catchment areas, slope categories and qualities of protection. In all cases, it is important to calculate runoff peaks for the catchment conditions most likely to produce them, so that maximum peak flows are estimated: for example before cultivated land has been ploughed and before dense natural vegetation has regrown on non cultivated areas.


Figure 2.5: Time of Concentration, Tc, for Catchment Areas 40 - 200 Hectares
Source: Land Husbandry Manual, Ministry of Agriculture and Natural Resources, Malawi

Worked Example

A catchment of 15 ha is composed of 5 ha of permanent pasture (Soil Group B) and 10 ha of row crop in poor condition (Soil Group C). What peak flow is to be expected from a 1 in 5 year storm? The maximum flow length is 610 m, with a gradient of 2%.

From Table 2.6 or equation 2.2, Tc = 12 minutes

From Table 2.5 (hypothetical illustration), Rainfall intensity 73.0 mm h-1

Runoff coefficient C for permanent pasture (Group B, 5 ha ) = 0.14

Runoff coefficient C for poor row crop (Group C, 10 ha) = 0.71 therefore weighted value of C for whole water shed - 0.52 substituting in equation 2.1:

q = 0.0028 × 0.52 × 73.0 × 15 = 1.6 m3 s-1

b. Cook's Method

Developed by the USCS, this method essentially provides a simpler and more generalised, but similar approach to the estimation of peak flows to the Rational Method. Catchment size and conditions are accounted for. Table 2.7 gives catchment condition details.


Table 2.7: Values () for Catchment Conditions Cook's method

Catchment conditions are assessed and the numerical values assigned to each are added together. For example, if conditions are those in the right column of Table 2.7, a total value of 25 would be found and peak flows could be expected to be low, the exact size depending on catchment area. The conditions of a particular catchment will probably be found to be listed in different columns, but the relief condition is most heavily weighted and, in general, the four columns list conditions that describe "type" catchments. It was found generally that for African conditions, surface storage had little effect and a different set of values for catchment conditions were determined, as presented in Table 2.8. Soil type and drainage conditions were found to be especially important.


Table 2.8: Catchment Condition Values for African Conditions

When a total of catchment condition values is made, the peak flow is estimated using Table 2.9, below.


Table 2.9: Peaks Flows (m³ s-1) According to Catchment Condition Total Values and Area Using 10 Year Probability High Intensities for Tropical Storms

c. TRRL (UK Transport and Road Research Laboratory) Model

Work in East Africa, by the UK Transport and Road Research Laboratory has led to a model designed to overcome two serious problems associated with data in many developing countries: that rainfall/runoff correlations can only be developed using large amounts of data and that extremes in the data are rare. The US SCS method was found not to give acceptable results for East African conditions.

The concept of a "contributing area" (CA) is used to avoid the use of a uniform coefficient throughout the catchment. Early rain fills the initial retention (Y) and runoff et this stage is zero. A lag time (K) was incorporated to account for routing on larger catchments. Total Runoff Volume was found to be defined by:

Q= (P-Y) CA · A · 103 (m³ s-1) where (2.3)

P = storm rainfall (mm) during time period equal to base time of the hydrograph.
Y = initial retention (mm)
CA = contributing area coefficient
A = catchment area (km²)

The average flow QM is given by:

QM = 0.93 · Q/ 3600 · TB where (2.4)

TB is the hydrograph base time (hours)

Initial Retention (Y)
A value of 5 mm for Y was found to be appropriate for arid and semi-arid conditions.
A value of 0 mm for Y was found to be appropriate for wet zone areas.

Contributing Area (CA)

Soil type, slope, land use and catchment wetness were found to be the most influential factors in determining catchment contributing area. The design value is of the form:

CA = CS CW CL where (2.5)

CS = a standard value of contributing area coefficient for grassed catchment at field capacity.
CW = catchment wetness factor
CL = land use factor

Lag Time (K)

Lag time was found only to have a relation with vegetation cover.

Base time of the hydrograph (TB)

Simulation studies showed that TB could be found from the equation:

TB = Tp + 2.3 K + TA where (2.6)
TA = 0.028L / QM0.25 S0.5 where (2.7)

L = main stream length (km)
QM = average flow during base time (m³ s-1)
S = average mainstream slope
K = lag time
Tp = rainfall time

The value of QM can be estimated, through a trial and error iteration of equation 2.6, with TA initially being zero. Below are the tables necessary to estimate the various runoff factors.


Table 2.10: Standard Contributing Area Coefficients, CS (wet zone areas, short grass cover)


Table 2.11: Catchment Wetness Factor, CW

The table (2.13) gives rainfall time (Tp) for East African 10 year storms as a guide. The values for the localities under study can be obtained from local data if available.


Table 2.12 Land use factors, CL Catchment Lag times, K


Table 2.13 Rainfall time, Tp, for East African 10 year storms

Procedural steps for calculation

- Measure catchment area, land slope and channel slope.

- Establish catchment type and from Table 2.12 Lag time K.

- Establish soil type and using land slope, estimate standard contributing area coefficient, Cs. from Table 2.10.

- Establish antecedent rainfall zone and catchment wetness factor, CW, from Table 2.11.

- Use Table 2.12 to estimate land use factor, CL.

- Calculate contributing area coefficient by: CA = CS · CW · CL

- Find initial retention Y (0 or 5 mm).

- Using Table 2.13 or local data find rainfall time, Tp.

- Calculate design storm rainfall to be allowed for during time interval TB hours (P mm).

- Runoff volume is given by:
Q = CA · (P - Y) · A · 103 (m³).

- Average flow is given by:
QM=0.93 Q/3600 · TB

- Recalculate base time using
TB = Tp + 2.3 K + TA where TA = 0.028 L/ QM0.25 S0.5

- Repeat steps 6 to 9, until QM is within 5% of previous estimate.

- Design peak flow, QP is given by:
QP = F · QM where the peak flood factor, F is 2.8 when K < 0.5 hour and 2.3 when K is > 1.0 hour.

Worked Example
What is the 10 year peak flow of a catchment with the following details? Area 5 km²; Land slope 3%; Channel slope 1%; Channel length 2 km; Soils with slightly impeded drainage; Good pasture. 10 year daily point rainfall of 80 mm.

From Table 2.12, Lag time K

= 1.5 hrs

From Table 2.10 Standard contributing area coefficient CS

= 0.38

From Table 2.11, Catchment wetness factor CW

= 0.5 (dry zone ephemeral)

From Table 2.12, Land use factor CL

= 1.0

Therefore. design CA = 0.38 · 0.5 · 1.0

= 0.19

Initial retention Y

= 0 mm

From Table 2.13, TP

= 0.75 hrs

Using equation 2.6 with TA = 0


TB = 0 75 +2.3 .1.5

= 2.59 hrs

Rainfall during base time is given by

RTB = TB/24 (2.33/ TB + 0.33 )n · R10/24

where R10/24 = 10 year daily rainfall
and n = 0.96 (Table 2.13)
Therefore R2.59 = (2.59/24 · 24.33/ 2.92)0.96 · 80 = 72.2 mm

An areal reduction factor is used to take account of the fact that rainfall depths are smaller over catchment areas than they are at spot measurement points.

The Areal Reduction Factor (ARF) was found to be = 1 - (0.04 · TB-0.33·A0.55)
which for the value of A and TB = 0.93, thus:

Average rainfall P

= 72.2 · 0.93



= 67.5 mm.


The Runoff volume Q = CA (P - Y ) · A · 103

= 0.19 (67.5 - 0) · 5.103

= 64.13 × 10.3 m³.

QM = 0.93 · Q/3600 · TB

= 6.40 m³ s-1


First iteration of TA = 0.028 L/ QM0.25 S0.5

= 0.04 hrs


The value of TA (very small) indicates that no re-calculations of TB, the Rainfall time and QM are necessary.

Therefore the design flood is:

QP = F · QP where the flood factor F is 2.3 (as K is > 1 hour).
Therefore the Peak Bow QP - 2.3 · 6.4 = 14.72 m³ s-1

d. US Soil Conservation Service Method

This method is founded on the rainfa/runoff relation for the triangular hydrograph illustrated below in Figure 2.6. It is important to note that the method is used to calculate the peak flow of a known runoff event volume or to calculate the peak flow for an expected or desired runoff event volume. A specific discharge must be designed for. Knowledge of rainfall intensity is not needed. Peak flow is defined by:

q = 0.0021QA/Tp where (2.8)

q = runoff rate (peak flow) in m³ s-1
Q = runoff volume in mm depth (the area under the hydrograph)
A = area of water shed in ha
Tp = time to peak in hours, defined by:

Tp = D/2 + TL where (2.9)

D = duration of excess rainfall
TL = tune of lag, which is an approximation of the mean travel time and can be obtained from the nomograph below, Figure 2.7. Alternatively, Time of lag = 0.6 × Time of concentration which is the longest travel time of the runoff (not the time to peak as in the Rational Method).


Figure 2.6: The US SCS Triangular Hydrograph


Figure 2.7: Lag Time and Time of Concentration, US SCS Method

Source: US SCS Hydrology, National Engineering Handbook, 1972

Worked Example Determine the peak flow from a 10 ha catchment with a 0.5 hour storm that produced a runoff volume of 7 mm . Time of lag is 0.1 hours.

Substituting in equation 2.9,
Time to peak, Tp = 0.5/2 + 0.2 · 0.35 hours
Peak Bow, q = 0.0021 × 7 × 10 / 0.35 = 0.42 m³ s-1 or 420 l s-1

e. Izzard's Method

The previous techniques have been developed to estimate runoff rates from catchments ranging in size from a few hectares to several hundred hectares. However, agrohydrological experiments frequently make use of very small runoff plots only tens of square metres in area. This is for two reasons. First, they are easy to replicate and many such plots can be placed in a small area to study a range of catchment conditions. Second, they can be used conveniently to look at interventions that work on a small scale and which are intended to be installed within the boundaries of individual fields. In these circumstances, a method developed to estimate runoff from sheet flow and limited channel flow may be more appropriate. Izzard made extensive experiments with flows from various surfaces, over relatively small areas. He found that the overland flow hydrograph could be drawn as a composite of the two dimensionless curves illustrated by Figure 2.8 and peak flow is found when q/qe = 0.97 and t/te = 1.0. and is given by

qe, the flow at equilibrium = iL/ 3.6 × 106 whereh (2.10)

i = rainfall rate in mm hr-1 and L= length of flow surface (in m) for a portion of the flow surface that is 1 metre wide.

For the purposes of calculating only the peak flow, it is not necessary to enter into the relations between the other runoff parameters which allow the construction of the overland flow hydrograph and the calculation of total flow volume. This is discussed below in the section on runoff volumes.

Peak flow, qp in m³ s-1 = 0.97 (i L /3.6 × 106)

Worked example
What is the peak flow of runoff from a 25 m wide strip catchment length 10 m, as the result of a rainfall with a maximum intensity of 60 mm hr-1?

Using formula 2.10, Peak flow 0.97 × 60 × 10 × 25 × 1000 / 3.6 × 106 = 4.0 l s-1.

2.1.2.2 Runoff Volumes

It is necessary to estimate the size of likely runoff volumes as accurately as possible, as they will determine whether volumetric or continuous data collection methods must be used. If the former is selected, these estimates will ensure that the design of collection tank size is suitable. Tanks that are too small will be over-filled, data will be lost during large runoff events. This will be a great set-back because obtaining information about large runoff volumes and the probabilities associated with them is critical for agricultural planning purposes. The over-design of collection tanks incurs unnecessary expense and can lead to difficulties of installation.

For water harvesting schemes, it is necessary to estimate the size of runoff volumes that catchments are likely to shed. Over-estimation of runoff volumes can lead to serious under-supplies of supplementary water, whereas volumes much larger than those expected can result in flooding and the physical destruction of crops and structures. It is important to stress once more, however, that the methods for calculating runoff volumes shown below, can only provide estimates.

a. US Soil Conservation Service Method

This method is applied to small agricultural watersheds and was developed from many years of data obtained in the United States, though it has been used successfully in other regions. The Method is based on the relations between rainfall amount and direct runoff. These relations are defined by a series of curvilinear graphs which are called "Curves". Each curve represents the relation between rainfall and runoff for a set of hydrological conditions and each is given a "Curve Number", from 0 to 100. The equation governing the relations between rainfall and runoff is:

Q = (P-0.2S)2 /P+ 0.85S where (2.11)

Q = direct surface runoff depth in mm
P = storm rainfall in mm
S = the maximum potential difference between rainfall and runoff in mm, starting at the time the storm begins.

The parameter S is essentially composed of losses from runoff to interception, infiltration, etc.

The US SCS calculates S by:

S = (25,400 / N) - 254 where (2.12)

N is the "Curve Number", from 0 to 100. Curve Number 100 assumes total runoff from the rainfall and therefore S = 0 and P = Q.

Values of curve numbers for different hydrological and agricultural conditions are given in Tables 2.14 and 2.15. Note that the values for these tables are separated on the basis of antecedent soil moisture condition, that is the state of "wetness" of soils prior to rainfall. The basic assumption for this separation is that wet soils shed a higher proportion of rainfall as runoff than dry soils and therefore the same soil will have a higher curve number when wet, than when dry.


Table 2.14: Curve Numbers for Soils and Catchment Condition, Antecedent Soil Moisture Condition II


Table 2.15: Curve Numbers for Soils and Catchment Condition.

Local conditions, especially rates of evapotranspiration, should be considered to assess whether the categorisation of antecedent soil moisture conditions I to II should be modified. For example, soils in a region with summer rain and a summer growing season may fall within category 1, despite a previous 5-day rainfall of 40 mm. Similar soils with a winter growing season and the same antecedent rainfall could fall into category III.

One difficulty in using the US SCS method is the derivation of the value the rainfall parameter P. This parameter is usually defined as a specific return period storm of a known duration, for example "the 12 hour rainfall with a return period of 50 years", expressed in mm. Rainfall P is calculated from a relatively complex linear relation with several rainfall duration and return period factors. In the US, these data are easily available and can be obtained from published maps and although regional variations in the relations defining the rainfall intensity parameter exist to cover climatic variation, there are serious difficulties in transferring this kind of information to other geographical areas. In developing countries it is unlikely that such comprehensive data will be available. Even if they were, the work involved in converting raw data into a series of useful tables, graphs or maps would be beyond the scope of most projects where all that is sought is an estimate of runoff.

As an alternative, long-term daily rainfall is usually available even in countries with only basic meteorological information. The 24 hour rainfall is a frequently-used value and in these circumstances, it is best to use a simple estimate of rainfall that can be obtained from a listing of annual maxima, such as shown in Table 2.5. For example the 10year return daily (assume it to be the 24 hour) rain could be used in equation 2.11 to calculate runoff. Relations between daily and other period rainfall can be established by regression analysis where records exist. When available, local records should be used even if they are less amenable to sophisticated treatment


Table 2.16: Antecedent Soil Conditions

Worked example

Given that the 25 year return rainfall is 85 mm, calculate the total runoff volume from a catchment of 46 ha, of which 13 ha are poor pasture (soil group A), 25 ha are contoured under small grain crops with poor treatment (soil group C) and the remaining 8 ha are fallow (soil group B). Antecedent soil moisture condition 1.

Subarea A (ha)

Soil Group

Land Use

Curve No. N

N×A

25

A

Pasture, poor condition

68

1700

13

C

Small grain, poor condition

63

819

8

B

Fallow

86

688




Total N×A =

3207

Therefore the weighted curve number = 3207 /46 = 69.7

From S = (25,400 / 69.7) - 254 = 110 mm

From equation 2.11 Q = (85 - 0.2x 110)2 / 85 + (0.8 × 110) = 22.9 mm over the catchment (1mm on 1 ha = 10 m³)

The total runoff, Q = 22.9 × 10 × 46 = 10,534 m³

b. TRRL Model

Reference to this model is made for an alternative method of calculating runoff volume later in this chapter.

c. Izzard's method

The use of work by Izzard for the calculation of peak flows was discussed earlier, in the relevant section. The results can also be used to calculate flow hydrographs and volumes and is especially useful for small runoff plot calculations.

Izzard found that the time to equilibrium,
te =2 Ve /60 qe where (2.13)

te is the time to which flow is 97% of the supply rate and Ve is the volume of water in detention at equilibrium. The volume Ve in cubic metres was found to be:

Ve =kL1.33 i0.33/ 288, where (2.14)

i is in mm hr-1 and L, the length of the strip is in m. k was found experimentally to be given by:

k = 2.76 × 10-5 i + c / s0.33 where (2.15)

s is the slope of the surface and c is given in Table 2.17.

The average depth over the strip is = Ve/L = kqe0.33 (2.16)


Figure 2.8: The Dimensionless Hydrograph according to Izzard


Table 2.17: give values of the surface retardance coefficient c for various surfaces. Table 2.17 Surface Retardance 'c'

Note that for low slopes and small rainfall intensities, the value of c is relatively important.

Procedure to calculate runoff volume

- Values of te and qe can be calculated from equations 2.13 and 2.10, respectively.
- With te and qe known, the plot of the rising limb of the overland flow hydrograph, plotted as q (volume) against t (minutes) can be found from Figure 2.8.
- The recession curve of the hydrograph can be plotted using the factor B which is:

B = 60qeta/VO where (2.17)

VO is the detention volume given by equations 2.15 and 2.16, taking i = 0 and ta is any time after the end of rain.

- When the hydrograph is drawn, the runoff volume is the area under the hydrograph.

2.2 Collecting runoff data

2.2.1 Volumetric data

Simple Tanks

Complex Tank Systems

Multislot Dividers
Multipipe Dividers
Rotary Dividers

2.2.2 Continuous Systems

2.2.2.1 Natural Controls for Runoff Measurement

Rating Curves

Methods of Flow Measurement

Velocity Area Method
Float Gauging
Chemical Gauging

Stream Flow Networks

2.2.2.2. Artificial Controls for Runoff Measurement

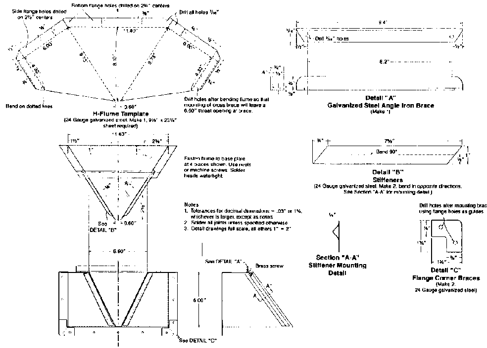
Flumes

HS, HL and H Flumes
Parshall Flumes

Weirs

V-notch Weirs
Triangular Weirs

Culverts and Existing Structures

Methods to calculate the runoff that is likely from various rain storms on catchments of various sizes and with a range of conditions have been discussed. The following chapter describes the equipment that is needed to measure runoff using these systems. There are two main types:

Volumetric equipment

Continuous or Through-flow equipment

A theoretical estimation of runoff peaks and volumes will enable the choice between these two methods to be made, as choice is determined essentially by the size of runoff volumes. Other considerations such as the risk of sedimentation, debris in the flow, site and cost also play a part in the decision, but the amount of water to be measured is by far the most important criterion. In general, the two methods of data collection are used in the following circumstances and have the concomitant advantages and disadvantages that are outlined below. After considering these advantages and disadvantages and after estimating the size of flows that are likely, the most suitable method of measurement should be clear. If doubt remains between the suitability of using simple or complex volumetric measurement systems, further discussion is presented in section 2.2.1.

Volumetric Data Collection Methods

Advantages:

- Can be used easily to measure small volumes of runoff.

- The most basic equipment is a simple tank, although more complex systems will be described later, whereby a small, known proportion of the flow is collected and the total is found multiplying the collected flow according to this proportion.

- This equipment is relatively cheap.
- It can be manufactured locally and is relatively simple to use.
- Lends itself to the easy replication of experiments.

Disadvantages:

- The main limit on the equipment is the physical size, in particular the depth of the collection vessel, the top of which must be installed at a lower elevation than the runoff area.

- It also has the disadvantage of only collecting "lump sum" runoff volumes and gives no other hydrological information. This limits the usefulness of the data.
- No idea of the varying contributions within complex storms is available.
- No information on runoff duration can be found, nor how much rain fell before runoff started.

- The equipment must be well-serviced and be emptied (of sediment as well as water) after every runoff event. It is therefore not a good system for field station runoff measurements, because runoff may not be suspected and an arduous and often fruitless visiting schedule would be necessary to cover all eventualities on a routine basis.

- There is the risk of over-filling of the tanks which can result in the loss of accurate data, though a limited number of experiments with very small vessels can be used successfully, if a reliable field observer is engaged at the site.


Continuous Data Collection Methods

These can be undertaken in many different ways, depending on the physical properties of the flow and characteristics of the site, but the basis of measuring the runoff remains the same for all. Runoff is channeled to flow through a "control" section. This control section may be artificially constructed and as such, will have pre-determined hydraulic properties. Alternatively, a suitable section of a natural channel may be used, though the hydraulic properties of a natural channel must be determined by measurement. In either case, the volume of water passing at any time is found by measuring only the height of water in the channel (the "stage" of the flow). The measurement of stage is effected by the use a water level recorder (WLR) which records changing flow stages over a desired period. Integration of the various stage heights over the period of record gives the total flow.

Advantages:

- These methods also give information on flow durations, peak flows and on when runoff started in relation to rainfall.

- WLRs can hold the data relating to many runoff events.

- The equipment can be left unattended for months if necessary and is well-suited for use at remote field sites.

- The disruption of routine visiting schedules is not a serious problem.

- There is no limit to the flow volumes that can be measured, if the control section is large enough to pass the runoff.

Disadvantages:

- The greatest restriction on the use of this method is the cost of the water level recorders (similar to that of recording rain gauges) and, in common with any complex machinery, the possibility of malfunction. Artificial control sections can be designed to be built locally, for an outlay similar to that of volumetric collection tanks.

2.2.1 Collection of Volumetric Data

Simple Tanks

Simple tanks are used to collect runoff from the very smallest catchments. It is important to put into perspective the size of plot for which simple tanks are suitable:

Example

For every 1 mm of rainfall that is shed per 1 m² of catchment, the collection tank will receive 1 litre of runoff. A 1 in 10 year storm is an appropriate return period for which to design.

- A 100 mm storm (assumed to be a 1 in 10 year rainfall) over a 1 m² plot with a runoff efficiency of 50 % ( for example a sandy loam soil, with a slope of 2%, relatively bare of vegetation ) would give 50 litres of runoff.

- Over a 10 m² (1 m × 10 m) plot runoff would be 500 litres

- Over a 100 m² (10 m × 10m) plot runoff would be 5000 litres.

A tank built to contain 5000 litres would need to have dimensions greater than 2.5m × 2.0m × 1.0 m, (an adequate freeboard is always essential), about equal to the capacity of 25 large oil drums. This is too big for easy manufacture, installation and replication. Even to contain the runoff from the 10 m² plot, the tank would have to be greater than 1.0 m × 1.0 m × 0.5 m. Alternative complex tank systems can be designed to collect runoff amounts of this order of magnitude, and these systems are discussed later. It is reasonably obvious, therefore, that even though most runoff events will be much smaller than the example above, simple tanks should not be used on plots larger than a few square metres. The importance of measuring extreme event runoff volumes, to ensure the widest range of data for analysis, cannot be over emphasized.

Design

On the whole, the design of simple tanks is not a difficult task. The dimensions should be appropriate to the size of the estimated maximum runoff volume. Remember that an adequate freeboard is necessary. Generally it is best to have the tanks made specially, as the modification of containers used previously for other purposes may be as expensive and can lead to compromises in design.

An example simple tank and plot layout is illustrated below in Figure 2.9.

Galvanized steel plot boundaries, about 15 -20 cm above ground


Figure 2.9: Typical Design of Simple Runoff Tank and Plot Layout

Features to note are:

- Light gauge galvanized steel boundaries, about 15 cm high to avoid rain shadow. These can be easily bent into shape and be knocked into the ground or, if soils are very hard, dug in. Any seam or joint that is not sealed should have its outer edge pointing downslope to prevent the entry of outside runoff.

- "Funnel" neck to direct flow into tank. This should be large enough to allow unrestricted peak flow into the tank. It should not be liable to blockage by debris; a wire mesh may be fitted.

- Tank cover to prevent rainfall entering tank directly and prevent animals interfering with collected runoff.

- The tank should be made of inexpensive mild sheet steel, painted against rust.
- Welding destroys zinc protection at seams, if galvanised steel is used.
- Plastic containers usually have a short life, due to rotting by UV light.

One suitable alternative to the specially manufactured tank is the ubiquitous large oil drum (usually about 40 imperial gallons or a little more than 200 litres). These can be cut to size along a horizontal axis to give 2 × 100 litre containers with some freeboard. These tanks are generally too deep to allow easy installation as a whole unit (deep soils would be needed and emptying a deep container is awkward) and their horizontal installation is very inconvenient.

A section must be cut to allow a funnel arrangement to enter the tank and lids need to be manufactured as separate items. Oil drums are often prized objects in developing countries, put to many varied uses and their cost or scarcity may make them unsuitable. A typical installation is shown below in Figure 2.10.


Figure 2.10: Modified oil drum as 100 litre collection tank

Installation

The tank, of whatever type, must be sunk into the ground, therefore ensure that depth is the smallest dimension where possible and completely fill in the whole of the excavated area to avoid water collecting around the tank and disturbing it by flotation or subsidence. Settlement of the soil may take some time. Ensure that animals cannot remove the lid to drink from the water. Regard theft (and possibly vandalism) as a serious threat in field locations.

Cementing the tank into the ground should be avoided as it is likely that the tank will have to be removed on occasions for a thorough cleaning and possibly repair. Easy removal is especially important if the installation is in a farmer's field where pre- and post-ploughing runoff data may be required and removal will be necessary. The tank's presence could prevent correct ploughing. The plot boundaries should not cast a serious rain shadow and should be tapped into the ground or eased in with a spade. The galvanized sheeting recommended can be re-used over many seasons and is cheap and easy to work with. In all respects metal sheeting is superior to earth-dug bunds for small plots. During and after installation, ensure that the minimum disturbance is made to the catchment. In particular ensure that digging etc. does not impede or encourage runoff flow into the tank. Remember that surface flow on small catchments is very shallow, perhaps less than 1 cm deep and even very small surface features, inadvertently produced, can affect runoff. If installed at a field site, a permanent reader will probably be necessary.

Measurement

Carelessness while measuring the amount of runoff that has been collected can lead to as inaccurate results as careless installation of the equipment. A standard data sheet should be drawn up, such as the one below. A separate sheet per site is recommended for each visit. Each individual tank should be clearly numbered where several tanks are installed together. A record of the capacity of the tanks is essential to check against spurious measurement. The tanks can be emptied by scooping out the water using a small measuring vessel. This is preferable to having to remove the tank when measurement is made. The quickest and most reliable way to read the tanks is to have 2 × 20 litre (marked with 1 or 2 litre graduations) and 2 × 5 litre containers (marked in 0.5 litre graduations) available. The runoff is scooped out in a marked vessel (2- 3 litres capacity is the most manageable) and poured into one of the 20 litre containers. When this is full, it is noted on the sheet. This tank is emptied while the other is filled. When most of the runoff is emptied, the 5 litre vessels are used. Unless runoff amounts are very small, results to the nearest 0.2 litre are adequate. Care is needed during the process. Sediment is likely to be present.

Dip-stick measurement of runoff is difficult since accurate leveling of the tank is necessary during installation and the tank may later re-settle or be disturbed. Graduations marked on the tank are an unsatisfactory method of measurement, they become erased or covered with mud, etc. Emptying the tanks carefully is surprisingly time-consuming and an adequate period should allowed, especially where groups of many tanks are involved. It is best that at least two people should undertake the task together and three is to be preferred, one concerned only with the recording of data.


Figure 2.11: Collection tank data sheet example

Complex Tank Systems

The examples of possible runoff amounts, given in the previous section on simple tanks, indicate that small tanks can only be used on runoff plots of about 10 m or even less. For larger catchments, that for one reason or another are not fitted with flow-through measuring devices, a more complex system of collection tanks is needed.

Design

The basic arrangement of these systems is to install a first tank which collects initial runoff. When this tank is full, further runoff entering the tank causes overflow into a second tank. However, only a small, known proportion of this overflow runoff is passed into the second tank, most of the runoff is allowed to run to waste. Such systems can deal with runoff from catchment areas with an upper limit (depending on storm size and catchment conditions) of about 100 to 200 m², though this will be determined by the character of the individual site. There are two main types of complex tank systems:

Multi-slot dividers and Rotating slot dividers.

The major limitations are:

- Tank size

The manufacture and installation of tanks with capacities of several hundred litres can be difficult. Generally, they are made of heavy-gauge galvanized or mild steel sheet to retain some rigidity and are therefore quite expensive to manufacture and unwieldy to install. Because of their size and the fact that they lie one behind the other, downslope, considerable earth-moving may be necessary, especially where land slopes are low. Shed-like constructions may be needed to prevent rain from entering the tanks and flow channels. Dug earth channels behind the installation are necessary to remove the waste water during rainfall/runoff and to prevent the ponding of water which may otherwise enter the tanks and confuse measurement. These channels are also essential to remove the water as the tanks are emptied, which requires the use of a small pump. Pumps of about 0.1 horse power combine sufficient power with precision of control. The tanks should be protected from accidental runon from areas around the installation. Installations for rotary dividers are considerably smaller than those of multi-slot dividers.

The tanks cannot be considered portable in any sense of the word and a permanent location is required for their use. It is important therefore that very careful consideration is given to site suitability from the viewpoints of installation and experimental objectives. In particular, problems can occur in areas of low slope (< 2%) where back-up ponding and drainage difficulties can be severe.

- Number of tanks

If small tanks are preferred, a greater number must be used for each installation and this number is limited by accuracy, as well as the space that they occupy. The first tank in line measures all runoff, conventionally the second tank measures 1/10 th of the overflow and a third tank would usually do the same (though these proportions can be altered to suit individual needs). Thus by the third tank, only 1% of the real runoff amount is actually being collected. If the tanks are not well-manufactured and properly installed, every 1 litre inaccurately measured will affect the calculated volume by 100 litres. If yet another tank were added to increase the catchment area from which runoff was collected, then each litre measured would represent 1000 litres (1 m³) of runoff. Small inaccuracies of collection or measurement would lead to seriously flawed data. Although the difficulties of tank size can be overcome by making the tanks smaller, three tanks in line is probably the sensible limit. The problems of accuracy can be overcome by calibration (see below), but some inaccuracies in measurement and accidental spillages must be accepted as a fact of life.

Rotating slot dividers do not suffer from exactly the same limitations as multislot dividers, since the division of runoff into various proportions is only undertaken once. However, high quality design and manufacture is essential and any flaw in the mechanism may prevent operation. Peak flow estimates by calculation should be made to ensure that all inlets/outlets can cope with the flow.

a. Multislot Divider

Runoff draining from a collection gutter (which should be covered with a wire trash screen ) on the downslope side of the plot flows into a conveyance channel or pipe to the first tank. Heavy sediment will settle here. When this tank is full, 10% (for example) of the excess is passed through a vertical slot and drops down into the second tank. Various sizes and numbers of slots can be used, according to need, examples of approximate slot sizes and capacities are given below in Table 2.18.

The remaining portion of the runoff continues along the channel to be discharged as waste, or to further tanks where a similar proportion is retained for measurement. The tanks and slot plate should be made of suitable galvanized steel sheet with welded, water-tight seams. Slots should be made in the plate as accurately as possible and all angles should be 90°. However, sophisticated workshop facilities may not be available and equipment may have to be transported under difficult conditions to a field site. Thus, while it is important to construct the dividing system with care, it is necessary to calibrate the equipment after installation, to correct for any inaccuracies of manufacture.


Table 2.18: Approximate Number, Dimensions and Capacities of Divider Slots

Figure 2.12: shows a typical arrangement for a multislot dividing system. Construction details are given in Appendix


Figure 2.12: Multislot Divider System a) Plan b) Side Elevation


Figure 2.12 continued

Where the materials and workshop facilities are not available to manufacture a multislot system, a cheap alternative "multi-pipe" divider can easily be made, so long as basic welding equipment is obtainable. The system uses 200 litre oil drums, sheet steel and neoprene pipes. Calibration, as described later in this section, is essential for this system.

A metal box, with a handled lid, is welded from cut pieces of steel plate. On one side, a rectangular section, approximately 15 cm square, is cut out to accept an intake gutter. Ten 5 cm. stub pipes are welded over 5 cm. holes cut into the opposite side of the box to the intake, to form spouts. A 200 1 drum (usually 90 - 100 cm high), is cut into two portions, the first 60 cm and the second 30 cm high or thereabouts. One 5 cm hole is cut into the side of the larger piece of drum, leaving a freeboard of 5 - 10 cm. A short metal stub pipe is welded on to the hole to a form an intake. On the opposite side of the drum ten 2.5 cm spouts are fitted radially in the same way, at a slightly lower level than the intake. A 2.5 cm intake pipe is fitted on the smaller piece of drum. The box, large section of drum and small section of drum are fitted together with the neoprene pipes. All containers should have lids to prevent direct rainfall from entering them. The nine spouts that are not connected act as waste drains. The containers should be leveled when installed.

Figure 2.13 below shows how the containers are fitted together. All dimensions of containers and pipes are approximate and can be altered to suit locally available materials. The number of pipes can be selected according to need.

Installation

The installation of a system requires care more than expertise.

Large tank sets (Figures 2.13, 2.16 and 2.17) must have the site completely prepared by earth-moving if necessary, beforehand. All the tanks in the series should be carefully placed into their excavations and the conduits fitted. They should be leveled and completely assembled together before being set in concrete, where appropriate. All conduits should be leveled.

Where lowering of the tanks may be necessary later, for instance if the surface of the plot is expected to erode as part of the experimental intention, tanks should not be concreted in but placed on durable stands, the elevation of which can be reduced. Multi-pipe systems are best in such circumstances, because they are smaller. Great care should be taken not to distort the dividing system on installation. The system should be protected from rain and runon as soon as possible, where open tanks are used.

The free flow of water, with no ponding, from all tanks in the series should be ensured. Calibration should not be attempted until the concrete is set, or the tanks are secured to their stands. Procedures for the small tank system are essentially the same, but less labour will be required and alterations to the site can be made during installation.

The detailed procedures of calibration are given below.


Figure 2.13 Multipipe Divider System

Calibration

Calibration is straightforward, though the large tanks will need several oil drums of water.

- Ensure the tanks are firmly set in the ground and all the components are secure.

- Ensure the outlets are as level as possible

- Ensure the whole system is clear of debris.

- Ensure all seals are water tight

- Fill the first tank with water until it overflows to a small degree into the second tank.

- Ensure there is no ponding between the tanks.

- Remove any water from the second tank

- Using an accurately graduated vessel ( for example 10 litres), pour water carefully into the (primed) first tank.

- Record the amount poured.

- This should be repeated until an easily recoverable quantity of water can be removed from the second tank. The waste water from the first tank can be ignored, but ensure that it flows away from the site easily.

- Measure the water recovered from the second tank.

- Repeat the process but start by filling tank 2 and measuring from tank 3

The calibration factor of the tanks, or more correctly the dividing system is then the ratio: Water Poured / Water Recovered.

For example:

Tank 2
275.0 litres / 25.6 litres,
Calibration Factor (C.F.) = 10.74

Tank 3
109.0 litres / 11.2
Initial Calibration Factor = 9.73
Actual Calibration Factor- CF Tank 2 × CF Tank 3, therefore = 10.74 × 9.73 = 104.50

All quantities runoff measured from the second tank should be multiplied by the calibration factor to calculate the true runoff volume. A mean value should be obtained from a number of calibrations undertaken for each tank. For a series of three tanks, the same procedure is followed. The total runoff from rainfall represented by the portions actually collected in all the tanks would be (for the examples given above):

Runoff from tank 1 × Calibration Factor ( = 1.0) + Runoff from tank 2 × Calibration Factor (= 10.74) + Runoff from tank 3 × Calibration Factor (=104.5).

Routine data collection sheets for a multiple tank should be prepared in a manner similar to Figure 2.14:


Figure 2.14: Collection tank data sheet example

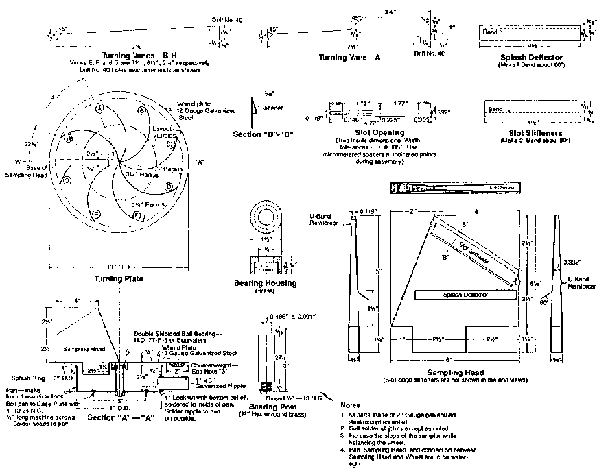
b. Rotating Slot (Coshocton) Divider
The rotating slot divider is a much smaller device than the equipment that has been described above, but involves a high degree of precise manufacture. Welding must be accurate and discrete, bumps and distortions of the metal wheel must be avoided. High quality bearings are needed. Detailed drawings for the construction of this runoff sampler are given in Appendix A3. Figure 2.15 shows a sketch of the mechanism fitted below an H flume.

Runoff is directed from a collection conduit and pours over a horizontal sampling wheel, the slot divider. The action of the water forces the wheel to rotate and the sample slot cut into the wheel continually passes under the water then away as the rotation continues. Runoff that goes through the slot enters a sump and then is conducted away to a collection tank. That which does not pass through the slot, runs to waste.

Installation

Plot design and collectors are as described above.
Installation design often depends on the land form of the runoff area.
Figure 2.17 shows an example.

The complex tank systems described above are frequently used for sampling sediment load and the combination of runoff and sediment measurement is obviously a cost-effective manner of organising activities, the value of which should be carefully considered at the planning stage of any project.


Figure 2.16


Figure 2.17

Figures 2.16 and 2.17 Alternative Installations of the Rotating Slot Divider Source: USDA Handbook 224

2.2.2 Collection of Data from Continuous or Flow-through Systems

Flow-through systems are used where catchments provide too much runoff to be collected in tanks. They are also necessary where knowledge of the start, the duration, peak and end of flow of runoff (the flow hydrograph), is needed. These systems are particularly useful at remote sites, where visits cannot be made after every rain storm. In humid climates, they can be used to make continuous readings of permanent streams. Measurements are made at a control section with known hydraulic properties, where the flow volume can be measured simply by recording the depth (stage) of water passing through the control section at any time.

Controls fall into two main categories:

Natural controls

exploit the physical features of the stream channel or other waterway, (be it ephemeral or permanent) to provide a location for the measurement of flow. This is not as simple as it may appear.

Artificial controls are made to pre-designed specifications, according to their use and are placed where required. There are many designs of artificial control.

In general, the most useful controls for work in agrohydrology and water harvesting are artificial. However, it is possible that natural controls may be used of necessity, especially where natural channel flow in large amounts is present. These volumes of water may be too large for the use of a pre-calibrated device or conditions may be unfavourable for its operation. The cost of building artificial controls on any but the smallest river channels will probably be prohibitive.

2.2.2.1 Natural Controls for Flow Measurement and Stream Gauging

The first problem to overcome is the identification of a suitable site. Bends in channels should be avoided. Eddying and spiral flow occur and cause changes in the river bed and the undercutting of banks, making such locations unsuitable. Straight sections of channel are desirable. Sites should be located where the bed is as uniform as possible, away from tributaries and other flow disturbances. Changes in vegetation, human activity etc. can all affect the control at a site.

The effects of controls (the influence of the channel having a particular form that restricts flow) can be present at low water, high water or may change as the depth of the river alters in flood. Usually low water controls become ineffective as stage increases. Contracted sections such as bridge openings may operate at highwater which may be a disadvantage, though bridges are frequently convenient access locations for measuring stream discharge.

At gauging sites, locations where frequent flow measurements are made, gauges that facilitate the recording of stream depth are placed. If possible, an automatic water level recorder and manually-read posts are used, though this is expensive. Where a continuous record of stage is not required, manual posts alone are sufficient. The hydraulic properties of a natural channel, which must be determined to allow the use of stage-only recordings to measure flow, are defined by rating curves, sometimes by rating tables.

Rating Curves

A rating curve is a calibration curve, a graph of the relation between stream depth (stage) and flow (discharge). Obviously, as stream depth increases, so does discharge. However, this relation is unique at each location on the channel and is rarely if ever a straightforward linear relation. When sufficient depth/discharge data are collected (see below) to define this relation, unknown discharge can be found by simply reading the known depth from the rating curve. Further discharge measurements are taken on a routine basis to up-date the rating curve. This will be necessary if the stream channel changes, for example after a severe flood. It is a serious problem for short-lived projects that it may take many years to compile a rating curve which, of necessity, should include a wide range of discharge, from low to high.

A typical rating curve will be similar to Figure 2.18. The relation can also be defined in a rating table, which allows more convenient use in computer programs. Note that the curve will plot as a number of straight lines when logarithmic axes are used, indicating a change of control at the inflection point(s) as stage/discharge relations change.


Figure 2.18 Example Rating Curve

Data points collected after the compilation of the rating curve, should lie within 10% of the curve. Values that do not, indicate a change in control of the river section or large measurement error. Values not within +/- 2% of rated discharge can indicate that re-drawing of the curve may be necessary in some circumstances, but it is assumed here that moderately accurate values of discharge are satisfactory, and that agricultural and water harvesting projects will not wish to invest the time nor resources to delve deeply into the theory and practice of hydrometry, nor undertake the rigorous field schedule of data collection that would be necessary to achieve wholesale rating curve revision. A simple stage/discharge plot should be adequate to define the relation.

From a graph such as 2.18, the flow hydrograph can be obtained from a continuous reading of stream height.

There is no easy way to extrapolate extreme discharges from a rating curve and although the general equation of any curve is assumed to be q =k (g - a)b, where a, b and k are site constants, this formula cannot account for changes of channel geometry at higher stages and an abrupt discontinuity of the relation will be seen when bank-full conditions are experienced; that is when the river floods and is no longer confined to the channel.

Stream gauging procedures measure the stage and discharge of a stream and provide the basic data for rating a channel location. Rough estimates of discharge for different stages can be made by taking the cross-sectional area of the channel and multiplying the channel area by stream velocity. Values of velocities can be estimated by using Manning's equation (see later in this chapter).

Methods of Flow Measurement

a. Velocity-Area method

This most accurate and usual method uses a current or flow meter and associated equipment. The meter consists of a set of horizontally mounted cups (vertical axis) that move a contact breaker as they rotate. This breaker, wired to a battery and either an automatic counter or head phones, registers each rotation of the cups. Each meter is individually calibrated and provided with a table (usually) fixed to the carrying case. This table is used to convert the number of rotations per time period into flow velocity in feet or metres per second. For very small streams or highly vegetated conditions a horizontal axis propeller-type meter is used, but the method of measurement is the same for both instruments. Figures 2.19 and 2.20 show typical cup-type and propeller meters.


Figure 2.19: Typical Cup-type Flow Meter


Figure 2.20: Propeller-type Flow Meter

A marked cable or tape is stretched across the stream channel at the gauging site, at right angles to the flow. The tape is used to divide the stream width into convenient sections. In Figure 2.21 below, 14 × 2.0 m sections are used, starting from the initial point (0) on the left bank. This leaves one section of 1.2 m at the right bank, to complete the full stream width of 29.2 m. To ensure a sufficient number of velocity readings across the stream width, no section should be greater than 10% of the total width, where possible 5% gives greater accuracy. The subdivision of the channel width allows the measurement of the different velocities and discharge within each section, due to friction and eddying. On the other hand, the time taken to complete the procedure should not be too lengthy, because minimum change in stage of the stream, during the time of gauging, is desirable. Any large change in stage can cause an inaccurate measurement of discharge, unless corrections are made. These are quite complicated and best avoided. Stage readings should be taken from the staff gauges located at the site, before starting and after completion of discharge measurements to check for excessive change of stage.


Figure 2.21: Velocity-Area Method

Figure 2.21, shows the arrangement of channel sections used in the velocity-area method. The flow meter is positioned at 0.2 and 0.8 times the vertical depth of the water, pointing against the flow. At each position the number of rotations in a given time (or given number of rotations in a measured time) is counted and the velocity calculated from the calibration table of the flow meter. The average velocity of the two readings is taken as the overall average velocity of the whole vertical section. The distribution of velocities from bed to surface in a stream is parabolic and the average of the two measurements gives an accurate measure of true mean velocity.


Figure 2.22: Sample Discharge Measurement Form

The depth of the stream is noted from the graduated bar that holds the current meter. The procedure is followed for all the sections of the stream. Where the stream is too shallow (< 0.50 m) to allow two velocity readings to be taken, the 0.6 of stream depth position, below the stream surface, alone is used. Calculations of depth, velocity and thereby, discharge are made as illustrated in Figure 2.22.

In some cases, usually when the river is at a high stage, wading the stream to effect measurement will be impractical. In such circumstances a bridge or other convenient structure must be used. Readings are taken with the meter suspended from a cable and held down by a large, streamlined weight. The current will carry the instrument downstream and it will not hang vertically, but a small correction can be made to overcome this. With the cable 12° from the vertical the inaccuracy of measured depth is about +2%, but corrections will depend on exactly how much cable is paid out and how much is in and out of the water. A table can be drawn up and used, according to Figure 2.23 below.


Figure 2.23: Geometry of a Cable-suspended Flow Meter

Operation and maintenance

On the whole, the equipment is easy to operate and maintain. Regular oiling of the cup bearings with light lubricant is essential (sewing machine oil is a good substitute if manufacturers' oil is unavailable, but do not foul the contact points) and spare bearings and a spare set of cups should be purchased. The cups in particular should be treated with care as any damage will alter the rating of the instrument. Equipment should be cleaned and dried after use. The electrical contacts should be kept clean as they tend to burn out at the tips with use. Propeller meters usually have bearings of synthetic plastic material and usually should not be lubricated.

It is desirable for current meters to be re-calibrated by the manufacturer or a hydraulics laboratory every few years, therefore careful use of the equipment is essential if this costly inconvenience is to be kept to a minimum.

Equipment suspended from a bridge or similar structure will necessitate the use of a winch. This is purchased with meter weights, cable and fittings and will include an integrated depth-counter. A simple board can be made to which the winch can be fixed for manual operation. Figure 2.24, below shows a vertical view of the winch board.

It is suitable for use by one person with all but the largest of weights used for very large rivers. Some help may be needed when the weight and meter is lowered over the side of the bridge. Purchased stands for winches tend to be expensive and large.

It assumed that suspended cable ways, which are sometimes used in operational hydrology, will be far beyond the resources of an agrohydrological or water harvesting project and that less accurate but cheaper methods of flow volume estimation, such as float-gauging would be more appropriate. Inflatable dinghies are not too expensive, but the need for an outboard motor adds to the cost.


Figure 2.24: Simple Hand-held Winch Board

b. Alternative methods of discharge estimation

Float gauging

This method probably provides the most suitable alternative way to measure stream velocity and discharge. Surface floats travel at about 1.2 times the mean stream velocity. See Figure 2. 25 below which shows the distribution of stream velocity with depth.


Figure 2.25: Depth / Velocity Relations of Stream flow (Velocity Profile)

Floats should be clearly visible and of uniform size and material. A straight stretch of channel should be used to avoid velocity changes and eddy currents. Where possible, changes in velocity should be accounted for by placing floats across the width of the stream. Several floats should be used and average reading taken.

Remember that a cross-sectional profile of the stream with depth measurements to calculate area will be essential to allow the computation of discharge. This will require a survey of the channel at a later date. Permanent staff gauges can be emplaced and a rating curve determined. This method may be useful when a river is at a very high stage and impossible to gauge by the velocity-area method. In general the cost of an automatic water level recorder to measure river stage would not be warranted if float gauging is used to the exclusion of more accurate methods.

Chemical gauging, whereby salts, dyes or radioactive materials are introduced into river flow is sometimes used. With this " dilution" or "tracer" method, a concentration ct of the tracer is injected into the flow at a rate qt. Downstream, samples are taken when equilibrium concentration cc has been achieved and the discharge qt is

qt = (ct/ce - 1) qt (2.18)

Methods of concentration determination however, involve expensive detection equipment that would not be appropriate to most projects.

Stream Flow Networks

It is likely that a project that measures stream flow will require a number of stations, but at the same time will need to keep down costs. A basic network should consider:

- Determination of the minimum catchment area to be monitored, perhaps as large as 250 km² per station in developing regions .

- A station should always be located at the catchment outlet.

- Gauging of major tributaries should be undertaken.

- Locations/streams of particular significance such as those in areas of future development should be targeted.

- Regard should be given to the kind of use the information will be put to: flood forecasting; irrigation development etc.

- A good sample of hydrological, topographical and geological types could be monitored.

- Probability forecasts are usually an important factor in collecting stream flows and the longer the station records, the better.

- However, if budgets are severely restricted, then stations can be moved after 5 or 10 years and synthetic data derived thereafter.

- Where possible sites should be located near bridges etc. for ease of measurement and instrumentation and should have good, all year access.

- Gauge height readings from manually-read, graduated posts will require a site reader.

2.2.2. Artificial Controls for Runoff Measurement

Natural controls are limited by the occurrence of natural channels, whereas artificial controls can be placed wherever there is need for them. This can be in natural channels if desired, but bunds and channels can also be installed to bring dispersed surface flow to a point suitable for measurement. Furthermore, artificial controls are pre-calibrated with known rating curves which do not have to be compiled using flow-discharge information. These advantages make artificial control structures the most suitable for agrohydrological applications. There are many designs of artificial controls, each developed to be suitable in different circumstances and it is important to select the correct design of structure for the job in hand. Figure 2.26 presents a diagram to aid selection.

The basic assumption is made here that agrohydrology and water harvesting projects will measure runoff from relatively small catchments, fields and experimental plots, though equipment suitable to measure runoff from areas in the order of square kilometres is considered. Peak flows will be relatively small, probably no more than 1- 2 cubic metres per second, in many cases peaks will be only a few litres per second. Therefore, from the wide range of artificial controls available, those that are most appropriate to small peak flow measurement have been selected and are described below in detail, with examples of installation, problems of operation, etc.


Figure 2.26: Selection of Artificial Control Structures

Situations may be encountered where small structures are inadequate, and examples of large artificial controls are given, but in less detail. These are minor works of civil engineering and their construction is usually undertaken only by River Authorities and similar organizations. They are costly and permanent, but in some situations may be essential if stream flow data are to be collected where natural controls are unsuitable. Any project proposing to enter into the construction of such controls is urged to approach the relevant Authority and seek advice as to those which have proved most suitable for local conditions, their likely cost and problems of installation.

2.2.2.1 Flumes

Flumes are essentially long, box-like structures that allow the flow of water to retain or increase its kinetic energy as it passes through them. They have the advantages of being able to measure small flows accurately while allowing debris and sediment to pass. They can be made light and portable and can be located in most situations. They may be fitted to small experimental plots which do not have natural channels, or be placed in steam beds. They are probably the most suitable of all artificial controls for agrohydrological applications.

a. H, HS and HL flumes

The H flume is the basic instrument of this group. HS flumes are designed to measure very small flows accurately (flows < 28 1 s-1), while HL flumes are capable of measuring much greater flows (up to 3.3 m³ s-1). The materials from which they are made, their installation and operations are similar to the H flume, though their dimensions are somewhat different. H flumes fill a wider niche of runoff measurement than HS and HL flumes, therefore this section will discuss them in detail. The design criteria of HS and HL flumes are given below in Figures 2.27 and 2 28. Rating tables for the conversion of recorded stage to discharge are given in Appendix A1. The main point to note is that the dimensions and quality of manufacture strictly determine the rated capacities of the flume, therefore they should be made as accurately as possible to retain the correct rating characteristics.

HS and HL Flumes


Figure 2.27: Design Specifications of HS Flume


Figure 2.28: Design Specifications of HL Flume


Table 2.19: Capacities of HS and HL Flumes

Rating tables for these HS and HL designs are given in Appendix A1.

H flumes

For the range of flow measurement met in agrohydrology, especially runoff plot and farmer's field studies, H flumes are very useful measurement devices, but it is important that they are manufactured and installed with precision. Figure 2.29 gives the design dimensions.

Construction

The flume is the component of the whole structure to which the water level recorder is attached to measure stage.

- To manufacture the flume, prepare detailed drawings of the design with the maximum capacity needed.

- Make a paper and then a thin sheet metal template of the flume that can be used many times.

- Use either heavy gauge galvanised or mild steel sheet that can be rust-resist painted to make the flume.

- The thickness of metal should be appropriate to the overall size of the flume.

- Support all edges with angle iron or structural steel to prevent warping.

- Welded joints should be water tight, strong and ground smooth.

- Vertical sides should be exactly vertical and made from one piece, the bottom plate should contain no more than one joint and it should not be closer than 30 cm to the outlet.

- Avoid all distortions, dents and warps when cutting and fixing plates.

- Before installation, the flume should be checked for adherence to the proportional dimensions in Figure 2.29.

Approach section and stilling well

The flume head or measuring section acts as an artificial control to allow stage measurement, in addition all flumes need an approach section, attached to and upslope of the flume. They also need a stilling well upon which to site the water level recorder (WLR). Remember that the top of this well must be of a suitable design to take the specific manufacture of WLR. It is usually essential therefore, to obtain the WLR before the well is designed and fitted. Stilling wells are best made of the same metal as the flume and welded to the head measuring section. Openings allow the passage of water between the flume and stilling well.

H Flume Specifications

For small flumes (D = 20 to 60 cm), it is good procedure is to construct the approach section out of flume metal according to the specified dimensions and weld it to the flume in the workshop, with the required slope of 2%. In the field, the flume measuring section is installed with its floor horizontal (use a spirit level) and the approach section will then be set at the correct slope without further action. Such an installation has the advantage of being portable and can easily be removed for ploughing or relocation. Large flumes may require under-floor support of the approach section. Handles on the walls allow ease of portability (see Figure 2.30 below).


Figure 2.29: Design of H flume

Note: for flumes with D < than 30 cm, length of flume is made greater than 1.35 D to allow for float and stilling well.

Source: USDA Handbook 224

For large flumes (depth 1.2 m+), construction of the approach section can be completed in the field using cement block walls to the appropriate dimensions in Figure 2.32. All block work and cement floors should be rendered smooth and the join between flume and approach section should be well sealed. Alternatively, treated wood (tongue and groove with water tight joints) can be used for large or small flumes. This can be sheet metal-covered if preferred and makes a good, cheap temporary structure, but consider the problems of termite damage and rot.


Figure 2.30: H Flume, Approach Section and Stilling Well

A concrete approach floor with a 2% slope can be used, with the (metal) flume discretely bolted to it and the join sealed. However, concrete floors do not allow the same flexibility of removal and may be problematic where installation is dependent on seasonal ploughing. In all cases, angle iron should form the sloping edges of the flume, to prevent any distortion.

Installation
Before installation, it is well worth considering the following points:

- Has the flume been checked for correct manufacture?
- Has a test fit of WLR, float and counter weight been made?
- Has permission to install been given where required?
- Will the installation be permanent / be there for many seasons ? or
- Will it have to be removed for ploughing and then replaced?
- Is the design too big for easy transport and installation?
- Is it located in the correct position?
- Would many cheaper but shorter-lived flumes serve the purpose better?

Installation should take place with the approach section just below ground level and at the lowest elevation of the plot or catchment. This is convenient if in a natural stream channel, but for agrohydrological measurements, this may entail the construction of bunds (typically earth or galvanised steel) to concentrate the flow. If gutters are used instead, they should be covered or the runoff from rain falling directly into them must be taken into account in runoff calculations. To avoid scouring and undermining of the approach section, a small clay or cement apron can be positioned where water runs into it from the plot. A hard surface (tiles, cement) is placed below the outlet point to prevent erosion.

Remember that the measurement of runoff from ploughed fields in particular involves sedimentation as a problem. If so, then the flume should have a 1 in 8 sloping floor fined as shown in Figure 2.31. A sloping floor makes no significant difference to runoff measurement.


Figure 2.31: Front Elevation of H Type Flumes Showing Sloping Floor

Setting the water level recorder
Flumes require water level recorders to be fined at the measuring section to record water height. The simplest way to fit the WLR is as follows.

- Test that the WLR float and counterweight move freely up and down within the stilling well, with the WLR sitting on top of the well, but not fixed.

- The stilling well should be designed to have its base at a lower level than the flume floor by about 10 cm, thus forming a sump.

- The sump is filled with water until it flows out into the flume.

- The WLR is fined with tape, float and counterweight.

- When the float is lowered, water is displaced until the float rests at the zero position.

- The WLR pen or electronic level is set and the WLR stand can be bolted into fixed position.

- The WLR is then set in relation to the flume floor and any accidental subsidence will not affect readings.

- As the sump water evaporates the WLR will register negative readings, but in the event of runoff, the sump will fill and the float will rise rapidly.

- The amount of runoff needed to fill the sump is negligible.

- Alternatively, a wire frame in the sump set to a level whereby the float rests on it at zero level with the flume floor can be used to prevent negative values. - Check the sump for sediment and clear as necessary.

Rating Tables and Equations

Strictly speaking, current metering checks should be made on the operation of flumes, to ensure that design specifications have been followed precisely and rating is accurate. However, in practice the facilities and time to do this will rarely be available for project staff working in the field, especially in developing countries where suitable facilities may not exist. It is essential therefore to construct the flumes accurately and avoid accidental damage to them. Damage is most likely during transit to the installation location, or during seasonal removal.

The equations that govern the rating (stage/discharge) of H flumes are complex and it is advised that the rating tables provided in Appendix A1 are used.

The rating equations for H, HS and HL flume stages are given below for discharge in cubic feet:

Low Flow: Transition:

Q = A0 (280 + B1H) H( H - 0.01)A1
Q = (K0B0 + K1B1H) (2g)0.5 H1.5 (2 19), (2 20)

Medium and High Flows:

Q = {(E0 + K1D) B0 + (F0 + F1D) B1 (H +v2/2g )}(2g)0.5 (H + v/2g)1.5 (2.21)

with D = 1 and v = average velocity at the head measuring section


Table 2.20: Coefficients of Rating Equations 2.19, 2.20 and 2.21

Siting and Plot Construction

For small catchment and plot runoff measurement, the simplest location for the flume is in the lowest-lying corner. Use of a simple levelling instrument from one base will identify this point, without the need to undertake a comprehensive plot survey. Few plots, even those that have been land-levelled are absolutely square to the land contours and it is likely that the lowest point will lie in a corner of the plot, which is conveniently the focus of the defining bunds or walls. However, the use of a level is necessary as an assessment of elevation by eye can be misleading. Galvanised sheeting cut to 30 cm wide strips and dug into the ground will form a durable perimeter for small plots. The edges must overlap well, with upslope ends of the metal sheets on the inside of the overlap. Where they meet the flume approach section, they can be bolted to it and provided with a water-proof seal. Earth banked against the inside of the sheets at this point can help prevent scouring.

Rarely, scouring around the flume approach mouth can be a problem. The metal approach in Figure 2.30 has a step dug under the ground to help prevent this. Compacted soil, clay or cement aprons can also be used, but a solution will depend on the particular circumstances of the site and workers should be prepared to use their imagination in overcoming small problems such as these. Earth bunds will be cheaper for larger catchments. Experience shows that for a 0.4 ha plot (4,000 m², 100m × 40m) a perimeter bund built to 50 cm takes about 4-8 days to complete by 4 people on a hard, compact sandy loam soil. Picks, shovels and mattocks will be needed. Settling of the soil reduces the height of the bund to approximately 35 cm after a few weeks, with no further reduction. Weed growth soon aids stability. As a guide to perimeter bund construction, pegs with string at the desired height are adequate. Soil is dug and thrown in, with the trench on the outside of the plot. Obviously 35 cm bunds enclosing a plot with a flume of greater depth would not be adequate, or if they were, they would indicate that the flume had been over-designed. For any but the smallest plot, it is not necessary to cover the flume or account for rain falling directly onto it. In the example plot above, the H flume and approach section represent only about 0.01% of the runoff area.


Figure 2.32: Alternative Installations for H Flumes

Submergence

Wherever possible, flumes should not be located where submergence, that is the ponding of discharged water around the outlet, will occur. Drainage channels (where necessary) should be adequate to deal with the removal of discharge. This is not a problem at locations with any reasonable slope, but in low-slope areas (1% or less) it can cause difficulties. H flumes are well designed to cope with the submergence problem, 30 and 50 % submergence cause less than 1 and 3% inaccuracies in the measured flow, respectively.


Figure 2.33: Head and Submergence, H flume

Figure 2.33 gives the relation between the increase of flume water head due to submergence and depth of submergence. It is defined by the equation:

H = d1/ 1 + 0.00175 (ed2/d1)5.44 where (2.22)

H = free flow head;
d1 = actual head with submergence;
d2 = tail water depth above flume zero head
e = base of natural logarithms (2.71828)

However, before seeing the head / submergence relation as a way out of this problem it must be remembered that a second WLR, or some other method, is needed to measure the depth of submergence. Given the high cost of WLRs, (as well as the extra time needed to analyze the data) it is best to choose a less problematic site for installation, if at all possible.

b. Parshall flumes

Parshall flumes are a particular type of Venturi flume, their chief advantage being that they cause only a low loss of head during operation. Their design is based on a long constricting section or throat, the floor of which is flat. They are more difficult to construct than H-type flumes, having a more complex shape, but in general they have no significant advantages for measuring runoff in most circumstances, except that they can be constructed on site to measure very much larger flows. Field calibrations, with velocity recordings and large flows of water, which are difficult to arrange, could be necessary. Small Parshall flumes can be bought relatively cheaply, but they are too small to be fitted with WLRs and therefore are only suitable for regular, predictable flow, such as that in irrigation channels. In these circumstances, stage can be measured manually on a regular basis. Small flumes can be manufactured from welded sheet metal, following the careful practice outlined above in this section, though the design is complex and the tolerances of dimensions are very small. They are installed with the flume floor level and care must be taken that they are stable and undermining by erosion cannot take place in front of the converging section. The stilling wells are located in the adjacent banking (see Figure 2.34) and hydraulic connection to the water level recorder is provided by a connecting pipe at flume floor level. WLR installation procedure is the same as for the H flume.


Figure 2.34: Parshall flume

Source: USDA Handbook 221

Rating Equations
The general rating equation for small Parshall flumes is:

Q=4Wha1.522 W0.026 where (2.23)

Q = discharge in cubic feet
W= throat width or length of crest in feet (the size of the flume)
Ha = gauged head, 2/ 3 {(W/2)+4)}feet back from the crest in feet

In metric form, with dimensions in metres, the rating equation is:

Q= 4 ( 0.3048)2-1.57(W)0.026 WHa1.57(W)0.026 where (2.24)

Q = discharge in m s-1
W = throat width in m
Ha = upper gauge head in m at a point 2/3 (W/2 + 1.219) metres back from the crest.

The general formula for large flumes (> 3 m) is given by Parshall as:

Q= (2.29265 W + 0.47376) Ha1.6, with all values in metres (2.25)

Large flumes are constructed of reinforced concrete in the field and their manufacture is a difficult task and accordingly expensive. They are generally used where flows are large (they can measure flows much greater than H-type flumes) and where backing up of water and submergence can be a problem. They do need more than one water level recorder where this latter condition is met, however. Where flows are regulated and orderly (for example during irrigation procedures) they can be used with manual gauges, which should be read at short, regular intervals. This saves greatly on the cost of WLRs, as is also the case for H flumes. Capacities and dimensions for Parshall flumes are given in Appendix A 5.

Submergence

Submerged conditions occur when water in the diverging section impedes flow in the converging section and they demand a more complex formula than for H flumes. It is accurate for values of Hb / Ha up to 0.96:

Q = C1 (H2 - Hb)n1 / {-(log Hb/Ha + M2)}n2 (2.26)

Values for submerged flow coefficients and exponents, C1, Ha, Hb, n1, C2 and n2, are given below in Table 2.21. St is transition submergence, where free flow changes to submerged flow.


Table 2.21: Submerged low Coefficients and exponents for Parshall Flumes (m)

2.2.2.2. Weirs

A weir is a low dam or wall built across an open channel and has a specific shape and size. Water flows over in a free-falling sheet (nappe), but if the nappe is partially under the water downstream of the dam, it is said to be submerged. In this condition the accuracy of measurement is reduced. There are many types of weir, but none are suitable for locations other than those with light concentrations of sediment. Some common designs are described below.

a. V-notch Weirs

These are often used to measure low flows, as they do so accurately. They are therefore relatively useful in agrohydrological situations. The common V-notch is a 90° opening (usually cut from a metal plate) with the sides at 45° to the vertical. The approach velocity of flow can be ignored if the distance from weir to bank is twice the head and the height from channel bottom to the crest is twice the head. To fulfil these criteria, modification to the approach section is not usually difficult. V-notch weirs are also useful in the agrohydrological context, because not only can they be used to measure flow from plots and small catchments, they are relatively easy to make and install. Their rating equation for various flows is simple. Their biggest disadvantage is that they are unsuitable for locations with any other than low concentrations of sediments. The V-notch should be kept clean and sharp at all times.

Manufacture and Installation

The 90° V-notch is cut from rigid 10 mm sheet mild steel, which is galvanised or carefully painted to resist corrosion. This is bolted to the cement block approach section (with a rubber gasket sealed joint), which also acts as a sediment sump.

Figure 2.35 below shows a typical installation of a small V-notch weir.


Figure 2.35: Installation of V-notch Weir

The V-notch is bevelled to a sharp edge and must be maintained in this condition. The stilling well is located away from the weir, at a convenient point and hydraulic connection is made to the sump (at the level of the V apex) by a 5 cm diameter pipe. The stilling well can be any convenient dimensions. A small oil drum fixed into the ground, with a suitable outlet for the connecting pipe, makes a good form for the stilling well. It should be treated to resist corrosion. The top of the drum has welded or bolted onto it, fixings appropriate to the type of water level recorder to be used. It should also be fitted with a lid with small holes adequate for the passage of the float / counterweight tape or wire. The connecting pipe should be fixed to the drum prior to installation, laid horizontal by levelling and sealed at the sump end. Bunds are raised to direct flow to the weir and should be solid enough to resist erosion. The simplest way to set the level of the WLR and to check that the levels of the V-notch and pipe are the same, is to fill the sump and stilling well with water (though this may take several hundred litres, depending on the size of stilling well and sump). The water level should be allowed to settle until it is just at the apex of the V-notch and at the bottom of the pipe in the sump and stilling well. The float can then be lowered, a small amount of displaced water will drain and the pen or electronic counter on the WLR set to zero. The WLR will register negative values due to evaporation from the stilling well during long periods without runoff. Some account must be made of runoff collected in the sump and refilling of the stilling well after rainfall, especially if the runoff event is small. The capacity of the sump may be several hundred litres. This procedure will depend upon the exact circumstances of the installation, the size of runoff event and the degree of sedimentation of the sump, etc.

Rating Equation

The rating equation for a 90° V-notch weir is relatively simple and from it a rating curve or table can be derived. It is:

Q = 2.49 H2.48 where (2.27)

Q = discharge in cubic feet ( 35.3 ft3 = 1 m³ = 1,000 litres)
H = head above lowest part of the V-notch in feet ( 1 foot = 0.305 m)

For V-notch weirs with angles not equal to 90°, the rating equations are complex and discussed below for large structures. For small weirs, however, there is little or no advantage in diverging from this orthodox design.

b. Large Weirs

Examples of large artificial controls are given below, but in less detail than those used for the measurement of small runoff flows. These structures are minor works of civil engineering usually undertaken only by River Authorities and similar organisations with the necessary equipment and skills. They are costly and permanent, though in some situations they may be essential if stream flow data are to be collected and natural controls are unsuitable. Any project proposing to enter into the construction of such controls is urged to approach the relevant Authority and seek advice as to those which have proved most suitable for local conditions and their likely cost.

Broad Crested V-notch Weirs (Triangular Weirs)

Large versions of the 90° V-notch weir can be used to measure large volume of runoff, but as runoff amounts increase so does (usually) the presence of debris which may block the outlet. Triangular weirs pass floating debris easily.


Figure 2.36: Broad Crested Weir

They are large, permanent concrete structures, capable of measuring flows greater than 30 m³ s-1 and involve a considerable input of finance and labour. Backwater ponding is not permitted. However, they are relatively simple in design and construction' compared to alternative weirs and so are discussed here in some detail. Figure 2.36 shows the dimensions of such a weir with a 3:1 sloping section.

A straight section of channel is needed for 20 m upstream and a concrete apron 4m long is needed downstream. A large end cutoff wall is necessary to prevent the structure being undermined. The calibration of these weirs is affected by the approach velocity, the cross-sectional area of the approach 3 m upstream from the weir being a measure of this. Rather than providing a series of rating equations, which are very complex for these weirs, rating tables are given in Appendix A 4.

c. Culverts and Similar Existing Structures

In some instances it is possible to use existing structures such as road culverts to measure runoff. The advantages of such structures are that they may be fairly common and will be already in place. Sometimes they may have to be built out of necessity for other project activities and so impose no extra cost on the hydrology budget. It is important to remember however, that in most cases existing structures will not have been made with runoff measurement in mind and modification may be necessary.

This can be costly and time-consuming. They may not be conveniently located and serious errors of estimation can occur when such structures are used without knowledge of suitability. The basic aspects of flow in culverts are discussed here because culverts and their runoff capacities can be an important aspect of water harvesting schemes, farm layouts and irrigation projects. In particular, square concrete and circular corrugated metal culverts are frequently encountered.

Flow in culverts

Culvert capacity can be controlled by the inlet section or the conduit. In either case the head water elevation may be above or below the top of the inlet and the solution to calculating culvert flows depends on the head and tail water conditions. Square or circular sectioned culverts may be used, but neither are accurate meters of low Bow when compared to pre-calibrated artificial control sections. The three main types of flow in culverts are:

1. Where the slope of the conduit is less than the neutral slope. The conduit is full and therefore controls the flow. Inlet submerged, outlet submerged or not.

Use Pipe Flow Equation (2.29).

2. Where conduit slope is greater than neutral slope. Inlet submerged, outlet is not submerged. Entrance controls exist (inlet submerged) .

Use Orifice Flow Equation (2.30) or Figure 2.38

3. Inlet not submerged, outlet not submerged, culvert slope less than neutral slope.
Conduit controls exist and Entrance controls do not.

Use Manning's Open Channel Formula (2.31)

Neutral slope is defined for small angles of the conduit to the horizontal by:

Neutral slope=tan x = sin x = Hf/L = Kc (v2/2g) where (2.28)

x is the slope of the conduit,
Hf is friction loss in conduit of length L (m)
Kc is the friction loss coefficient v is the velocity of flow in m s-1 g is the gravitational constant in m s-2

Figures 2.37 (a) to 2. 37 (c) illustrate these conditions, respectively.


Figure 2.37 (a)


Figure 2.37 (b)


Figure 2.37 (c)

1. Pipe flow (that is when the conduit controls the capacity of flow) usually occurs when the slope of the conduit is less than the neutral slope. The pipe flow equation is:


where (2.29)
Q = flow capacity in units of L3 T-1
a = cross-sectional area of conduit in units L2
H = head causing flow in units of L
Ke = entrance loss coefficient
Kb = loss coefficient for bends in the culvert and can therefore often be ignored.
Kc =head loss coefficient (which = (1,244,522 n2)/ d1.33 where d =diameter in SI units and n = Manning's n)

Values of a, L and H are measured.

To see if conduit slope ( x ) is less than the neutral slope, the latter is found by equation 2.28:

Sn = tan x = sin x = Hf / L = Kc (v2 / 2g) where

x = slope angle of the conduit
Hf = friction loss in conduit length L in m
L = conduit length
Kc = friction coefficient
v = velocity of flow in m s-1
g = gravitational constant in m s-2

Worked example

What is the capacity of a 600 mm diameter culvert, 15.0 m long with a square edged entrance? Survey shows the inlet elevation to be 456.35 m, the outlet elevation = 456.20 m, the head water elevation is 457.95 m and tail water elevation is 455.25 m ?

The first step is to assume that pipe flow prevails and use equation 2.29

Ke = 0.5 (square inlet)
Kc= 0.319 (with Manning's n estimated at 0.036)
Kb is only used for conduits with bends and therefore is not included
H=0.94 m
a =3.14 m²

Therefore:

m² s-1

To determine if the pipe flow assumption is correct, the neutral slope is calculated from equation 2.28 and substituting discharge / area for velocity in SI units,

Sn = 0.319 × (0.283)2/ 2 × 9.8 × (0.28)2 = 0.0166,or 1.7%

As the actual slope of the culvert S = 456.35 - 456.20) / 15.0 = 0.01, or 1.0 %, then as culvert slope < than neutral slope, pipe flow conditions prevail. To check whether orifice conditions (as opposed to pipe flow) prevail, the orifice equation 2.30 below, is used. The values of h and C in this equation are 0.85 and 0.6 respectively. The discharge is:

m³ s-1

This discharge is greater than the full pipe capacity and therefore pipe flow must prevail. Using the procedures above and in cases where the culvert slope is found to be greater than the neutral slope, pipe flow cannot prevail, the orifice equation should be used. Outlet not submerged.

2. Orifice flow is the second type of flow and is found when the conduit slope is greater than the neutral slope, the inlet is submerged but the outlet is not (i.e. inlet controls exist). The equation for orifice flow is:

where (2.30)

a = cross sectional area
h = head to the centre of the orifice
C = 0.6 for sharp-edged orifices
g = the gravitational constant in m s-2

Alternatively, Figure 2.38 can be used to determine flow from an orifice with inlet (entrance) controls where H= head and D= diameter of a circular sectioned culvert in m.


Figure 2.38: Stage Discharge Relation for Control by Square Inlet to Circular Pipe

3. Channel Flow (Manning's Formula).
In some cases the headwater elevation is lower than the top of the inlet and control is by the channel or conduit itself. This occurs where the conduit slope is too shallow to allow the maximum possible flow that could be provided. Manning's formula is used to calculate flow. In other cases, despite the low head, the inlet section still provides the control and restricts the flow. This occurs when the slope of the conduit is greater than that required to move the possible flow through the inlet. Figure 2.38 can be used in these cases. To determine whether the results as given by either channel flow or inlet restriction calculations are correct, follow the steps below.

Assume restriction at the entrance does not exist.

Calculate channel flow using Manning's formula:

v = R0.667 S0.5/ n where (2.31)

v = average velocity of flow in m s-1
n = roughness coefficient of the channel
R = the cross-sectional area divided by the wetted perimeter (a/p) in m
S = hydraulic gradient (channel slope)

The use of this formula depends on making the dimensions of the channel such that v = Q/a and where Q the flow rate of the channel.

Then use Figure 2.38 to check the flow through the inlet. If the Manning's solution gives a flow greater than that from Figure 2.38 then obviously the latter is correct since this represents the upslope control of all flow through the conduit. Where the situation is reversed (channel flow < inlet flow), channel flow will prevail.

Manning's Formula Worked Example

Determine the capacity of a pipe of 1.20 m diameter, 20 m long with a square-edged entrance. Elevation of the inlet is 224.0 m, outlet is 223.95 m . Head water elevation is 225.0 m and tail water elevation is 220.0 m. In this case, the conduit has a very shallow slope and channel conditions may prevail. In the first instance assume a flow depth in the conduit of 0.6 m. Then

a = 0.57 m²
n = 0.015
R = 0.185 m
S = 0.0025

Substituting in Manning's formula (2.31), v= 1.08m s-1 and Q=0.62m³ s-1

If it is assumed that the approach velocity is negligible, then the loss of static head due to acceleration is = v2/2g, = 1.082 / 19.6 = 0.06 m. The depth of water at the entrance (headwater elevation minus inlet elevation) is 1.00 m and a loss of 0.06 m would give 0.94 m, which does not correspond with the assumed depth of 0.6 m. The process of iteration can be continued. If the flow depth is now assumed to be 0.90 m, then:

a = 0.94 m²
n = 0.015
R = 0.269
S = 0.0025

Substituting into Manning's formula: v = 1.39 m s-1 and the loss of head, v2/ 2g, now = 0.10 m, which when subtracted from 1.00 m = 0.90 m, the assumed depth. Thus flow is limited by the conduit and the discharge of the flow is: Q =1.39 × 0.94 = 1.31 m 3 s-1

Very many different designs of culverts are constructed and it is recommended that specialist manuals be consulted if work in the area of culvert structures and their hydraulic properties in to be studied in great detail.

2.3 Water level recording instruments

Crest Gauges
Manual Gauges
Automatic Water Level Recorders
Electronic Logging Recorders
Chart Recorders
Bubble (Servo-manometer) Recorders

The measurement of flow volumes that use control sections, be they natural or artificial, necessitates the collection of water level data for the passing through the section, either automatically or by observer. The collection of these records is made by the use of one of three types of instrument. In order of providing least data first they are:

Crest gauges:

These gauges record only the highest level of


flow, but do so automatically.

Manual gauges:

These are simple gauges and provide records


whenever an observer is present to read them.

Water Level Recorders:

These are relatively sophisticated gauges that


provide a constant record of water levels.

The choice of gauge will depend upon the importance of the data: the first two types of instrument are cheap to manufacture from local materials, whereas the latter must be purchased at considerable expense. However, to help in correct choice, here is a list of the advantages and disadvantages of each, with a description of the circumstances for which they are suitable.

Crest gauges

Advantages:

- Cheap to manufacture out of local materials
- Easy to transport, place and maintain
- Very little instruction is needed for correct reading

Disadvantages:

- Provide very little data, only maximum peak flows
- Must be visited and read after a high flow

Suitable For:

- Situations where peak flow and maximum discharge only are required, for example estimating maximum flood levels, survey work, maximum flow probabilities. Some manner of converting flow stage to discharge must be available, if discharge values are needed.

Manual Gauges

Advantages:

- Cheap to manufacture from local materials
- Can be easy to install
- Need little maintenance
- Can provide good data from streams that flow regularly
- Essential backup and check on natural controls that have WLRs
- Data is a permanent, written record

Disadvantages:

- Do not give continuous records
- Need to be visited regularly or retain a gauge reader
- Data is as good as the reliability of the reader
- Can be washed away in flood
- Installation can be difficult
- Analysis demands manual input into computer storage

Suitable For:

- Commonly used on permanent streams
- Irrigation schemes
- Can be used on flumes etc. instead of WLRs where flow is regular and easily monitored
- Not suitable where a continuous record is needed
- Distant sites visited from base on a regular but not frequent basis can often be provided cheaply, but a local reader will be necessary.

Water Level Recorders

Advantages:

- Automatic, need infrequent visits

- Give complete runoff record: duration, peak flows, flow recession, volumes

- Data can be linked well to rainfall data (from intensity gauges)

- Data can often be downloaded directly into the computer for analysis with a great saving of time.

- Most suitable for remote sites, need no reader at site

Disadvantages:

- Expensive
- Need regular checks and maintenance
- May be difficult to repair.
- Solid state electronic instruments will have to be returned to manufacturers for repair.
- Need a higher level of training for correct usage.

Suitable For:

- Used where good quality data is essential
- Often used at remote sites where data collection would otherwise be impossible
- Especially useful at base stations where core research is being conducted

a. Crest Gauges

A typical crest gauge is illustrated below in Figure 2.39. Crest gauges provide useful information on peak flows when no observer is present. They can be fixed to bridges, stable stream banks or spillways. One of their most important advantages is the ease at which they can be constructed easily from cheap, locally-available materials.

Construction and Installation

Galvanised steel water pipe or plastic water pipe, with a 5 - 8 cm diameter is suitable. The former is less prone to damage from flood water, debris and rough handling, but plastic is easier to work with, lighter and cheaper.

Suitable caps for plastic pipe are sometimes more easily obtained and do not need to be screw-threaded to fit. Any suitable length from 1.0 - 1.5 m can be used conveniently. A series of 0.5 cm holes are drilled into the lower pipe cap and act as intakes to provide hydraulic continuity with the flow. A vent hole must be provided in the top cap or upper portion of the pipe. Inside the gauge a wooden measuring stick is placed, graduated with clear markings. One centimetre marks give adequate accuracy. Screwed to the measuring stick is a small, perforated container of plastic or non-corroding metal. For this purpose it is better if the stick has a square section. Within this container is placed powdered cork or fine polystyrene granules. When peak flow occurs, this material floats out of the perforated container and deposits itself on the measuring stick, from which the peak flow reading is taken.


Figure 2.39: Typical Crest Gauge

Note that the lower cap has a support for the measuring stick, which is securely screwed to the top cap. The gauge should be installed precisely in a vertical position, using rust-resistant, bolted brackets. The openings should face the direction of flow. The gauge should be levelled to a permanent bench-mark, so that in the event of removal, replacement can be effected from the same base level. Where other gauges are used (for example manually-read staff gauges), it should be levelled in sequence with these if possible, or at least to the same bench mark, so that a relative reference point is available. Care should be taken when replacing the measuring stick if the water level is higher than the bottom of the gauge, as a temporary displacement of water in the gauge could lead to a false reading.

As well as measuring peak flows, crest gauges can be used to measure volumes at unattended sites, or at times when the observation of maximum runon volumes is impractical. For example, some water harvesting systems direct runoff into small basins that provide supplementary water for fruit trees. Knowledge of the basin symmetry and water level can provide an estimate of total received runon, though infiltration losses need to be accounted for. Evaporation is unlikely to cause serious inaccuracy.

b. Manual Staff Gauges

Staff gauges are made of metal (often ceramic-covered) or plastic strips, about 12- 15 cm wide in 1 - 2 m long sections. They have numbered, graduated markings at 1 cm intervals. They are placed in a low-velocity location on structures (bridges, stilling wells, etc.) or on posts in the river bank. The water level is read from their graduated markings. They may be installed singly or in sequence, as illustrated below. In the case of ponds and reservoirs, the posts are set inclined for increased accuracy, as a small increase in water level can represent a large increase in volume. In this case the graduation and setting must be done very carefully.


Manual staff gauges installed in sequence

Staff gauges can be purchased and these are of high quality, but very expensive compared to those manufactured from local materials, especially when shipping costs are taken into account. On the whole, plastic gauges are best avoided as they eventually become brittle and breakage can result when they are placed in rivers that carry much debris. Resetting (which in flashy streams may be necessary each season) of these gauges can also lead to damage and they make popular targets for shooting practice.

Construction and Installation

The facility to manufacture locally is a great advantage. As well as providing large savings in cost, it is important to have replacement gauges available immediately. Perfectly serviceable gauge plates can be made in the following way, for less than one tenth of the commercial cost.

Cheap gauges can be made from flat wooden boards which have been treated to prevent rotting though these will last a few seasons. Aluminium sheet and galvanised steel sheet provide better alternative materials and can be cut into strips for use.

A suitable stencil with which to paint the graduations can be cut (0.5 m is a practical length) from acetate or thin, stiff card,. Thin metal makes a durable stencil, but tends to bend and work less well. The metal strip is painted black as a background. The stencil is placed on the sheet and the markings spray painted in white. Numerals 5 cm high are sprayed at 10 cm intervals in white on the black background Numerals 7.5 cm high are sprayed on at every metre interval. These can be sprayed on in the field according to particular need, another advantage over pre-marked, purchased plates. Two suitable designs are shown in Figure 2.40. The finished plates are then screwed (brass or stainless steel screws) to a treated back-board to maintain a suitable rigidity.

Staff gauges are emplaced at the gauging station during the dry season when permanent streams are at their lowest, or at any convenient time for ephemeral flows. Where possible, they should be fixed to bridges etc. to reduce the risk of loss in floods.


Figure 2.40: Example Graduated Markings for Gauge Plates

The type of fixing will depend on the structure available, but all plates should be vertical. Set the lowest one first and then in sequence. If they are to be placed on a stream bank, 5 cm galvanised water pipe sections make good posts. Alternatively rot-resistant local timbers can be used, but these are difficult to hammer into the stream bed or banks and may necessitate the use of a manual post hole digger. River Authorities and similar bodies have access to heavy installation equipment that is unlikely to be available to most projects. In all cases, the gauges must be levelled to ensure the sequence is accurately placed and the bottom of the gauge must be levelled to a permanent bench mark. If man-made structures are not available, nailed and painted marks on several large trees, well away from the river, will suffice. At many sites it will be too difficult to level into a national survey, but a site plan including all levelling details, should be made. Checks on the level of the gauges should be carried out at least once each year. Staff gauges can be used with artificial controls where flow is regular and reading can be arranged.

c. Automatic Water Level Recorders (WLRs)

There are many different manufacturers of WLRs. There are, however two main types:

Float and Counterweight Recorders
Pressure Sensing (Bubble gauge ) Recorders

Advantages and disadvantages:

In general, the former are the cheaper and more commonly encountered. They are the most suitable for agrohydrological applications because of their small size and ease of siting on artificial controls, especially H flumes which have integral stilling wells. They are easier to install. They do not need special housing, unlike bubble gauge recorders and are therefore more easily re-located. Either type will measure large differences in water level.

Float and Counterweight Recorders

There are two main types of these instruments, according to the manner in which data is recorded and stored: those with electronic data loggers and those which record with pens and paper charts set on a clockwork drum. The relative advantages and disadvantages of each type are listed below. The costs of both types are similar.

Electronic

Chart

Advantages


- Compact and robust

- Widely known

- Wide range of easily set recording times

- Sometimes possible to repair locally

- Good precision

- Do not need computer facilities

- Wide range of level differences


- Long periods between visits if necessary


- Download direct to computer


Disadvantages


- Batteries can fail

- Sensitive to rough handling

- Cannot be repaired locally

- Time/level adjustments limited by

- Need computer facilities

charts and clock which can be


difficult


- More limited recording time


- Manual data entry into computer

Operation

1. WLRs with Electronic Data Loggers

In keeping with the general trend towards solid state electronic instrumentation, this type of WLR is becoming increasingly common, but the float and counterweight, mechanical aspect of these recorders is still very much the same as orthodox chart recorders. The operation of these WLRs is discussed prior to installation procedures, as it is assumed that familiarity with the equipment will be desired before selection or installation in the field.

Changes in water level are detected by a float which sits on the water level in the stilling well, connected to a stainless steel tape or wire that ascends to and over a pulley connected to the recorder. At the other end of the tape or wire which descends from the pulley a counterweight is fitted to balance the mass of the float. As the float rises and/or falls, this movement is registered via the pulley axle. The rotational movement of the axle is converted into electrical signals by an electronic integrator. These signals are passed on to the main processing unit and then to the data logger, at pre-set time intervals specified by the operator. Figure 2.41 below shows a typical electronic WLR set to an H flume stilling well.


Figure 2.41: Electronic Water Level Recorder set in H flume Stilling Well

These recorders are compact and good designs are very robust. The main processing unit is powered by dry cell (preferably alkaline) batteries which should last for a year and which can easily be replaced. In many cases the loggers are powered by integral lithium batteries which last for up to ten years, but which can only be replaced by the manufacturer. These batteries enable the loggers to be removed from the recorder without the loss of data. The electronic components of the loggers are usually resin-sealed to prevent damage. Their operation is relatively simple. Once installed, facilities are available to label the recorder number, date and time. (Typically, these are recorded as a heading prior to the water level data and can be viewed when the data are down-loaded). This information is usually displayed on an LCD screen, which is located on the processing unit and is easily revised by using various switches.

The time interval that is desired for the data to be recorded is adjusted and displayed in a similar way and provides a very flexible facility. Time periods usually range from 1 minute to 24 hours, in 1 minute steps. Changes of date are normally recorded. Readings are precise to 1 mm, but the accuracy of this sensitivity depends on the correct installation and operation of the recorder and measuring section of the control. When a replacement logger is installed, the heading information is usually written on to it automatically. The recorders are capable of recording level differences (zero to maximum) of 100 m, but tapes and wires can be purchased or cut to any desired length. Ensure before purchase, that the correct type of power batteries are easily available.

Avoid the temptation to leave recorders untended for very long periods, just because the loggers allow this. It increases the probability of undetected faults, damage by flood, vandalism and theft. Data that are lost can never be replaced. In addition to the annoyance and loss of data, the misuse of such expensive equipment will greatly reduce its cost-benefit to the project. The more frequent the visits, even to automatically recording equipment, the better, though of course each project must decide upon the priority that this activity can take..

For small catchments and plots, which will provide short periods of runoff, it is important to make the time interval between the logging of water levels short, perhaps no longer than 5 to 10 minutes. A 32 kb logger should not need to be replaced more frequently than once each week or ten days with a 10 minute record interval. For much larger catchments with longer durations of flow, half or one hour periods may be adequate. For seasonal or perennial streams, records once, twice or four times each day may be suitable. Loggers in these circumstances can remain unchanged for many months. In all cases, the most suitable time interval is a balance between these factors:

- logger memory size;
- frequency of site visits;
- duration of runoff

Logger memories vary in size, but 100 kb+ or so is typical. An example data set is illustrated below, from a recorder on a 30 cm H flume: note that no-flow data are also recorded.

Level recorder Nr. 0045

Level in mm

Repeat Period 5 (min)

D T

"90/02/07

23:05 "

P O



P O



P 3



P 7



P 11



P 11



P 55



P 110



P 114



P 107



P 86

"90/02/08

00:00"

P 65



P 33



P 27



etc.



Spare batteries and the tools to replace them should always be carried on site visits, a note of the visit and logger change should be kept. It is difficult to check batteries with a voltmeter and experience is the best indication as to how long they will last. Recorders set on flumes etc. are unlikely to require replacement floats and counterweights if treated properly, though sometimes spares are useful.

Data are usually down-loaded into computer storage by a program provided by the manufacturer. When this is done, the data in the logger is marked for erasure by new data.

2. Chart Water Level Recorders

These recorders have a relatively complicated mechanical action, though this will vary to some extent according to manufacturer, whose instructions must be closely adhered to. The float and counterweight system is similar to that describe above. Typically, the action of the pulley, as the float rises, rotates a horizontal bar along which is a sunk spiral thread. Along this thread a pen and ink carriage is moved to the right by the rotation until it reaches the end of the bar, if the rotation of the bar continues the pen action reverses and it moves to the left along a counter-spiral. In this way the pen traces zig-zags along the chart. When the float falls, the action of the pen is reversed. This allows a wide range in levels to be recorded.

Particular care is needed on two points. First, the chart must be accurately placed on the drum according to its marked, correct position. Second, the pen must be accurately placed at the zero position after the chart is replaced. The adjustments for the speed of the drum can be altered to allow longer or shorter times between chart replacement. This is effected by changing part of the gearing mechanism (provided by the manufacture according to request) or engaging different cogs, often by a lever or sliding rod. Figure 2.42 below shows an example of this type of equipment.

It is important that the ink supply is adequate and that the pen functions properly, drying can be a problem in hot climates. The timing of the clock should be monitored and corrected if necessary. Before and after field installation, the pen should be checked that it turns at the correct place on the chart. Details of recorder number, date etc. can be written onto the chart. Analysis of the data is according to the level/time pen trace and can be undertaken (for flow volumes) by digitiser or by hand.

Charts should be clearly identified with station, recorder number date and time of removal, checks with manual gauges and checks on pen reversal. Change-overs from rising to falling flow, time corrections because of fast or slow clock running marked to the nearest minute and pen relocations should be recorded in pencil on the chart at the correct point. Make sure that the pen moves freely by rotating the pulley to raise the float tape. A free pen will make a perpendicular mark which should be noted as a check. The chart should be replaced on immediate arrival so that time can be spent to check that the equipment is working correctly. It is important to instil a regular routine for each inspection.

In the case of both electronic and chart recorders, the diameter of the float and the length of the counterweight should be appropriate to the size of the stilling well. No contact with the well sides should be allowed.

Installation of WLRs on Small Artificial Controls, Flumes and small V-notch weirs

The installation of water level recorders on to such equipment as H flumes and V-notch weirs was covered earlier. This procedure is straightforward and the same for both kinds of recorder. The main points of installation are the same for all control types: the tape and counterweight should move freely after the recorder has been set horizontally, as indicated by the spirit level provided on the recorder. The details of setting the recorder heading and time period or placing the chart and pen will depend on the manufacturer's specifications, but will be broadly similar to the above.

Installation on Natural Controls and Large Artificial Controls

The installation of the stilling wells for WLRs using large artificial and natural controls, whether electronic or chart, is a costly and difficult process. On the whole, agrohydrological and water harvesting projects will be concerned with small plot or catchment runoff, but the need to install WLRs to measure larger runoff amounts may be an important adjunct to these activities. The basic requirements of installation are described here.

The need in these circumstances, is to provide a large stilling well upon which the WLR can sit. The structure should be:

- Robust enough to withstand peak flows.

- Sited upstream of the control.

- It is of great advantage if the WLR can be secured to a solid structure such as a bridge, or attached to the control by supports.

- It should be placed in a relatively protected location.

- Access should be available at all stages of the river (for example by providing steps which ascend the structure or a walkway from the bank).

- Installation is best done in the driest season.

- Perforated steel water pipe or cemented pre-cast concrete sections can be used.

- To place the well in the lowest part of the channel, (perennial) streams must be diverted to allow access to bedrock. In sand rivers, air or water jetting can be used to sink the pipe, but the danger of it being washed away remains.

- If absolute minimum flows are not required, a diversion is not necessary.

- Heavy lifting gear will be necessary.

- Artificial controls may have to be dug clear of sediment during the dry season, especially in sand rivers.

- A series of staff gauges must be emplaced as a check on WLR operation.

Advice from local organisations familiar with the installation of such structures should be sought at the earliest planning stage. Construction may be beyond the time and resources of the project and less precise estimates of flows may release valuable resources for other work.

3. Bubble gauge (servo-manometer)

Generally, most advantages lie with the WLRs described above and so this description of bubble gauges, is brief, though this type of gauge is quite commonly used in the USA.

Where rivers are subject to violent peak flows with the likely loss of WLRs, these gauges have the distinct advantage of being sited away from flood water.

The manufacturer's manual should be consulted for detailed testing, installation and operation. Bubble gauges work on the principle of depth of water exerting an opposing pressure, registered by a mercury manometer, on that exerted by a regulated gas (nitrogen) supply from a cylinder. An orifice, with a vented cap to minimise sediment entry, is fixed to the river bed from which a plastic pipe leads to the equipment. The orifice should be located below minimum expected river stage. The changes of river level are recorded by a pen, on to a chart fixed to a clockwork drum.

Important points to note are:

- The equipment must be housed in a water and vandal-proof hut away from maximum floods.

- Sediment entry into the orifice vent must be prevented.

- The orifice installation can be jetted or driven into the channel bed, but changes in bed topography may arise.

- A spare nitrogen cylinder is necessary, though the rate of gas discharge may be regulated.

- One cylinder can last many months.

- Care should be taken to ensure the gas regulator operates correctly. This must be
tested before installation.

- The chart recorders are designed specifically for this kind of manometer instrumentation

- Especial care should be taken to avoid damage to the mercury manometer

Figure 2.43 shows how the components of a bubble gauge are assembled


Figure 2.43: Bubble Gauge with Servo-Manometer

Equipment costs

All costs of locally made equipment are very approximate. The costs of raw materials and especially labour are highly variable from country to country, but a good idea of cost magnitude can be gained from the figures quoted below. The costs of manufactured equipment are based on mid-1993 prices, and where possible have been obtained from a range of manufacturers.
Shipping costs, agents fees and fluctuations in exchange rates cannot be taken into account.


Figure

Appendix A: Measurement of runoff

Appendix A1: Rating tables for H flumes, HS flumes and HL flumes

Rating Tables given in the USDA Agriculture Handbook 224 are in feet and inches. If metric measurements are required, conversions can be made using the following conversion factors. 1 inch 2.54 centimetres 1 foot 0.3048 metres 1 cubic foot 0.02832 cubic metres 28.32 litres

Because of the size of increments used in the rating tables (0.1 and 0.01 ft.), interpolation may be necessary when conversions to SI units are undertaken. Linear interpolation is permissible and does not lead to serious inaccuracies. Below are presented two conversions of rating tables to SI units, for a 30 cm deep H flume and for a 90 cm deep H flume. Together, these two sizes of flume and their rating table conversions will cover the range of discharge measurements encountered by most agrohydrological projects.


Rating Table 30 cm H Flume (litres second-1)


Rating Table 90 cm H Flume (litres second-1)


90 H Flume Rating Table continued

Rating Tables for Various Depths of H Flume (feet3 second-2)


Flume 0.5 foot deep


Flume 0.75 foot deep


Flume 1.0 foot deep


Flume 1.5 feet deep


Flume 2.5 feet deep


Flume 2.5 feet deep - Continued


Flume 4.5 feet deep


Rating Tables for Various Depths of HS Flumes (feet3 second-1)


Rating Tables for HL Flume 4 Feet Deep (feet3 second-1)

Appendix A2: Construction details of multislot dividers


Figure


Figure

Appendix A3: Construction details rotary slot dividers


Figure


Figure


Alternate Design for N-1 Coschocton-Type Runoff Sampler


Figure

Appendix A4: Rating table for broad crested (triangular weirs)

For conversions into SI units:

1 foot = 0.3048 metre,
1 square foot = 0.09290 square metre

Rating Tables for Various Cross-sectional Areas of Channel 10 Feet (3m) Upstream of Centre of Crest (feet3 second-1)


2:1 Triangular weirs


3:1 Triangular weirs


3:1 Triangular weirs continued


5:1 Triangular weirs

Appendix A5: Capacities and dimensions of parshall flumes

For conversion to SI units

1 inch = 25.4 mm
1 foot = 0.3048 metre
1 cubic foot per second = 1 second-foot = 0.02832 cubic metres per second = 28.32 litres per second


Figure

TO PREVIOUS SECTION OF BOOK TO NEXT SECTION OF BOOK