Back to Home Page of CD3WD Project or Back to list of CD3WD Publications

CLOSE THIS BOOKSmall Scale Production of Lime for Building (GTZ, 1985, 80 p.)
4. Testing and Quality Control
VIEW THE DOCUMENT(introduction...)
VIEW THE DOCUMENT4.1 Geological investigation (the geological surveying)
VIEW THE DOCUMENT4.2 Laboratory testing
VIEW THE DOCUMENT4.3 Field testing
VIEW THE DOCUMENT4.4 Quality control
VIEW THE DOCUMENT4.5 Tests

Small Scale Production of Lime for Building (GTZ, 1985, 80 p.)

4. Testing and Quality Control

The objective of this section is to describe the testing procedures which could be adopted if specialized personnel or facilities are not available at a sufficiently low cost, or when required. However, it must be stressed that to avoid a waste of effort and money, it may be better to wait a little longer for, or spend a little more money on such services. The quality control tests can be conducted adequately on site.

4.1 Geological investigation (the geological surveying)

The search for a suitable deposit should be avoided by the layman. If this is definitely not possible it should be preceded by considerable reading on the geological aspects of limestone, e.g. the forms in which it can be found, its bedding, and its mineralogy. Further, any reports, studies and investigations which relate to the proposed project should be collected and analysed.

Once in the limestone region one has to:

- Establish the average thickness of the overburden.

- Determine the physical nature of the bedding, e.g. if a deposit is calcrete, is it a hardpan type.

- Where the deposit is not thick bedded and uniform at least in appearance, determine roughly the relative quality of the different layers by using a solution of hydrochloric acid on samples of the different layers.

A drop of acid applied to the rock will cause it to froth and the greater the frothing the greater the available lime in the rock. If a difference cannot be determined, representative samples taken from the different borrow pits and trenches must be laboratory tested, as described later.

- Determine the average thickness of the different layers over the area and thus estimate the average volume of material available.

- Determine the strike and dip of the layer (see the fig. above).

This information can be determined by using the following methods:

-Inspect geographical features of the area, such as river beds or borrow pits, which expose the strata of the deposit. These may not be sufficient, or not present at all, in which case the following methods must be used to acquire information or supplement that available:

- Clear the ground cover (overburden) at random locations over the area to establish its average depth and the ease with which it can be cleared.

- Considering the geography of the area, excavate a series of pits and trenches at suitable relative positions to acquire the geological information as stated above.

- Take representative samples from the different deposits and from different locations in each deposit if necessary, for laboratory testing. Record very accurately the sources of the samples, i.e. which pit or trench they came from and the exact position in these.

4.2 Laboratory testing

Laboratory testing of samples taken during the geological survey should, if possible, be carried out by the Geological Survey Department or some other institution with specially trained personnel and the necessary equipment and materials. Analyses to provide the following information should be conducted to enable comparison and selection:

- available oxide content (CaO + MgO),
- expected loss on ignition,
- reactivities of quicklime,
- types and quantities of impurities,
- relative porosity and hardness,
- colour of quicklime.

If it is not possible to use the services of such an institution, the samples could be adequately compared by firing them in the field testing kiln and analysing them using the techniques described below.

4.3 Field testing

A representative sample of limestone from each deposit of sufficient quantity must be prepared for firing in the kiln.

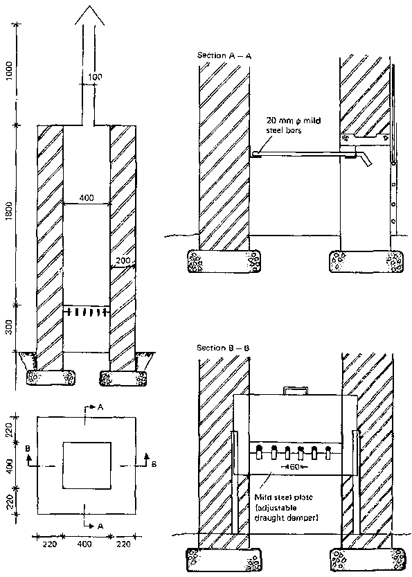
Operation of field testing kiln (see below)

The tests should be conducted in a manner which approximates the real conditions in the full size kiln.

1. Load kiln with layers of fuel and lime, with fuel as the first layer.

2. Start a fire in the fireplace to light the fuel in the bottom layer.

3. Once the bottom fuel layer has caught fire shut off the front of the fireplace to reduce the draught through the kiln.

4. After 36 hours the burning will he completed. Remove the grid rods and extract the quicklime lumps from the kiln.

5. Separate the well burnt lumps from the underfired.

6. Take a representative sample of the well burnt quicklime lumps and execute tests 2 and 3 described below immediately, or pack the lumps in an airtight plastic bag or tin if these tests have to be delayed.

7. Take a further representative sample of well burnt lumps (20 litres) from the remaining portion and conduct test 1.

8. Slake the remaining well burnt quicklime lumps and conduct test 4.

The main advantage of firing in the field test kiln, beside providing samples for laboratory testing at a relatively low cost, is that it enables the project manager to observe the behaviour of the limestone and fuel when fired under field conditions. For example if a limestone decrepitates during firing it immediately renders it unacceptable. Similarly, if a fuel pollutes the lime excessively, the fuel will be unacceptable. Further, it enables him to determine approximately the necessary design and operating conditions that will be required.

4.4 Quality control

At the level of technology referred to in this text little can be done during firing to make adjustments which affect quality. The only direct control is by making adjustments that will affect the extent of the draught through the shaft, and these changes will be based on experience of the effect of the prevailing winds on the quality of the product. Thermocouples are an indirect method of quality control which serve to warn against overburning .

As Sobek points out, thermocouples merely measure the temperature of the interface between the column of material and the kiln wall. They cannot measure how efficiently the limestone has been calcined. They can only warn against overheating. Thermocouples are particularly useful during the firing trial stage of the project, i.e. when trials in the full size kiln are being conducted to determine the necessary operating conditions.

Quality control tests must be carried out on the final product and adjustments made according to the results; The quality control tests that should be carried out at regular intervals, i.e. on a daily basis, are 1 and 2 and less regularly, say once a week, are 3 and 5, as explained below.


Field Testing Kiln

4.5 Tests

These tests are used both at the testing stage of the project when samples from the various deposits are being tested for quality and compared, and also during production for quality control purposes.

Test 1: Loss on ignition test (LOI)

The LOI tee. can be conducted at regular intervals during production to monitor the relative degree of calcination. It should be accompanied by a thorough visual inspection. It is also used in the testing stage to compare LOI of limestone from different deposits.

Apparatus:

-Container of fixed volume (20 or 50 litres), such as a bucket.
-Scale of sufficient size to weigh the above volume.

Method.


1. Weigh container (Wb).
2. Weigh the container filled with a representative sample of limestone feed (Wf).
3. Weigh the container filled with a representative sample of quicklime lumps (Wa),

Or

Conduct the above weighing exercise several times (5 will suffice) with different batches of limestone feed and quicklime lumps to determine average figures for (Wf) and (Wa).

4. Calculate the % weight lost on ignition using the following formula:

(Wf -Wa)/(Wf-Wb) X 100 % weight lost in ignition (% LOI)

The %LOI can be compared with a standard LOI figure calculated under precise laboratory conditions to establish the relative degree of burning, or if this is not available the theoretical value can be used. The volume of quicklime which has been used in the weighing exercise must be inspected to determine to what degree the limestone is overburnt. If firing is conducted correctly there should be no, or a very little, underburnt stone, but this should also be checked for.

Overburnt quicklime lumps can be distinguished by:

a) A difference in colour compared to lightly burnt lumps.

b) A relative difference in weight between lumps of approximately the same size. Overburnt material will be heavier than lightly burnt material.

c) Shrinkage due to overburning may cause cracks to appear.

d) When tapped lightly with a hammer overburnt lumps will produce a sharp ringing tone compared to the tone produced by a lightly burnt stone.

Underburnt stone can be distinguished by the presence of a hard core which has a different colour and texture to the burnt portion. The amount of overburnt material must be estimated and compared with that normally expected (say around 10 %). A variation in the proportion of overburnt stone from that normally expected will produce a variation in the weight of the quicklime lumps (Wa), which will in turn provide an inconsistent and unreliable % LOI figure. The process of inspecting the volume visually is in itself a valuable quality control exercise. It allows the operator to inspect the product systematically and at close range.

Test 2: Reactivity assessment of quicklime

The addition of water to quicklime to produce a lime hydrate results in the evolution of heat. A lightly burnt quicklime will evolve heat, i.e. react, at a faster rate than will a hard, overburnt quicklime. This phenomenon is used in this test to monitor the reactivity and hence the degree of burning of the quicklime produced. It is also used in comparing limestones from different deposits for the purpose of selection.

Apparatus:

- Pestle and mortar.
- Nr. 7 mesh sieve (2.83 mm).
- Scale to weigh from 50 g to 500 ma.
- Thermos flask.
- Thermometer reading at least to 100 °C.
- Graph paper.

Method:

1. Take a representative sample of quicklime lumps of around 2 kg and crush them to small fragments.

2. Take a 200 g representative sample from the fragments, pulverize in the pestle and mortar and pass the whole 200 g sample through a 7 mesh sieve.

3. Place 170 ml of water at room temperature in the thermos flask. Weigh out 50 g of the screened material and add it to the water in the thermos flask.

4. Record the rise in temperature of the mixture in the flask at one minute intervals. 5. Continue taking readings for 24 minutes. 6. Plot the temperature-time curve on graph paper and compare with a standard curve or with previous curves.

The previous two tests together with a thorough visual inspection performed on a daily basis, will suffice for monitoring purposes on a small project.

Test 3: Determination of available lime by the RAPID SUGAR TEST

This procedure is one by Boynton who considers it a simple and accurate test.

Apparatus:

- 300 ml "Erlenmeyer flask" (Conical flask indicating approximate volumes).
- 100 ml burette with a stand.
- Scale weighing 500 to 1000 ma. No. 100 mesh sieve.

Materials:

- CO2 free distilled water.
- Hydrochloric acid (17.5 ml per litre of distilled water).
- Anhydrous sodium carbonate (Na2CO3) (0.85 g).
- Methyl orange indicator.
- Sucrose - granulated sugar is satisfactory (15 g).

Method:

1. Take representative sample of hydrated lime and screen through no. 100 mesh sieve.

2. Take a 500 mg sample end brush it into the Erlenmeyer flask containing 20 ml distilled water.

3. Cork the flask, swirl and heat for 2 minutes.

4. Add 150 mg water and 15g granulated sugar.

5. Re-cork flask and shake at intervals for 5 minutes.

6. Allow to stand for 30 minutes to I hour.

7. Add 2 drops phenolphthalein.

8. Wash down sides of flask and stopper with water.

9. Titrate in the original flask with the standard HCl solution (see note below). Add 90 % of the estimated amount of acid solution before shaking the flask and then complete titration with the final 10% of the acid solution being fed slowly until the pink colour disappears.

10. Note the reading: 1 ml of acid solution is equivalent to l % available lime expressed as CaO.

Note: "A standard HCl solution is prepared of 15.7 ml of HCI (sp. gr. 1.18) per litre of CO2-free distilled water. The solution is standardized against 0.85 g of anhydrous NaCO3 with methyl orange as indicator, so that this amount will neutralize exactly 90 ml of standard HCI solution. In adjusting for this, add more water if it is too strong or more acid if too weak." (Boynton, p. 544)

Test 4: Comparison of lime plasticity (bulk density test)

The plasticity of lime is one of its valuable features when it is to be used in a mortar or plaster. This is due to its great specific surface area (13000 cm²/g compared to around 3200 cm²/g for portland cement), or fineness.

A measure of fineness or specific surface area of a lime hydrate will indicate its plasticity. This can be done by measuring its bulk density.

Apparatus: -Container. -Scale weighing at least up to 30 kg.

Method:

1. Weigh container (Wc).

2. Fill container with water and weigh (Ww).

3. Fill container with hydrated lime (powder form) and weigh (Wb). (The different lime hydrates for comparison must be filled and compacted in the container in exactly the same manner).

Since 1 kg water = 1 litre, the weight of water (Ww) is equal to its volume (Vw) (1 m³ = 1000 litres).

Bulk density = (Wb-Wc)/Vw * kg/m³

Commercial lime has a bulk density of around 575 kg/m3. It is possible to compare the bulk densities of various limes and get an idea of the comparative plasticity. The lower the bulk density, the higher the plasticity. This is a rough test valuable when different limestones are being fired in the field testing kiln for comparison and subsequent selection.

Test 5: Soundness test

The soundness test is a very simple but important test. Its purpose is to determine how effectively the quicklime slakes. Small cores of overburnt material may remain in the lime hydrate. They will slake very slowly. If a lime containing such cores is used in a plaster, at some future time the core will slake in the wall causing the material around it to pop out. Hence the commonly known defect "popping". To avoid this defect the lime hydrate sold must be completely slaked, without any core of overburnt material. This test is used to control the quality of lime produced during the course of production but is of particular value during the triad stage of the project when trials are being conducted to determine the best method of] hydration.

Apparatus: Flat mixing surface and a saucer. Broad bladed knife e.g. spatula.
Method:

1. Mix hydrated lime into a stiff paste on the mixing surface using the spatula.

2. Fill the saucer with the paste leaving a smooth, flat surface.

3. Store indoors and examine daily for three to four weeks. If pitting or popping occurs the lime can be considered to be unsound.

TO PREVIOUS SECTION OF BOOK TO NEXT SECTION OF BOOK