Back to Home Page of CD3WD Project or Back to list of CD3WD Publications

CLOSE THIS BOOKCompressed Earth Blocks - Volume II. Manual of design and construction (GTZ, 1995, 148 p.)
Architecture
VIEW THE DOCUMENTArchitectural achievements or projects
VIEW THE DOCUMENTArchitecture for housing
VIEW THE DOCUMENTArchitecture for public buildings

Compressed Earth Blocks - Volume II. Manual of design and construction (GTZ, 1995, 148 p.)

Architecture

Architectural achievements or projects

A contemporary architecture

The second part of this book on building with compressed earth blocks seeks to show not only that the genuinely modern way in which this material is used and its diversity are self-evident, but also the quality of the architectural achievements realized during the 1980's.

The last ten years have been propitious for a significant development of building with earth in many countries. The compressed earth block is now recognized as a building material rich in technical, architectural and - not least - economic potential. Designers and builders place it high on their list of the range of materials available on the international building market and more and more compressed earth block building production and distribution industries are being set up.

Pilot and experimental projects linked to training have provided privileged situations in which exemplary progress in the use of this material has been made and enabled the genesis of a genuine architectural heritage founded on the blossoming of a body of knowledge to emerge. This progress has generated social and economic spin-offs through the many jobs which have been created in the production and construction industries set up.

The evidence of a new know-how

The compressed earth block, which can be used only through the setting up of a production industry, requires specific knowledge and skills at each stage of its production and use in building, from soil identification at the point of extraction to the completion of built structures. Along this production chain comes first the quarryman, followed by the brickmaker, the architect, the builder bricklayer, and the contractor, each of whom is aware of the potentials and limitations of the material and each of whom develops his own skills in order to fully exploit the former or to compensate for the latter. Building with earth blocks is in effect a real training ground closely linking the building logic of the material itself, with the architectural and the building culture of the architect and of the builder.

The selected project monographs which we present paint an overall picture of contemporary architectural achievements. They evoke both the diversity of the register of architectural applications in the field of housing and also the great richness of building solutions applied. May their role as examples boost the confidence of future builders and fuel their desire to use this material for the realization of housing, schools, colleges or health centres better suited to the needs and means of the societies they serve.

Architecture for housing

The earth block at the service of mass low-cost housing

Located in the Comoro archipelago, in the straits of Mozambique, between Madagascar and East Africa the small island of Mayotte is a French Overseas territory which retains its links with France at the choice of the local population. When the French government decided to respond to the expectations of the population with regard to improving housing and public facilities, it deliberately resolved, as a matter of policy, to launch a development impetus based on the use of local resources. In order to avoid the risk of an outward-looking economy based on the importation of building materials, the local decision-makers and elected representatives opted for the use of the mineral deposits to be found on the island. A vast plan for the identification of these resources was to enable a Compressed Earth Block industry to be set up, an industry which was to prove to be the historical lever in the development of the island thanks to the economic activity which the building sector generated.


MAYOTTE

LOW-COST HOUSING ON MAYOTTE

The exemplary action of the Mayotte Building Company - SIM

In 1978, to meet the objectives defined by the low-costhousing policy-which aimed to renew the housing stock at a rate of 750 housing units per year for ten years, to install sanitary and educational facilities in all communes, and to open up the villages of the island - the Public Facilities department set up research and production units. As for putting the low-cost housing policy into effect, this was originally the responsibility of a "Low-cost Housing Team" which formed part of the Public Facilities department of the island. Soon, however, a mixed economy State company was created, the "Societe Immobiliere de Mayotte" (Mayotte Building Company) or SIM, with responsibility for the construction and management of housing for expatriate civil servants working on the island and for taking charge of the management of low-cost housing programmes for the people of the island. Given the scale of the task to be carried out, SIM's activities rapidly focused mainly on this low-cost housing aspect, which accounted for 95% of its activities. By the early 90's, after twelve years of continuous activity in this field, SIM had built nearly 6,000 low-cost houses giving access to private ownership (including the "Help in kind" model shown here) and nearly 500 units of rented accommodation. This programme, which is unique in the world in its scale and in the impressive nature of the results obtained, is today regarded as a reference by housing experts.

TECHNICAL FEATURES OF THE PROJECT

Very low-cost housing, "Help in kind" model. Type built at the beginning of the 1980s.

Habitable surface area: 33.6 m²

Total surface area: 40 m²

Number of rooms: 2 (bedrooms), each 11.7 m² in area

Verandah: 1, surface area 10.2 m²

Implementation: "Societe Immobiliere de Mayotte" (Mayotte Building Company) or SIM

Construction: local skilled labour and building craftsmen

Foundations: in trenches with weak blinding concrete, then Cyclopean concrete using local basaltic stones and mortar made from local gravel (known as "pozzolonas") and cement. Depth of foundations: approximately 40 cm.

Footings: Cyclopean masonry using basalt rubble stones laid in a gravel-cement mortar. Minimum height above ground level: 30 cm.

Wall material: cement stabilized compressed earth blocks (average 8% stabilizer), laid with stabilized earth mortar.

Nominal dimensions of the compressed earth blocks: I × w × h = 29.5 × 14 × 9 cm

Thickness of walls: 14 cm. Bonding pattern: stretchers.

Stability of walls: projecting buttresses alongside door and window reveals, bonded into the wall. Thickness of buttresses: 29.5 cm (the length of an earth block).

Ring-beam: all the way round the peripheral walls and the partition walls, in reinforced concrete with a single layer of iron rods, poured into lost formwork made from compressed earth blocks. Height of ring-beam: 15.5 cm.

Roof structure and covering: sawn wooden purlins resting on the gable-end walls and the partition walls. Eaves purlin anchored to the ring-beams on waiting rods laid during the pouring of the ringbeam. Covering: Galvanized steel roofing sheets bolted through the purling.

Opening lintels: replaced by compressed earth block Dutch arches.

Finishings. Floor: gravel mortar and cement on compacted infill material. Renders: highly diluted external soil-cement wash or paint. Optional interior paint.

«Help in kind»

The very low-cost housing model of the "Help in kind" type acquired its name from the way in which the housing aid which characterize this type of programme is attributed.

This is because the subsidy allocated to the future owners of these houses is given in the form of building materials and technical advice and consists in supplying roofing sheets (roof), stabilized compressed earth blocks (walls), cement (mortar), wood (roof structure), and metal nails and fixing points for the roofing sheets.

The owner's input, which is rarely possible to mobilize in the form of money, consists in personally providing materials (stones for the foundations and footings) or the equivalent in labour.

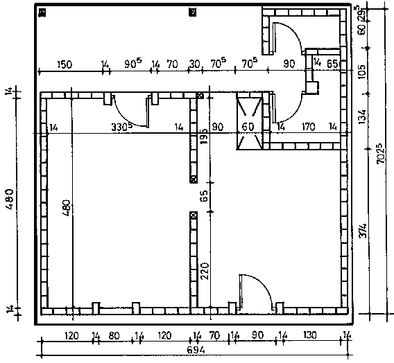
PLAN OF BASIC «HELP IN KIND» TYPE

FIRST COURSE OF BLOCKS


Fig. 192: Bonding pattern for the first course of compressed earth blocks.

SECOND COURSE OF BLOCKS


Fig. 193: Bonding pattern for the second course of compressed earth blocks.

Anchored in the local housing tradition

Before the Mayotte low-cost housing programme was launched, a wide ethnological and housing survey was carried out amongst the local populations by an ethnologist and architects, at the request of the Public Facilities department.

This survey enabled certain constant features in the design of village housing to be identified and decision-makers agreed to preserve these in order to facilitate the social acceptability of the models being proposed.

Thus, the "Help in kind" model was a minimal shelter the design of which was anchored in the traditional Mayotte village "case" (or wattle and daub and thatched shelter) which consists mainly of two rooms, one for the husband and the other for the wife. The "case" opens on one side onto a public space and on the other onto an enclosed family space (the "shanza") via a covered terrace: the verandah. The "Help in kind" model took up these main features.

A simple building system

A system of cyclopean masonry foundations and footings serves to protect the base of the building from water. The masonry walls, raised in stabilized compressed earth blocks with a minimum width of 14 cm, consolidated by projecting vertical buttresses and by a ring-beam, are built directly onto a cement floor poured onto compacted earth.

Note on figs. 192 and 193 the precise coursing of the first two courses of blocks which serve as a reference for the skilled masons to achieve a perfect bonding pattern. The masonry of the verandah consists in independent pillars supporting arches at the top, this verandah building system being connected to the walls, however, by the ring-beam.


Fig. 194: Main elevasion with verandah.

Minimal use of cement

The cement imported onto the island has to be used as little as possible in order not to place a heavy burden on the total building cost. It is used mainly as mortar for the cyclopean foundations (dosed at 250 kg/m²), for the cyclopean masonry footings, as a stabilizer for the masonry mortar, as mortar for the poured cement screed for the floor and finally for the concrete of the ring-beam. Concrete lintels are rejected in favour of compressed earth block arches, which also improve the attractiveness of this very simple design low-cost house.


Fig. 195: Gable-end elevation. Note the vertical mason reinforcement with a post integrated into the bonding pattern.

Good boots and a good hat

The island of Mayotte is situated in a tropical, hot, humid and maritime climatic region. The climate alternates annually between a dry season from June to November and a wet season from December to May. The end of this season is sometimes marked by the passage of a tropical depression and more rarely by that of a cyclone (the island was hit by cyclone Kamisy in April 1984).

For these reasons and because the earth block is the main building material for housing' the architectural design adopts the principle of good boots and a good hat. The foundations and footings consist in a single masonry block raised above ground level and extended by a drainage ditch; water run-off along the walls is ensured by a floated cement mortar incline (fig. 197).


Fig. 196: Section AA figs. 192 and 193. Note the arches: semi-circular (verandah), Dutch (doors and windows), and corbel (upper ventilation of the gable-end).

Around the top of the walls a reinforced concrete ring-beam in a lost formwork of earth blocks also serves to anchor the eaves purlin on which restes the lower edge of the steel roofing sheets which then extende beyond the wall. This anchoring system also ensures that the sheets are better held down given the cyclone risk (fig. 197, right-hand detail).


Fig. 197: Principle used for water runoff at the base of the wall and for anchoring the lower edge of the roof covering.

Optimum use of local materials

The principle of the optimum use of local materials is directly illustrated by the compressed earth block masonry; block production exploitee local lateritic soil and gravel deposits, with cement used as a stabilizer accounting for only 8% of this production.

This principle is also very directly illustrated by the use of a building system with footing and compacted earth infill, the latter filling the "empty space" left by the construction of the footing. This space enclosed by the footing is filled with a layer of reject materiel from sifting at the brickworks or obtained directly from gravel deposits suitable for roadworks. This firstcoarse layer is then covered over with a layer of fine gravel compacted and raised to the level of the top of the footing. A cement mortar and gravel screed finally provide the level surface on which the earth walls will directly be built (fig. 198).

FOOTING


Fig. 198: Infilling the footings using the waste material from sifting gravel.

Wall masonry

The first course (fig. 199) uses corner blocks and blocks at the reveals of the openings to locate the vertical buttresses of the thin walls. These corner and buttress blocks will serve to position the straight edge and to stretch the string used to make sure that the height of each successive courses is correctly levelled. Note the independent starting points of the pillars which will support the roof overhang of the verandah.

WALL MASONRY


Fig. 199: Masonry of the first course of compressed earth blocks.

Second course

The second course of stabilized compressed earth blocks uses the same principle as the first, laying stretchers shifted along to avoid vertical joints one above the other.

WALL MASONRY


Fig. 200: Masonry of the second course of compressed earth blocks.

Note (fig. 200) the care taken with the buttresses alongside each opening, with the alternate use of a full block (first course) and a half block, giving a cries-cross orthogonal bonding pattern.

Note also the bonding system of the gutter walls (elevations) and the partition walls using the same principle of overlapping in a "T" shape using alternately full blocks (first course) and a full block with two half blocks (second course).

For the verandah posts, those which are up against the elevation wall are built with the blocks simply placed one above the other, the temporary risk of collapse being overcome by using a mortar with a completely filled vertical joint between the post and the elevation wall. These will later be attached to the walls by the ringbeam.

Masonry up to the window sills

The building system for the "Help in kind" house type uses the principle of building independent window breasts. The earth block reveals of the windows are thus built up like those of the doors up to the height of the spring points of the arches. The window breasts, also built from earth blocks, are added in simultaneously or afterwards, using the principle of totally independent masonry with a dry joint between the breast and the buttresses at the reveals of the openings. This principle simplifies the bonding pattern and totally eliminates the classic risk of cracking resulting from the transmission of loads from the lintels or arches through the jambs of the openings (fig. 201).


Fig. 201: Raising the masonry to the level of the window sills.

Arches

In order to fully exploit the principle that compressed earth block masonry works in compression, whilst at the same time aiming for economical use of reinforced concrete, the openings are spanned with shuttered arches.

The height of the verandah, traditionally low, enables semi-circular arches to be used, the spring point of the outer posts being a little bit lower in order to accommodate the roof slope (fig. 202).

ARCHES


Fig. 202: Masonry raised as far as the top of the door and window arches.

For the housing block, the height below door arches has to be at least 2 metres. The so-called Dutch (i.e. «flatten») door and window arches, are located at the same height. Only the spans differ: 79 cm for the windows and 94.5 cm for the doors. These spans are dictated by the coursing of the arches: the aim is to achieve high quality masonry with the height of the arch, from the intrados at the spring point to the extrados at the key-stone, contained within the height of two courses of earth blocks.

The location of the openings, which are sufficiently far one from the other and sufficiently far from the corners of the building, together with the buttressing of the reveals of the openings and the two courses of masonry above the arches (post-compression), give good equilibrium and an even spread of loads.

Ring-beam

The thinness of the walls (14 cm) results in a slenderness ratio risk which is overcome by the buttress on either side of the openings and the reinforced concrete ring-beam. The latter goes around the top of all the walls including the arch masonry of the verandah. It is poured into a correctly bonded lost formwork made from earth blocks. The principle adopted is that of a course of headers, balanced on top of the wall, and then a double course on bricks laid on their side, "face on", to form the sides of the shuttering (fig. 203).

RING-BEAM


Fig. 203: Masonry of the lost formwork for the ring-beam using header blocks (bottom of the formwork) and blocks laid "face on" (sides of the formwork).

Roof structure

The local wood species on Mayotte do not give good quality building timber and it is always necessary to resort to imported wood (from Africa and Malaysia). In order to reduce this dependence on imported wood, the building solutions adopted for the roof structures of the very low-cost housing are simplified, notably to avoid the use of trusses.

The roof structure of the "Help in kind” house is therefore designed using the principle of purlins running directly from gable wall to gable wall (including the transverse partition) (fig. 204). The anchoring of the purlins to the tops of the walls is achieved using shuttered concrete following the slope of the gables and 6 mm diameter waiting rods which are then bent round the purling, the upper surface of which had been thinned down.

Note also the small corbel openings in the axes of the gable end walls designed to ensure upper ventilation of the roof.

ROOF STRUCTURE


Fig. 204: Laying the purlins from gable wall to gable wall.

Roof covering

The roof covering is simply achieved by laying galvanized steel roof sheeting, attached by bolts going through the purlins and covered with a water-proof cap. The attachment of the lower edge of the roofing sheets is reinforced at the level of the eaves purlin, which lays on the top of the verandah posts' at the end of the ring-beam, by 6 mm diameter rods laid during the pouring of the ring-beam concrete which are then bent round the eaves purlin.

ROOF COVERING


Fig. 205: Roof covering of galvanized steel roofing sheets with peripheral overhang.

Gradual improvement

The Mayotte Housing Company (SIM) very quickly found itself managing a larger and larger number of requests for access to "Help in kind" properties. Actual building immediately followed and very quickly achieved a cruising speed of approximately 500 to 600 houses per year (today, nearly 1,000 per year). Simultaneously, the development of the building economy which this increasing activity generated brought economic and social spin-offs for the population who saw their income and therefore their savings capacity rise significantly. The emergence of a desire for better housing went hand in hand with this gradual improvement in economic conditions.


Fig. 206: Plan of basic Improved Help in kind " integrating a sanitary block

"Improved Help in kind"

For families with a greater savings capacity, SIM very quickly proposed a model known as "Improved Help in kind".

initially, this model included the integration of sanitary facilities into the housing block, sanitary facilities having previously traditionally been located at the far end of the "shanza" (courtyard) enclosure. This improvement was achieved by using a part of the verandah to house a toilet and shower with sewage water being drained out to a septic tank and soakaway,

Subsequently, the "Improved Help in kind" model was extended to include a third room and the possibility of building two verandahs, one facing "outwards" (towards public areas) and the other "inwards", i.e. towards the "shanza".


Fig. 207: Design of sanitary block and its evacuation system.


Fig. 208: Gradual integration of sanitation into the main building.

Rented accomodation as the spear-head of acceptability


MAYOTTE

When the compressed earth block industry was set up on the island of Mayotte in 1981 and 1982, although its development was being encouraged by the political will of local decision-makers and elected representatives, it was nevertheless not guaranteed. An important stumbling-block had to be overcome: that of acceptability. At first, the population of the island saw in the compressed earth block only a perpetuation of its own tradition of building with earth. This perception did not correspond to the idea people had of their own aspirations to modern housing, represented by the use of sand-cement blocks and corrugated iron. And yet it was vital to use compressed earth blocks, for economic reasons as much as for reasons of ecological balance, the island lacking its own sand. The technical quality of the material and the quality of its architectural use had therefore to be demonstrated in order to overcome this stumbling-block. The idea that the earth block was a "below standard" material, reserved only for the very poor, had to be eliminated. The approach thought up and immediately put into effect was to build rented accommodation destined for expatriate civil servants using this material. The Passamainti operation, undertaken in 1982, launched this and enabled the vital process of the earth block being assimilated into building materials "en dur" (modern) to take place.

RENTED ACCOMMODATION ON MAYOTTE

This project was launched in the context of a mission for building pilot housing which was implemented by CRATerre and the School of Architecture of Grenoble on behalf of the Mayotte Housing Company (SIM). The project, which included starting up of a pilot brickworks, was designed and implemented with the help of students from the school of architecture, and mobilized local skilled labour from among the islanders. The design of the eight houses included in the programme reflected the principle of echoing the layout of traditional housing (small, long houses and enclosed private courtyards known as "shanzas") and enabled building solutions to be developed (14 cm buttressed walls, earth block lost formwork ring-beam, anchoring of the roof structure using a system of wooden brackets, protective renders) which laid the foundations of techniques and an architectural and building vocabulary which was later to be used in subsequent generations of housing projects. A "language" which was very rapidly assimilated and also very rapidly overtaken by the blossoming of a genuine body of knowledge developed by architects settled on Mayotte and by the island's building craftsmen.

TECHNICAL FEATURES OF THE PROJECT

Rented accomodation built in 1982.

Habitable surface area: from 2 to 4 main rooms, i.e. from 48 to 74 m².

Number of rooms:

- T2, 48 m²: two rooms, one kitchen with storeroom, one shower-W.C. L-shaped verandah extension: 55 m².

- T3, 62 m²: three rooms, one kitchen with storeroom, one shower-W.C. L-shaped verandah extension: 65 m².

- T4, 74 m²: four rooms, one kitchen with storeroom, one shower-W.C. U-shaped verandah extension: 70 m².

- Enlarged T3 and enlarged T4: basically identical to T3 and T4, but with outside "paillote" (thatched shelter) type living-room extension.

Owner: "Societe Immobiliere de Mayotte" (Mayotte Building Company) or SIM

Design: CRATerre - School of Architecture of Grenoble Construction: Chazuli and Alifina contractors, Mayotte.

Foundations: in trenches with weak blinding concrete, then Cyclopean concrete made using local basaltic stones and mortar made from local gravel (known as "pozzolonas") and cement. Depth of foundations: approximately 40 cm.

Footings: Cyclopean masonry using basalt rubble stones laid in a gravel-cement mortar. Minimum height: 30 cm.

Wall material: cement stabilized compressed earth blocks (average 8% stabilizer), laid with stabilized earth mortar.

Nominal dimension: I × w × h = 29.5 × 14 × 9 cm. Thickness of walls: 14 cm. Bonding pattern: stretchers.

Stability of walls: projecting buttresses alongside door and window reveals, bonded into the wall. Thickness of buttress: 29.5 cm.

Ring-beam: all the way round the peripheral walls and the partition walls, in reinforced concrete with a single layer of iron rods, poured into lost formwork made from stabilized compressed earth blocks. Height of ring-beam: 15.5 cm.

Roof structure and covering: sawn wooden purlins running from the gable-end walls to the partition walls. Eaves purlins anchored to the ring-beams on waiting rods laid during the pouring of the ring-beam. Covering: galvanized steel roofing sheets bolted through the purling.

Opening lintels: replaced by compressed earth block Dutch arches.

Finishings. Floor: gravel mortar and cement on compacted infill material. Renders: highly diluted external soil-cement wash or paint. Optional interior paint.

Architectural design of the housing

The eight houses built at Passamainti showed the possibilities of progressive extensions starting from a simple basic “Help in kind” type house which corresponded to the island's very low-cost housing. The first improvement consisted in adding a kitchen-sanitary block located at right angles to the main housing block and looking out over the interior private courtyard. This addition continued to keep the toilet as far as possible away from the living area and thus, whilst making a significant improvement, also satisfied the island habit of always banishing this area to the far end of the “shanza”. The second stage of change added a third room to the house, by extending on from the other two towards the “outside”. This T3 type already prefigured what was later to become the “Improved Help in Kind”, offered to the islanders who had more savings. The following stages consisted in gradually enclosing the central open area, i.e. transforming then L-shaped layout of the T2 and T3 into the U-shaped layout of the enlarged T3 and T4. The most particular characteristic of these houses, which had to meet the basic comfort requirements of a French expatriate community, consisted in the way in which the verandahs were used as genuine covered terraces, both spacious and serving as dining areas and living-rooms.

«SHANZA» ENCLOSURE

T3 HOUSING TYPE


Fig. 212: Plan with coursing of the first layer of blocks of the basic T3 type.


Fig. 215: Sections of type T3 and T4 houses, with verandahs facing "outwards" and towards the "shanza".

Building window-breasts

The reveals of the openings transmit directly and vertically the masonry loads taken up by the lintel or resulting from the forces exerted by the arches. This results in structural cracking of the breasts when these are bonded into the wall. This problem is resolved when the breast is built totally independently with a dry joint which is filled in later when the structure has finished settling.


Fig. 217: Building an independent window-breast using alternately full and half-blocks (sequence I to V).


Fig. 218: Building the butressed reveals of the openings. Note the thickness of the arch on the outside.

Building the arches

The stability of the thin, 14 cm thick walls and the even transmission of the forces exerted by the Dutch arches of the doors and windows are ensured by the building of buttresses as reveals for the openings. These buttresses are bonded into the masonry of the wall and form an orthogonal angle measuring 29.5 cm (i.e. the length of a block). The building of arches of the same thickness as these buttresses add an attractive feature to the elevation.

Design of the elevations

The elevations of the eight Passamainti houses use a very simple design. The aesthetic effect is achieved solely by the positioning of the openings, which are disposed symmetrically on either side of the central door on the "outward" side, and on either side of the main door on the "shanza" side. (The central door on the "outward" side could eventually become a window by infilling a window breast). To this symmetrical layout, is added the projecting effect of the buttresses on either side of the window reveals. The harmony of the large earth block exposed wall is expressed through the regular courses of blocks and the horizontality of the strip of ring-beam which also projects at the top of the elevations.


Fig. 219: Detailed coursing of the various elevations of the T3 type housing block.

Coursing the elevations

The working drawings for the structures include correctly coursed plans and elevations.

Each of the block courses is drawn, down to the individual block, allowing one to visualize all the bonding patterns and notably those relating to the building of the opening buttresses, the header and "face on" lost formwork of the ring-beam, as well as the toothing of the partition walls and of the gutter walls. It is thus possible to specify exactly the quantities for each elevation as well as for the plans, and to specify the number of full, three quarter and half blocks to be used on site. This gives an exact calculation and above all reduces waste when blocks are being cut.

Types of arches

These consist of small "Dutch" arches with a 94.5 cm span (for the doors) and a 63.5 cm span (for the windows), contained within the height of two courses of blocks. A single large Dutch arch per house, with a span of 156.5 cm (the «shanza» doorway) is contained within the height of 5 courses of blocks. Finally semi-circular arches are used for the ventilation of the sanitary block and the store-room. These simple forms enable shuttering to be easily rotated around all the buildings.


Fig. 220: Types of Dutch and semi-circular arches used in the project.

Claustras

The general idea of using earth block masonry claustras seemed of interest, on the one hand to economize on woodwork and on the other to exploit the aesthetic effect on the elevation and of the play of light and shade. These claustras are designed using a very common model borrowed from the classic vocabulary of the type but using thinner blocks (6 instead of 9 cm thick) in order to avoid a cumbersome effect. Later, however, this option was not selected by the tenants who preferred woodwork.


Fig. 221: Principle types of claustra used on the project for the room windows facing the "shanza" and for the ventilation of the sanitary block.

Ring-beam

The 14 cm thick compressed earth block masonry walls result from choosing to use a stretcher bonding pattern; this requires adding a peripheral ring-beam at the top of the walls to ensure their stability. In addition, this solution enables a system for adequate anchoring of the roof structure in this cyclone-exposed region to be incorporated. The intention to restrict the use of concrete and to obtain a satisfactory appearance leads to the choice of a ring-beam consisting of a single layer of 12 mm diameter rods with 6 mm stirrups, poured into an earth block lost formwork. The latter is built with a row of blocks laid as headers, balanced across the top of the wall (forming the bottom of the formwork) and two rows of blocks laid "face on" (forming the sides of the formwork) (fig. 223, sequences I to VI). Building this system requires the plan to be perfectly coursed (fig. 222) in order to guarantee the stability of the building system.


Fig. 222: Above, header course (drawing 11 of fig. 223). Below, the ring-beam sides made of two rows of blocks laid "face on". Note the use of 3/4 blocks at the comers of the building and at the junction of the partition wall with the gutter wall (drawings 111 to VI of fig. 223).


Fig. 223: Sequence for building an earth block masonry lost formwork for the ring-beam.

Anchoring the roof structure and ventilation cladding at the top of the gable ends.

The anchoring of the roof structure is achieved by using a fairly complex building system combining earth block masonry with the wooden elements of the roof structure. On the one hand, the gable wall masonry is reinforced in such a way as to ensure its stability against wind pressure, by making the vertical axis of the gable rigid. This consists in a post supported at its base on the thickness of the ring-beam and on the top of which rested the two ridge purling. This post is correctly bonded into the masonry of the gable (fig. 224). In addition, still at the level of the ring-beam and at three points corresponding to the vertical of the two intermediate purlins and of the two ridge purling, wooden brackets piercing the gable wall on either side hold the purlins in place with screwed braces (figs. 224 and 225). Firm anchoring is also ensured at the level of the eaves purlins by attaching them to the ring-beam using 6 mm diameter rods previously put into place during pouring and then bent back over the purlin, the upper part of which had been pared down. This system for anchoring the roof structure into the gable walls and the gutter walls (lower edge) proved very efficient when put to the test by the passage of cyclone "Kamisy" in April 1984. Finally, a system of cladding using overlapping wooden planks on a triangular structure attached to the anchoring braces provides ventilation at the top of the gable.


Fig. 224: Elevation and coursing of the block courses at the top of the gable wall to include a system of anchoring of the roof structure using braced brackets.

The principle of cladding used is simple and intends to ensure both sufficient ventilation in the hot season and protection from rainwater during the wet season and from dust during the hot season.

The anchoring brackets of the roof structure are also used to maintain a wooden triangular structure, at the top of the gable, which will support a cladding of wooden planks, the edges of which are indented to allow air-flow.


Fig. 225: Elevation and sections of the bracket anchoring system of the roof covering and of the cladding ventilation system.

Modulation of the plan

The eight-house programme completed at Passamainti was intended to address the needs of French families of different sizes working overseas. The modulation of the plan, from the basic solution of the T2 type house up to the enlarged T3 or T4 met this objective (fig. 226 to 229).


Fig. 226: Plan of a T2 type house.


Fig. 227: Plan of a T3 type house.

The principle adopted is to enlarge the plan of the living block, lengthways, thus respecting the traditional evolution of the island house which served as a reference point during the design stage of the project. This addition could be made directly and without introducing any major change between the T2 and T3 types (figs. 226 and 227). For the enlarged T3 and T4 types, extending the main living block lengthways is replaced by enclosing the initial L-shaped plan to form a new U-shape (figs. 228 and 229). This evolution is achieved simply by adding a fourth room or by the possibility of building, on a foundation already anticipated, an external extension of the living room in the form of a paillote (a thatched wooden structure).

In each of these various plans, the kitchen-storeroom/shower block remains unchanged, apart from the expansion of the dining area between the living block and the kitchen-sanitation block (fig. 229).


Fig. 228: Plan of an enlarged T3 type house (outside living room).


Fig. 229: T4 type house.

Finally, the habitable space of all of these houses is enlarged to great advantage by the covered verandahs facing the "shanza" (private interior courtyard). These give areas of shade and coolness which, whilst being outside, still preserve the intimacy of family life thanks to access using organic zig-zag fences and the "shanza's" organic perimeter fence (principles borrowed from island traditions).

Finishings and furnishings

As far as the interior furnishing of the houses was concerned, there were two possibilities. Either the gutter and partition walls could be left free allowing furniture to be positioned at will, or small dividing walls, indented first on one side then on the other, could be used to form cupboard alcoves. This second solution, which proves trickier to build, is however much appreciated by the occupants. The interior floor does not receive any special finishing treatment other than a floor paint on the cement mortar surface.

For doors and windows, single or doublepane woodwork are used; ventilation is achieved by slatted shutters or doublesided frames (windows) with three positions for adjusting the slope of the opening and thus modifying ventilation and lighting at will.

For the wall finishings, outside a highly-diluted soil-cement wash is used, and inside either white-wash or paint.

As for outside fittings, attention should be drawn mainly to the use of organic panels of "huanza" (woven coconut palm leaves) to build the access and to enclose the "shanza" with zig-zag fences.

Impact of the operation

Being close to the village of Passamainti the implementation of this operation had an immediate impact on the local population which was able to see for themselves the quality of the material and of the execution of the work. In addition, the building solutions adopted, which were innovatory, had important repercussions on the building methods used subsequently on Mayotte. Finally, the site allowed the first island contractors to be trained and since then these have worked regularly for SIM on social and rented housing programmes.

From traditional to modern


MOROCCO

Located in Morocco, a country with a rich tradition of earth building, the architectural heritage of which is considered to be amongst the most stunning in the world, the housing project implemented in Marrakesh - Hay al Massira paved the way for an updating of Moroccan skills and knowledge in an urban context and threw a bridge between traditional and modern. This building method is still well integrated into the rural economies of the southern regions of the country, but for several decades had deserted the towns which still, however, bore witness to both its utility and its excellence (the «medina» of Marrakesh for example). Moroccan towns are experiencing significant growth and contemporary building materials are often prohibitively expensive. It was in an attempt to find other solutions that Moroccan institutions decided, during the 1980s, to relaunch the use of earth in relation to housing in urban contexts.

FOUR HOUSES AT MARRAKESH HAY AL MASSIRA

Project context and objectives

Launched and implemented between 1983 and 1986-87, the Marrakesh - Hay al Massira project for the construction of earth block housing arose in the context of a bilateral cooperation activity between France (the cooperation experimental research programme, Rexcoop) and Morocco, on the initiative of an important governmental housing planner and estate establishment from the southern region, Erac-Tensift, in Marrakesh. This cooperation was founded notably on the basis of the French experimentation developed on the «romaine de la Terre» (Earth Domain) project of Isle d'Abeau (near Lyon, France) which inspired a similar approach amongst Moroccan land-use and construction decision-makers.

The Marrakesh project envisaged the construction of 60 «intermediate», type housing units in a semi-rural zone (the outskirts of Marrakesh) of high or medium quality image in urban or pert-urban contexts. The project aimed to up-date Moroccan skills and knowledge, hoped to help to overcome the barriers erected by builders and end-users, aimed to integrate earth building into a legal, judicial and technical framework and a genuine economic framework, and finally hoped to relaunch experimentation on the theme of the use of local materials and innovatory building solutions.

TECHNICAL FEATURES OF THE PROJECT

Experimental phase of the project: 2 houses with a total surface area of 305 m².

- Project funding: CIH - Credit immobilier hotelier (Hotel building credit).

- Research, experimentation and technical assistance funding: FAC - Fonds d'aide et de cooperation (Aid and cooperation fund), in the context of the French interministerial programme, REXCOOP.

- Owner: The regional land-use and building establishment of the Tensift region (Marrakesh), ERAC-Tensift and the Ministry of housing and land-use, Rabat, Morocco.

- Design: Abderrahmane Chorfi, Architect, Rabat, Morocco; with technical assistance from Jean-Vincent Berlottier, architect at Bourg-en-Bresse, France.

- Implementation: ERCT, Elie Mouyal, architect and contractor, Marrakesh, Morocco.

- Coordination of technical and architectural assistance and training: CRATerre, Grenoble.

- Technical assistance with building materials: Altech company, Embrun, and the School of Architecture of St-Etienne, France.

- Assistance with follow-up of the operation: GAITERRE, Marrakesh, Morocco.

- Technical evaluation: DCTC, Rabat, LPEE, Casablanca and the regional delegation of Marrakesh, BET Promoconsult, Casablanca, Morocco.

- Wall construction materials: stabilized compressed earth blocks (29.5 × 14 × 9 cm) and vibration-compacted earth blocks (20 × 20 × 40 cm).

- Foundations: reinforced concrete (ground beams).

- Experimental building systems: earth block vaulting flooring supported by reinforced concrete girders. Spanning of openings using reinforced concrete lintels (for 20 × 20 × 40 cm masonry blocks) and using earth block depressed arches (for 29.5 × 14 × 9 cm masonry blocks).

- Updating of traditional technical solutions such as: interior plaster and «tadellakt» (closed quick lime) renders, floors in polished granite or cement tiles. Terraced roofs protected by a «dess» (earth and tamped lime mortar).

Architectural and building concept

The possible built surface area of the plots is 150 m², with potential for two storeys. The plan of the houses includes a 25 m² living room, from one to three 18 m² rooms, a 15 m² kitchen and a 12 m² bathroom-WC. The plan of the two houses is organized into three or four bays, two storeys high and is U-shaped, giving onto a terrace lending privacy, since it faces the rear, virtually blind, elevation of the previous house. The plan of the smallest, three bay, house corresponds to the use of a 40 × 20 × 20 cm vibration-compacted earth block. Access is through a ground-floor terrace, at the front, leading to a hall with the kitchen/living-room leading off on one side and the drawing-room on the other. A staircase give access to two rooms and a bathroom on the first floor.

The constructional aspect of this first three-bedroom (T3) type house, because of the use of a vibration-compacted block measuring 40 × 20 × 20 cm, ultimately looks similar to that of a building built from sand-cement blocks of the same common dimensions. The technical survey team (BET) who worked alongside the contractor indeed used entirely similar solutions, right up to the reinforced concrete corner stiffeners and the reinforced concrete lintels and ring-beams. The innovation here lays in the experimentation with 29.5 × 14 × 9 cm compressed earth block vaulting floors, shuttered and resting on reinforced concrete girders.


Fig. 234: Plan of house built in vibration-compacted blocks measuring 40 × 20 × 20 cm.


Fig. 237: Elevation and section M of house made from vibration-compacted blocks measuring 40 × 20 × 20 cm.

House in 29.5 × 14 × 9 cm stabilized compressed earth blocks

The second housing model designed by the architect Abderrahmane Chorfi follows the same principle of architectural design as that adopted for the previous house but is larger in size. A fourth bay is added to house the kitchen on the ground-floor, and an additional room on the first floor. This is a top quality image house, of the large four or even five-bedroom type (T4 or T5), given the possibility of using one of the ground-floor rooms as a bedroom. Access to the house is no longer via the terrace, but through the lateral elevation, kitchen side, through a little open entrance-way giving onto the hall.

From a building point of view, the use of 29.5 × 14 × 9 cm compressed earth blocks gives more flexibility and enables 29.5 cm thick masonry using a stretcher and header bonding pattern. This wall thickness means that reinforced concrete corner stiffeners are no longer needed, whilst using the same foundation and reinforced concrete ring-beam principles. The floors are also vaulted using earth blocks but using a different shuttering system: an axial course of earth blocks, supported by a plank held in place by props, serves to support blocks laid following an orthogonal symmetrical bonding pattern, the blocks being on their ends on this axial course and on the girders (see fig. 251).


Fig. 240: Plan of house built in 29.5 × 14 × 9 cm compressed earth blocks.


Fig. 243: Elevation and section of house built from compressed earth blocks measuring 29.5 × 14 × 9 cm.

Solar protection

Facing due south, the first floor room openings are exposed to a significant amount of direct sun all through the year. The elevations of the Hay Al Massira houses therefore require special treatment to attenuate this excessive exposure to light and heat.

The principle adopted by the architect is to use corbels bonded in such a way as to project from the partition walls of the bays of the plan. On these rested painted wooden sun-filtering shutters attached to a concrete corbel, which is in turn connected to the ring-beam. This sun-protection system also enhances the rather austere appearance of the elevation of these houses.

Reveals of openings

Two alternatives are used depending on the type of wall masonry. For the vibration-compacted 20 × 20 × 40 cm earth block masonry, the blocks made up the vertical jambs while the lintels are traditionally built from reinforced concrete. The window-sills are also made from reinforced concrete using an element moulded on site incorporating a drip. This element is laid on a mortar bed reinforced with three 8 mm diameter Tor-steel bars which extend 90 cm into the masonry at the foot of the jambs. This reinforcement enables any classic cracking of window-sills to be avoided (fig. 246). Once complete, the sides of these openings are protected all the way round, on the outside, with paint.


Fig. 246: Detail of moulded reinforced concrete window-sill and reinforcement of the receiving bed.

Parapets of roofs terraces

The periphery of the roof terraces is protected bye parapet built from 29.5 × 14 × 9 cm earth blocks laid as headers. The top of this parapet is protected by a cornice of fired bricks traditional to the Marrakesh region. The bonding of the fired bricks creates a slight corbel on either side of the parapet ensuring good rainwater run-off away from the wall. The top of the parapet is protected by a thickly mixed sand-cement mortar. On the inside, the parapet is given a surface protection of "dess" (fig. 247).


Fig. 247: Detail of the cornice of the parapet with its fired brick corbelling.


Fig. 248: Corbelling of the elevation with RC corbel for attachment of sun-filtering shutter.

Sun-filtering corbels

The system of elevation corbels, extending along from the slightly projecting partition walls, has a reinforced concrete corbel attached to the ring-beam which will enable the sun-filtering shutter to be attached, the slope of which ensures good rainwater runoff well away from the elevation.

One of the main experiments carried out on building solutions is es to use Barth block vaulting floors. Seeking a technical compromise between the traditional way and a more modern way of using such systems, the solution chosen uses the principle of vaulting using reinforced concrete girders which have traditionally been used for sand-cement or fired brick paved floors built on sliding shuttering or a system of axial planks supported by wooden props.


Fig. 249: Longitudinal section of the building principle of vaulting using reinforced concrete girders and compressed earth blocks.

Stability of the vaulting

During construction, the vaulting must be carried out in such a way as to ensure an even spread of loads on the girders and walls. All of the vaulting for a single room should therefore be done simultaneously, starting off from the same side of the room and progressing evenly across until they are completed at the other side of the room. If this is not possible, in order to economize on shuttering, temporary tie-beams will be needed to hold the beams in place (danger of slippage).

Infilling the extrados of the vaulting using stabilized cement mortar should also be carried out in such a way as to ensure a correct balance of the post-compression which will finally stabilize the vaulting.

Seeking solutions for low-cost housing in Guyana


GUYANA

This project was linked to the wish of local urban land-use decision-makers of the town of Kourou, Guyana, to try out new building industries other than traditional concrete or sand-cement blocks industries, which were equivalent to those developed on the French mainland. The target was to explore new technical and architectural responses which could be used for social housing programmes. Building with earth does not form part of the vernacular building culture of Guyana; this was therefore an innovation. The project was undertaken at the request of the Kourou housing company, SIMKO, which manages the capital assets as well as the houses and fittings of the great majority of the urban land of the town of Kourou, which has been owned by the National Centre for Space Studies, CNES, since its installation on this site in 1964.

TWO HOUSES AT KOUROU, GUYANA

Building with earth in a new town

The decision of CNES to install themselves at Kourou in 1964 was to be the starting point for the transformation of the site on the basis of a voluntary development approach linked to a single main activity: the space programme of the «Ariane» rocket. A town of totally new and modern design was entirely created in a matter of a few years. The great majority of the housing stock of the town consisted of recently-built houses, the design and building methods of which met French metropolitan norms and standards. Concrete and sand-cement blocks dominated the landscape. The very rapid increase in population over the course of the last twenty-five years, at a very fast rate, contributed to the explosive growth of Guyana's main urban centres (Cayenne, Kourou, St. Laurent). The more specific development of the commune of Kourou was confronting very high demand for lost-cost or very low-cost housing for which the architectural and building solutions being used at the time were not always economically or qualitatively satisfactory. It was in this context, that of a new town seeking to improve its response to the problem of low-cost housing, that this programme of building using compressed earth blocks was situated.

TECHNICAL FEATURES OF THE PROJECT

Programme: two experimental houses built from stabilized compressed earth blocks.

One three bedroom - type T3 - two-storey model with a 56 m² habitable surface area.

One four bedroom - type T4 - single-storey model with a 70 m² habitable surface area.

Owner: Kourou housing company, SIMKO.

Contractor: architects A. Corandi and B. Girard.

Technical and architectural assistance: CRATerre - School of Architecture of Grenoble.

Coordination of site work: P. Huon and S. Dours, building technicians.

Foundations: blinding concrete at the bottom of trenches in compacted ditches and R.C. ground beam poured in situ.

Pavement: on compacted sand infill covered with polythene film and 10 cm thick reinforced concrete with reinforcements alongside the ground beams and interior walls.

Masonry walls: in stabilized earth blocks measuring 29.5 × 14 × 9 cm. Bonding pattern used giving 14 and 29.5 cm thick walls.

Lintels of openings: shuttered earth block arches.

Ring-beams: reinforced concrete, 10 cm thick, at the top level of the first level. Poured into an earth block lost formwork. Sloping ring-beam at top of gable walls.

Floors: angelica wood joists anchored into the ring-beam concrete; local wood parquet floor.

Roof: braced truss structure, with purling, rafters and lintels. Verandah on mixed posts. Covering in split «wapa» shingles.

Woodwork: in planed red St. Martin wood, anchored into the masonry on wooden blocks built in with mortar.

Renders: highly diluted sand-cement wash on the exterior earth block walls.

Architectural design of two-storey T3 type house

The design principles of these two experimental houses are in response to the idea of building a double demonstration using two distinct types of plan: a two-storey type house and a single-storey type house. Each of these houses, however, meets the norms for special habitability of low-cost houses built in the urban area of the commune of Kourou.

On the two-storey type house, the principle of a simple, double-slope roof with a high gable wall is used; this means that the house could in the future be extended on either side of the gutter walls by adding on one or two supplementary bays. Linking up with the basic house could be achieved through existing openings, doors or windows with independent breasts which could be removed. The other main design principles relate more to the question of climatic suitability in this tropical area marked by alternate wet and dry seasons. A large roof overhang ensures shade and protection from the rains. Natural ventilation through openings located on all sides, and fitted with adjustable glass plate or wooden slats, raises comfort levels in the hot, wet season.


Fig. 257: Principle of ground-floor layout of T3 type two-storey house.

The visual attraction of this simple design is enhanced by the Juxtaposition of the exposed earth block wall and the local wood used for the roof structure and covering, for the slatted ventilation shutters and for the fretted woodwork imposts. The use of wide roof overhangs, verandahs and fretwork has its origins in traditional Creole architecture.


Fig. 260: Plan of ground-floor land first floor of T3 type house.


Fig. 261: East and north elevations. Note the relative height of the «wapa» shingle roof.


Fig. 262: West and south elevations: access to the main elevation is by a small stepped verandah.


Fig. 263: Plans of foundations. Above, blinding concrete poured into gullies on which rests a reinforced concrete ground beam (lower plan).

Foundations

All organic matter is removed from the top of the natural terrain which is thoroughly cleared. Trenches in the form of gullies are dug to a depth of at least 20 cm below ground level and then compacted and moistened before pouring the blinding concrete (15 cm deep). A reinforced concrete ground beam is then poured in situ on top of the blinding concrete to a height of 40 cm above ground level, thus also serving as a footing. The thickness of this ground beam corresponds to the depth of the earth block walls (either 14 or 29.5 cm) and of the projecting angles of the masonry sides of the openings (29.5 cm, see on the plan for the blinding concrete, fig. 263). The pavement is made from concrete on a grid reinforcement, poured to a thickness of 10 cm on a sand infill compacted in layers of 10 cm and covered over with a polythene film. The reinforcement of this pavement is attached to that of the peripheral ground beam by bent reinforcing rods. All the infill material is treated for termites using an approved product.

The various design configurations of foundations using blinding concrete surmounted by a ground beam are shown in the drawings of fig. 264. Note the adjustment of the thickness in relation to that of the earth block walls. The plans of fig. 263 also reflect these variations in thickness (in the upper plan, with the ground beam being thicker alongside the projecting reveals of the openings). The use of this system is justifiable given the mainly sandy terrain, the loadbearing capacity of which has been estimated at 1 kg/cm².


Fig. 264: Types of foundations and their variations depending on the thickness of the walls and the principle of a pavement over compacted.


Fig. 265: Coursing of the bonding of the CEBs for the wall masonry of the ground floor. First course (top plan), second course (bottom plan).

Fig. 265: Building the masonry for the compressed earth block lost formwork for the ring-beam. Particular care is taken to follow the exact bonding pattern as this formwork will remain visible and will form part of the horizontal band at the height of the first floor flooring in the exposed wall. The size of the ring-beam is 15.5 cm (wide) by 15.5. cm (high). The ring-beam concrete is dosed at 350 kg/m³ reinforced with four 8 mm Tor-steel bars. For the sloping ringbeam of the gable walls, the reinforcement consists only of two 8 mm Tor-steel bars laid in 10 cm thick concrete.

Wall masonry

The masonry of the earth block walls is carried out using a bonding pattern of stretchers for 14 cm thick walls, with full, three-quarter and half modular blocks, depending on the configuration occurring at the angle of the reveals of the openings or the junctions between the gutter and the partition walls. The interior partition wall, which would support the first floor flooring, is bonded using double course headers and stretchers (known as French bonding) making it 29.5 cm thick.


Fig. 266: Course of header blocks forming the bottom of the formwork for the ring-beam.


Fig. 267: Course of blocks laid «face on» forming the sides of the formwork for the ring-beam.

Ring-beam

The reinforced concrete ring-beam, at the height of the first floor flooring, is poured into lost formwork built from earth blocks. A first row of headers is laid, projecting equally on either side of the 14 cm wall, or across the top of the 29.5 cm wall, to serve as the bottom of the formwork and to support the thinner blocks laid on tinier sides «face on» and forming the sides of the formwork.


Fig. 268: Coursing the bonding patterns of the first floor walls. First course (top plan), second course (bottom plan).


Fig. 269: Section of masonry structure, floor and
roof structure.


Fig. 270: Laying plan of floor joists.

Joist and parquet flooring

Fig. 271 shows in detail, in plan and section, the building system used for the floor which consists in loadbearing joists running from the gutter walls to the partition wall. The bay of these 7 × 15 section angelica wood joists has an inter-axis of 56.7 cm and 47 cm on either of the bracing tie-beam of the roof structure; this tiebeam forms part of the joist system and takes up the purlin brackets of the roof overhang of the gutter roofs. This inter-axis of the joist system is modified alongside the trimmer joists of the staircase which supported the hallway floor at first floor level (68 cm and 87.5 cm).


Fig. 271: Plans and detailed sections of layout of floor joists.

The floor joists are anchored to the reinforced concrete ringbeam using irons staples or specially shaped fixing plates (fig. 272).


Fig. 272: Detail of systems for anchoring joists into the wall masonry.

For correct execution of this kind of flooring, the block courses on which the joists rests have to be perfectly coursed and drawn up beforehand and the points where they passed through the wall anticipate in order to ensure that blocks are cut with minimum waste.

ANCHORING THE JOISTS

The wind bracing of the structure of the floor is ensured by good anchoring of the joists into the walls, at the level of the ringbeam and by laying a parquet floorcovering consisting of nailed tongue and groove planks.

Vertical section using the principle of anchoring with a metal fixing element (upper part) or a 8 mm iron staple (lower part). Finished off with mortar infill.

Reveals of openings

A two-fold approach to the sides of the doors and windows is used, reflecting the use of Dutch arches on the ground floor (dictated by the need to set the height of the arches in relation to the ring-beam), and of semi-circular arches on the first floor, (the keystone height of which could be easily contained within the height of the gable wall). The reveals of these openings are either projecting (in the form of masonry reinforcement) or flush with the wall, giving a double configuration to the bonding of the arches, the blocks of which are laid either with the end visible, 14 cm thick, (Dutch arch with projecting buttress) or with their longest side visible, 29.5 cm thick, (semi-circular arch flush with the outside wall). The woodwork frames were attached to the shaded blocks (fig. 273) which show the location of wooden blocks.


Fig. 273: Coursing of elevations for accurate openings.

Types of arches

The various types of arches for the doors and windows, Dutch or semi-circular, use spans compatible with perfect bonding with previously coursed walls. The drawing of the arches, on the elevation, also shows exactly how the thickness of the arches is included within a precise number of earth block courses, from the intrados at the springpoint to the extrados at the keystone. The blocks used to build these arches are thinner (6 cm) with the exception of the keystone (9 cm).


Fig. 277: Drawings of the complete range of door and window openings with Dutch or semi-circular arches.

Woodwork

A Guyanan red-wood, known locally as red «Martin» wood, is used for the manufacture of the doors and windows. Their design is based on the principle that frames have to made to the correct width to be flush with the inside and outside walls in order to limit any later danger of degradation of the wall. Joint-covers give a perfect finish.

The frames measuring 145 × 45 mm for the 14 cm thick walls receive a fixed or opening chassis with slats 35 × 15 mm, on the inside of the frame. The windows have either «nacos» type glass slats or wooden ones. For each window, a fixed wooden fretwork impost is shaped to fit the arch. This provided permanent ventilation. The doors are designed using the same system but with fixed panels with slats which also allowed ventilation.

The frames are attached using two types of system. One with wooden blocks which replace earth blocks in the jambs to make it easier to use screws or nails, the other in the form of metal fixing elements integrated into the mortar layers. Both systems can be incorporated as the walls are going up (fig. 278 and 279).


Fig. 278: Elevation and vertical section of a «nacos» window with fretwork impost, on the first floor.


Fig. 279: Detail of system of attachment using metal elements in the mortar.


FIGURE

Architectural design of T4 type house

The second house uses a single-storey design. This long house can in effect be seen as a basic T3 (three-bedroom) type house capable of becoming a T4 with an entrance porch. This simpler design has direct repercussions on greater simplicity of building systems. The wall masonry is entirely realized in loadbearing walls and 14 cm thick partitions, using 29.5 × 14 × 9 cm blocks in a stretcher bonding pattern. The stability of these thin walls is ensured by buttresses on either reveal of the openings which enable independent window breasts to be built with dry joints with a view to overcoming the risk of structural cracks occurring alongside the window reveals and also the risk of shrinkage cracks in small masonry elements. The steep double-sloped roof allows for the future possibility of laying a joist floor to convert the eaves into useable space thus increasing the interior size of the house.


Fig. 280: Coursed plans of long T4 type single-storey house.


Fig. 281: Elevations of the four elevations of the T4 type single-storey house.

Architecture for public buildings


SENEGAL

Innovation in a rural area

Senegal is a vast country with a tradition of building with earth which is still visible today in most rural housing; but major changes are apparent occurring not only in building materials (with the sand-cement block and corrugated iron replacing earth and thatch) but also in the shape of the building, adopting models which are external in origin. These mutations are more and more influencing the rural built landscape which is swept up in the current of very rapid change emanating from urban models (Dakar). Nevertheless' in many situations far away from the capital, there remains a gap as far as access to modern building materials and technologies is concerned. These new «modern» solutions are still very often out of reach of the great majority of the population, physically (problems of transport) and economically (high cost). The use of local materials is once again being considered, but aiming at introducing significant improvements.

SOCIAL CENTRE AT OURO-SOGUI, SENEGAL

Social facilities in a village community

During the year 1987-88, the village community of Ouro-Sogui, a small town located in north-east Senegal, not far from the Mauritanian frontier and approximately 500 km from Dakar, designed a project for a social centre with guest house facilities. Anxious to use building and architectural solutions which would remain accessible whilst introducing significant improvements to traditional practices, the village decided to opt for using the compressed earth block which bridged the gap between traditional and modern building. This approach emerged through a link maintained between the village community and expatriate French residents who were able to obtain information about recent developments in building with earth. The Association for the development of Ouro-Sogui (ADO) contacted the municipality of the town of Valence (in Drome, France), which found the project attractive and rapidly responded to the appeal of Senegalese community by creating it own association «Drome Ouro-Sogui». It is in the context of these associations that this small bilateral cooperation project took place. The project requested the help of CRATerre-EAG and resulted in a combined construction, production and training site for the building of the social centre and guest house of Ouro-Sogui.

TECHNICAL FEATURES OF THE PROJECT

Social centre and guest house: total habitable surface area: 280 m², achieved in three work phases.

- First phase: pilot building and training phase whilst building the guest house: 44 m² of habitable surface area.

- Second phase: first workshop block: 83 m² of habitable surface area.

-Third phase: second, larger workshop block, meeting room and dry latrine facilities: 152 m² of habitable surface area.

Implementation: Association for the development of Ouro-Sogui (ADO)

With the help of the Drome Ouro-Sogui association (ADOS) and of CRATerre-EAG.

Construction: local masons and labour.

Foundations: Cyclopean concrete poured into trenches dug in previously compacted gullies: lateritic rubble stones and mortar dosed at 150 kg/m³.

Footings: three courses of compressed earth blocks stabilized at 8% and laid in an earth mortar stabilized at 10%.

Wall masonry:

- External walls: compressed earth blocks stabilized at 4%, laid in earth mortar stabilized at 6%. Block dimensions: 29.5 × 14 × 9 cm. Walls built 29.5 cm thick using a header and stretcher bonding pattern.

- Internal walls and partitions: in compressed earth blocks (as for external walls) but 14 cm thick using a stretcher bonding pattern.

Ring-beam: made from wood, using 27 mm local hard red-wood planks. Wood treated against insect and termite attack.

Roof structure: made from wood, using 22 cm wide local hard red-wood planks. Rafters made from planks previously sawn lengthways into 11 cm widths and nailed into place. 6 × 8 mm purling. Gable-end rafters fixed to the wooden ring-beam. 22 cm local hard red-wood edging planks, sawn down into 11 cm widths.

Roof covering: 23 mm galvanized corrugated iron sheeting 200 x80 cm.

False ceiling: woven organic material (e.g. reeds or palmyra branches).

Architectural design

For reasons linked to the introduction of a new building material and new building techniques, combined with the need for an overall cost which remains within a cheap and accessible range, the architectural design of the project choses a simple approach. In addition, on-site training as well as the time-tabling of the project in several phases make it vital to consider building approaches which would be easily assimilated and reproduceable by the local population. The building and architectural concept of the project was tried out during the building of the guest house. This consisted in a double bay system, with a covered verandah, the longest sides of which correspond to the direction in which the rafters of the roof structure are laid, suggesting the principle of future extensions lengthways by adding further bays. Only the masonry of the peripheral walls is loadbearing and supports the roof rafters, the interior walls serving only to divide off spaces. Buttresses on the outside elevations help to improve the stability of the walls and to take up the roof rafters using braced double-legged brackets. For later phases of the building, the same building and architectural solutions were adopted, which ensured good quality workmanship after the first phase of experimentation, of training and of acquisition of knowledge and skills on the part of the local population.


Fig. 284: Site plan for the project as a whole.


Fig. 285: Plan of first phase of work: guest house and first workshop block.


Fig. 286: Guest house: plan of masonry walls 29.5 and 14 cm thick.


Fig. 287: Guest house: plan of Cyclopean concrete foundations.

Climatic adaptation

The north-east region of Senegal is marked by a rainy season from May to October with maximum temperatures reaching 40°C and relative humidity varying between 60% (min) and 100% (max). The prevailing winds, which bring rain, blow from the south-west. This wet season is succeeded by a hot, dry, very sunny season from November to April, with temperatures easily reaching 40° C. The «harmattan» wind which then blows from an easterly northerly direction, accentuates these dry conditions and raises a great deal of dust. The proximity of the desert regions of Mauritania explains the wide temperature range between day and night time.

These extreme and markedly seasonal climatic conditions demand that buildings be particularly well adapted from a climatic point of view.


Fig. 288: Elevation of elevations of guest house.

- There must be minimal exposure to bad weather and direct sun. An option meeting this requirement is to be closed to the east (exposure of blind gable walls), protection from the sun for south-facing walls (wide roof overhangs or a verandah), and protection from dust coming from the north.

- Natural ventilation must be used to the full with north-south breezes blowing through the building, shaded areas stimulating convection of the elevation, pierced openings but which still offer protection from dust, and high ventilation beneath the ridge to enable trapped heat to escape.

- Thermal inertia must be exploited notably to lessen the temperature differences between day and night time. The 29.5 cm thick masonry fulfils this role by retaining heat accumulated during the day.

Nailed wood roof structure

The principle of orienting the gable walls of the building on an east-west axis with a span between gutter walls of nearly 7 metres, prolonged by a roof overhang of 50 cm on either side suggest the need to design the roof structure using wooden planks nailed together. This approach can also be used, with the same attachment system, to build a ventilation ridge and bracing anchoring systems for attaching the rafters to the earth block walls.

The roof structure as a whole is made out of local hard red-wood planks 22 cm wide, sawn down lengthways into 11 cm wide planks. This is easier to assemble when laid out on a flat area using indicator wedges. To make them easier to transport and to put in place, the trusses are assembled in two halves. The end trusses are put into place first and then the intermediate ones. Rigidity is ensured by nailing on purlins using 6 × 8 cm battens. Each truss is attached to the masonry by bracing elements connected to a transverse bracket resting on the top of the elevation buttresses.


Fig. 289: Three transverse sections of the guest house, at different levels (see plan). Note the false ceiling of woven organic material.


Fig. 290: The north and south-facing elevations are designed in order to ensure maximum cross-ventilation. This is achieved by the openings (doors and windows) and by an upper ring of fixed open-work insets in the form of wooden frames to which are fixed organic material (e.g. reed or palmyra leaf) panels.

Walls-roof structure junction

The roof structure is held in place correctly notably by being placed on the gable walls which «brace», the thickness of the 29.5 cm walls. To this bracing system using trussed rafters is added the thickness of 22 cm local hard red-wood edging planks following the slope of the gable and acting as a formwork to pour a topping mortar between the trussed rafters, up to their uppermost edge. Anchoring within the gutter walls is achieved by using false slanting tension jambs, also bracing, which take up a vertical jamb linked to the trussed rafters and supported on the inner edge of the wall. The wooden pieces of the false brackets are screwed together and screwed into the masonry using rawlplugs.


Fig. 291: Section from gable wall to gable wall: Note the longitudinal rigidity through slanting pieces nailed into place between the tie-beam and the trussed rafters.


Fig. 292: Detail of support of false ceiling. The underface of the tie-beams of the different rafters of the roof structure enable small section supports for the false ceiling to be attached.


Fig. 293: bracing rafter of gable wall with false brackets for attaching to the wall.

Ring-beam - wooden lintel

A wooden ring-beam is placed on the walls; this also acts as a lintel for the external doors and windows at a height of 2.10 m above finished ground level.

The ring-beam is made out of 27 mm thick local hard red-wood planks which have been treated against insect and termite attack.

Two plank widths, 20 cm and 10 cm, are placed one above the other giving the ring-beam a total width of 30 cm. The planks are placed one above the other in such a way as to avoid joints occurring one above the other. They are then nailed together with 60 mm nails. At the corners and wall junctions, they are nailed together in the middle of the wood. To improve the connexion between the ring-beam and the masonry, with mortar, the surface of the planks is roughed down with an adze.


Fig. 296: Plan of laying of wooden ring-beam around the top of the 29.5 cm thick walls.

The ring-beam is prepared on the ground but attached to the walls and put into place on a bed of mortar.

The CEB, a vector of industrial cooperation


ZAIRE

At the request of the Association of African Architects, the United Nations Industrial Development Organisation (UNIDO), and the Centre for Industrial Development (CID), pooled their efforts to launch a programme for the promotion of industrial investment projects in the building materials sector in Africa. A meeting was then organized in France between African building promoters (from Benin, Cameroon, Congo, Guinea, Togo, Zaire), the CFATerre-EAG team and manufacturers of production equipment, under the patronage of UNIDO and CID, on the theme of investment criteria and technical selection of equipment for the earth building industry. On this occasion, it was decided to launch an industrial cooperation initiative with the African countries invited. In December 1988, SICAD, and then in January 1988, the General States of AFRICA BAT, enabled this cooperation project to take concrete form, notably with Zaire.

A SCHOOL IN KINSHASA, ZAIRE

Compressed earth block construction at the service of small contractor promotion

In Zaire, there is clear evidence of a significant deterioration in the national built heritage, in both rural and urban contexts where living conditions are often very precarious. To this evidence can be added that of an increase in the costs of building materials which are increasingly inaccessible to the population. The lack of foreign currency to encourage the importation of building materials or local investment limits the possibility of industrial development in the building sector. Faced with this situation, the state of Zaire has launched a national policy for the promotion of small enterprises with good job-creation potential, notably in rural areas. This policy also aims to mobilize the wide-scale use of low-cost building materials and technologies requiring little capital investment. With this in mind, consideration has been given to transferring compressed earth block technology, at a decentralized level, to small contractors and local communities. Nevertheless, such a transfer could not be envisaged without a preliminary phase of information and technological training, in aspects of both production and construction. This then was the aim of this pilot project for a school in Kinshasa, in the context of a joint programme run by UNIDO/CID/Wallone region/CRATerre-EAG, together with 10 Zairian contractors, on the «Promotion of industrial cooperation in the building materials sector».

TECHNICAL FEATURES OF THE PROJECT

School project, combining production, training and site work on the production of earth blocks (training in a brickworks), with the design and construction of a demonstration building.

Project implemented with the support of: UNDP, the Department of Public Works, Urbanism and Housing of Zaire, the Mama Mobutu Foundation and Appro-Techno.

In collaboration with: ANEZA, OPEZ and SOFIDE.

With the participation of the following companies: EGEDEZA, GTAC, LOGEC, FINDATION, MONY, NZOLANTIMA, LA SIDELA, TRAGEMA-ETAZ, and the following NGOs: ECZ and the Salvation Army.

Building: neighbourhood school consisting in one 52 m² classroom.

Foundations: Reinforced concrete with peripheral ground beams, on a rubble infill, crushed and tamped.

Wall masonry: compressed earth blocks measuring 29.5 × 14 × 9 cm. Walls 29.5 cm thick, using a header and stretcher bonding pattern until the 7th course, then 14 cm thick until the top edge of the wall (see coursing plans).

Roof structure: central wooden truss with trussed rafter and bracing tie-beams. Exterior prolongation with overhang brackets for the roof overhang and small lateral porches. Roof covering: galvanized corrugated iron sheeting.

Architectural design

The pilot building undertaken in Kinshasa was the first phase of the building of a much larger number of schools. The site plan (fig. 301) shows the layout of a group of four classroom modules designed using the same building and architectural principles as module 1, which was built during the pilot phase. To this group of classrooms is added an administrative and service building which repeat the main features of the classrooms, whilst using a larger, tripped roof. The building principles used by the project are designed to be easy for the «trainee» enterprises to build them, whilst at the same time demonstrating a configuration which could be used to implement various project designs. The 29.5 and 14cm thick masonry walls, using vertical stiffening in the form of buttresses or pillars integrated into the walls prove well suited to larger sized buildings and provide a suitable solution to ensure the stability of the walls, notably to overcome problems of relative height to width. The roof structure, with a central truss and purlins resting on the gable-end walls, includes overhang brackets to support a roof overhang which provides protection from the sun and from bad weather and is well suited to the climatic context.


Fig. 301: Site plan of the whole school project with its four classrooms and its administrative end service building.


Fig. 302: Plan of classroom with two lateral access entrances with porches. Note the possibility of using the wall-space between the buttresses for storage (shelving).


Fig. 303: Plan of foundations using compacted infill and reinforced concrete peripheral ground beams.


Fig. 304: Coursing of bonding pattern of the first four odd number courses 29.5 cm thick (footing).


Fig. 305: Coursing of bonding pattern of the first three even number courses 29.5 cm thick (footing).


Fig. 306: Coursing of bonding pattern of the next eight even number courses 14 cm thick with interior buttresses and stiffening pillars for the gable or to support the roof structure.


Fig. 307: Coursing of bonding pattern of the next seven odd number courses 14 cm thick with interior buttresses and stiffening pillars for the gable or to support the roof structure.


Fig. 308: Coursing of bonding pattern of the last three odd number courses 14 cm thick with buttresses, stiffeners and pillars up to the top edge of the wall.

THE BUILDING CONCEPT OF THE PROJECT

Wall masonry

The building of the masonry walls adopts the solution of a massive stabilized compressed earth block footing, built 29.5 cm thick up to the height of the window sills, i.e. up to the seventh course of earth blocks. The thickness of the window sills, built from fired brick, is included in the sixth course. From the eighth course onwards, the masonry is built up 14 cm thick, whilst at the same time taking care to ensure the stability of the walls, and their height to width ratio, by including in the thickness of the walls 29.5 cm thick buttresses located at the jamb opening angles. At the gable-end wall, an axial stiffening pillar 29.5 cm thick and 45 cm wide is bonded into the wall masonry.

Finally, two massive pillars, 29.5 cm thick and 91.5 cm wide, are also bonded into the gutter walls in the median transverse axis; these are designed to receive the bracing tie-beam of the roof structure.

This stability of the walls is also reinforced by using a peripheral ring-beam, poured at the height of the twenty-third course of blocks. The concrete for this ring-beam is poured into special compressed earth blocks, with longitudinal grooves in which lie a single layer of rods.

The classroom is extended in both directions from the gutter walls, on the classroom access side, by two small open verandahs, which are covered by a direct prolongation of the roof structure beyond the lower edges of the roof, thanks to a simple false console system, anchored into the masonry wall. These details will later be precisely defined.


Fig. 309: Elevation of gable-end elevation and main elevation of classroom.


Fig. 310: Transverse section showing the wall masonry and the roof structure.


Fig. 311: Longitudinal section of classroom. Note
the principle of a median roof truss end purlins resting on the gables.


Fig. 312: Plan of roof structure detailing the wood sections and the principle of horizontal wind-bracina by dridging the purlins.


Fig. 313: Elevation of roof structure and details of roof and verandah brackets.

Wooden roof structure

The roof structure is designed using the principle of a single median truss on which rest the purlins (assembled with nailed wooden gussets) which ran either side of it to join the gable-end walls. These purlins then support the rafters on which the roofing sheets are laid.

The roof structure is entirely built from local 7 × 15 wood, so that the truss have to be built using tie-beams and trussed rafters bracing the king post and the struts. All the parts are nailed together.

The truss is laid out, assembled and put together on the ground and then put into position, temporarily held in place by wooden props. The bracing tie-beam rests on the top of the masonry pillars intended for this purpose, but with wooden wedges in between. The 7/15 purlins are then laid and made rigid by nailing in the bracing elements on their upper edge, which hold them in position.

The overhang consoles of the roof along the gutter walls, as well as that of the two verandahs, are fixed to the bracing tie-beam of the truss by a vertical piece of wood on the outside of the wall. This vertical piece of wood is also strengthened bye horizontal piece of wood going through the wall and supporting the slanting part of the bracket. Two 7/15 exterior bracing posts keep the verandah roofs stable.


Fig. 315: Plan, elevation and vertical section of a «naco» frame window opening.


Fig. 316: Plan, elevation and vertical section of wooden door opening.

Openings

These use a classic design with independent masonry breasts for the windows and depressed arches for the lintels. Wooden frames fitted as the masonry went up and attached using barbed wire laid into the masonry mortar along the jambs receive the glass slatted «naco» frames or wooden doors.

Culture and architecture: a new birthright for earth


SAUDI ARABIA

The cities of contemporary Saudi Arabia reflect the main features of the «international style». And yet, hidden amongst high-rise offices or international hotels reminiscent of «down-town» American cities, there still sometimes exist old neighbourhoods, nestling around ancient palaces and mosques, which quietly restore the image of what was, only a few decades ago, Saudi architecture. The most ancient buildings of Riyadh, such as the military citadel of Al Masmak, or the nearby old historic city of Diraiyah, fifteen kilometres to the north-east of the capital on the Wadi Hanifa, and the houses of Najd are all built with earth. Similarly, the architecture of the regions of Najran and Assir, to the south, bear witness to an ancient and perfectly mastered art of earth building. The birthright of earth architecture in a resolutely modern environment is today linked to the revaluation of the country's cultural heritage to which Saudi Arabia is turning a new and carefully attention.

EXHIBITION PAVILION IN SAUDI ARABIA

Pavilion for a national traditional festival

The national traditional festival of Janadriyah (near Riyadh) is generally inaugurated during the last week of Shaban, just before the start of Ramadan. The event serves to reaffirm traditional values which are reflected in the festival by the expression of a multitude of craft activities which have been passed down through generations, such as cabinet-making, weaving, leatherwork, pottery, wood engraving and painting, dancing, singing and theatre. A large number of people from nearly every corner of Saudi Arabia assemble at Janadriyah to celebrate these values and this craftsmanship in a festive atmosphere. On the occasion of the 1988 festival, the General Secretary of the Royal Commission of Jubail and Yanbu was invited to set up a permanent exhibition of the regional products of these two towns. It was decided to adopt the idea of turning once again to the tradition of building with earth whilst adapting it to the present-day requirements of workmanship offered by contemporary technologies. The stabilized compressed earth block met this criterion and a project agreement was reached in December 1987, in the context of a collaboration between the French Embassy at Riyadh and the Royal Commission of Jubail and Yanbu.

TECHNICAL FEATURES OF THE PROJECT

An exhibition pavilion, with a covered surface area of 200 m².

Owner: The Royal Commission of the towns of Jubail and Yanbu.

Design: Ibrahim Aba-Alkhail, architect from Riyadh, in collaboration with CRATerre-EAG.

Implementation: CRATerre-EAG with the help of Saudi enterprises and masons.

In collaboration with: the Joseph Fournier University of Grenoble, the King Abdulaziz University and the King Saud University of Petrols and Minerals (materials analysis).

With the support of the department of international affairs of the Ministry of Culture, of Communication and of Major Works; of the French Embassy at Riyadh (cultural service); and of the Georges Pompidou National Centre for Art and Culture, Paris.

Construction

- Foundations: reinforced concrete ground beams.

- Floor: reinforced concrete.

- Wall masonry: stabilized compressed earth blocks measuring 29.5 × 14 × 9 cm. Loadbearing walls 29.5 cm thick using a header and double stretcher bonding pattern. 45 cm thick pillars supporting interior arches or reinforced concrete lintel beams over the interior patio. 14 cm thick roof parapets.

- Roofs: mixed system of terrace roofs, using compressed earth block vaulting and reinforced concrete girders, and compressed earth block cupolas (at the four corners of the building) on pendentives. Water-proof render using bitumen and cement mortar over mesh.

Architectural design

The architectural demands of the project are modest - no more than 200 to 250 m² and not very complicated. The requirement is for a design for a suitably lit exhibition area. Ventilation has also to be provided, with «naturally», inspired solutions being preferred to mechanical machinery. The programme insists on the design of a building in keeping with the expression of an architectural tradition which can be celebrated in the context of the Janadriyah festival, by emphasising the use of local materials and traditionally-inspired decorations, whilst at the same time not merely imitating traditional building forms and techniques.

The architectural aspect finally exploits the principal of a general plan in the form of a square, giving access to a succession of exhibition spaces around a central open courtyard (or patio) which can be used by visitors crossing or for external exhibitions. This inner-facing part is in perfect harmony with Saudi architecture. In addition it enables natural ventilation to be exploited, by playing on hot air convection and the air movement created between the small external elevation openings and the open courtyard. The wall mass, terrace and domed roofs provide thermal resistance in keeping with natural cooling principles.


Fig. 319: Plan of square exhibition pavilion, with cupolas at each of the four comers connected by vaulted spaces around an interior courtyard.


Fig. 320: Elevation of pavilion elevations and sections of exhibition galleries (M) and courtyard (BB) showing the use of flat and domed roofs.


Fig. 321: Coursing of wall bonding patterns and arch and cupola pillars, for odd number courses.


Fig. 323 a: Bonding patterns of pillar and of corbel (courtyard elevation).


Fig. 323 b: Bonding pattern of corbel.

Fig. 323 b: Bonding pattern of corbel.

The massive pillars 45 cm thick and 1.07 cm wide which support the concrete lintel beams at the centre of each interior elevation of the courtyard consist of 24 courses of blocks, taking them to a height of 2.64 m. The bonding pattern uses headers and stretchers, laid at right angles to each other from one course to the next, with 3/4 blocks used to face the sides of the pillars. the bonding pattern for the corbels at the top of the pillars in four courses (25 to 28) uses the same principle with more 3/4 blocks for the last course, the widest, beneath the concrete beam.


Fig. 324: Coursing of wall bonding patterns and arch and cupola pillars, for even number courses.

Ring-beam

The design of the vaulting roof system for the flat roof terraces and of the cupolas at the four corners of the building, all heavily loaded with stabilized compacted earth, exert strong forces on the walls and demand the use of a ring-beam. This overcomes any risk of structural cracking and directs the downward transmission of loads and forces vertically onto the walls. Special ring-beam blocks are made, with a longitudinal gully to incorporate a classic reinforced iron ring-beam with 2 sayers of 8 mm diameter rods and 6 mm stirrups every 30 cm.


Fig. 325: Detail of ring-beam design.


Fig. 326: Detail of water-proofing of flat roofs.


Fig. 327: Detail of working drawing for foundations.

Water-proofing the roofs

This is done using the classic way, i.e. tamped stabilized earth followed by a layer of cement mortar, of bitumen felt and of rolled gravel. The sides of the cupolas are infilled until the surface of the roof is levered with their summits so that they can receive the same water-proofing treatment.

Water evacuation

Terrace roofs and vault and dome roofs pose a major problem for good drainage and rainwater runoff. In order to ensure good runoff, the spaces between the sides of the domes and the walls are filled with compacted earth, till they are flat and levered with the summit of the cupolas. Water-spouts are used for each roofing system separately.

The projection of the water away from the external wall is ensured by the large size of the water-spouts and their position on a corbel, on the elevation, using a special block shaped to take the slant of the spout, which both improves their stability and increases their length accordingly. Particular care is taken with the waterproof coating of the water-spouts, with interior facing, on the roof side, with multilayer protection and with a sandcement mortar.


Fig. 332: Vertical section of the external wall from the ring-beam to the merlon.


Fig. 333: «Exploded» view of the masonry structure of the pavilion.

The finishings of the building

Particular care is taken with the finishings of the exhibition pavilion as a whole. Lighting combines artificial lighting, with spotlights placed under the vaulting and at the springpoint corbels of the pendentives of each of the cupolas, with natural light from the interior patio. Painted bands of traditional motifs inspired by the decor of the dwellings of the ancient city of Diralyah (located 15 km north of Riyadh), as well as the decoration of the small triangular ventilation openings, lend a traditional touch, but not to excess. Finally, the great circular doorway of the main entrance to the pavilion is also richly decorated with multicoloured geometrical motifs, in the form of arabesques in the great tradition of Saudi painted decoration. This very high quality work is carried out by the Saudi artist, Ali Al Rezeza, who contributes the sculpture of the plaster mouldings all around the entrance doorway.

The exhibition and its impact

Traditional craft products from the region of Jubail and of Yanbu (weaving, pottery, leatherwork, tools, arms) from various periods were assembled during the construction of the pavilion and then exhibited, together with photographs showing the history of the two towns. A special section of the exhibition was devoted to the story of the construction of the pavilion and proved of particular interest to the public. A great many people visited the exhibition, confirming the favourable impact of this demonstration operation, which had both a cultural and a technological dimension.

TO PREVIOUS SECTION OF BOOK TO NEXT SECTION OF BOOK