Back to Home Page of CD3WD Project or Back to list of CD3WD Publications

CLOSE THIS BOOKCompressed Earth Block - Volume I. Manual of production (GTZ, 1995, 104 p.)
Annexes
VIEW THE DOCUMENTCalculation of stabilizer quantity
VIEW THE DOCUMENTBlock-breaking apparatus for use in brickworks
VIEW THE DOCUMENTFlat wheelbarrows
VIEW THE DOCUMENTScreen and measuring box
VIEW THE DOCUMENTEquipment for site tests
VIEW THE DOCUMENTSmall laboratory equipment
VIEW THE DOCUMENTExamples of record sheet

Compressed Earth Block - Volume I. Manual of production (GTZ, 1995, 104 p.)

Annexes

Calculation of stabilizer quantity

EXAMPLES OF CALCULATIONS (see page 35 for details of methods, formulae and notes.)

EARTH-CEMENT MIX

Given: rc: 1250 (kg/m³); rE 1300 (kg/m³)
C required: 6 %; containers: 60 l capacity wheelbarrows and 12 l capacity buckets.

Method 1

The weight of the cement is obtained, the volume of earth and the rate of stabilization having been decided: Vol.E = 2 wheelbarrow loads = 0.12 m³.

(formula 3)

The weight of the cement is rounded up to 10 kg (1/5 of a sack) to make it easier to measure out.

(formula 5)

Method 2

The volume of earth is obtained, the weight of the cement - 10 kg (1/5 of a sack) - having been decided.

(formula 4)

The volume is rounded down to 2 wheelbarrow loads of earth = 0.12 m³, which gives the same results as method 1 above using formula 5. The actual proportion used is therefore 6.4 %.

EARTH + SAND (OR GRAVEL) + CEMENT MIX

Given: rc: 1250 (kg/m³); rE: 1350 (kg/m³)
rS: 1450 (kg/m³); rE = 80 %, S = 20 %
C required: 5 %; containers = 60 l capacity wheelbarrows and 12 l capacity buckets. 1 wheelbarrow load = 5 bucket loads.

Method 1

The weight of the cement is obtained, the volumes of earth and sand and the rate of stabilization having been decided.

Vol.E = 1 wheelbarrow load + 3 bucket loads = 96 l capacity = 0.096 m³
Vol.S = 2 bucket loads = 24 l capacity = 0.024 m³

the total is Vol.E + Vol.S = 2 wheelbarrow loads = 0.12 m³.

(formula 6)

The weight of the cement is rounded up to 8.33 kg (1/6 of a sack).

(formula 9)

The percentages of earth and sand are rechecked.

(formula 10)

(formula 11)

Method 2

The volumes of earth and sand are obtained, the weight and the percentages of the cement, the earth, and the sand (or gravel) having been decided.

WC = 10 kg (1/5 of a sack), C = 5 %, E » 80 %, S = 20 %

(formula 7)

(formula 8)

Vol. E = 0.12 m³ (2 wheelbarrow loads); Vol. S = 0.024 m³ 2 buckets loads

(formula 9)

The percentages of earth and sand are rechecked.

(formula 10)

(formula 11)

CALCULATION OF QUANTITIES USING WET MATERIALS

Cement must be kept dry or it will not work. The other materials (earth, sand, etc.) on the other hand are rarely dry, whether in the quarry or when stocked at the brickworks.
For this reason we give below formulae which can be used to calculate quantities using wet materials. Their moisture content must, however, be known (fpr how to measure moisture content) and it must be remembered that dry and wet materials will vary greatly in looseness, which means that the volume of a dry material can be very different from its volume when wet and this must be observed.
The methods of calculation are the same as those explained on p. 35 and the formulae have been give the same numbers, followed by bis.

KEY

rWE:

density of wet earth (kg/m³)

rWS:

density of wet sand (kg/m³)

Vol. WE:

volume of wet earth (m³)

Vol. WS:

volume of wet sand (m³)

WE:

moisture content of wet earth (%)

WS:

moisture content of wet sand (%)

FORMULAE

Formula 3 bis

Formula 4 bis

Formula 5 bis

Formula 6 bis

Formula 9 bis

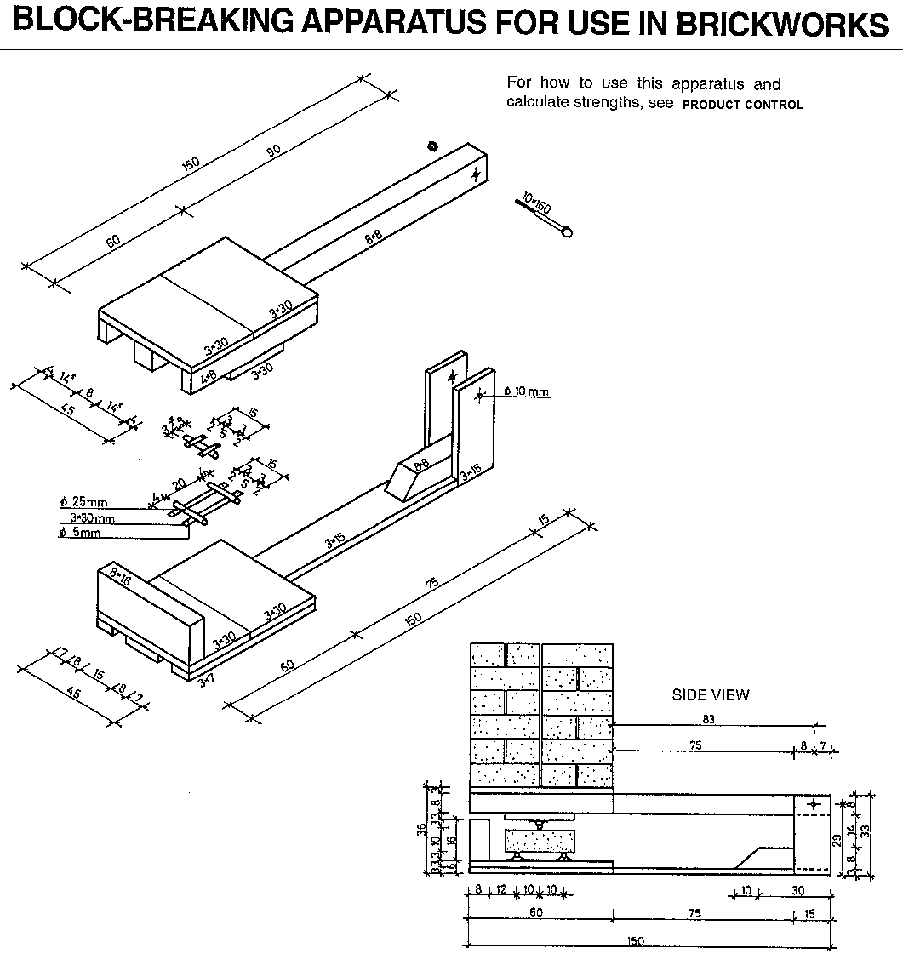
Block-breaking apparatus for use in brickworks


For how to use this apparatus and calculate strength see above.



This kind of block-breaking apparatus enables one to test for high strengths, as the pressure applied to the block is equal to five times the load. It should preferably be made out of metal, so that it is sufficiently robust but less bulky.

Flat wheelbarrows


FIGURE

Screen and measuring box


FIGURE


Overall height = 1 × 3 m. (including stand)
usable surface area of screen = 1.5 m²
grid size = 1.00 × 1.75 m
mesh size = variable depending on use = 5, 10, 15 or 20 mm.
Note: the stand is not nailed to the screen so that it can be tilted at different angles


FIGURE

Equipment for site tests

EQUIPMENT LIST

- 2 or 3 small containers
- folding or retracting measuring tape
- 5 or 6 transparent cylindrical jars of » 11 capacity
- 1 to 2 mm mesh sieve
- a source of heat (gas, electricity, kiln) + pan or dish
- watch or stop-watch
- graduated container (bucket, test-tube etc.)
- scales (approx. 10 kg capacity and accurate to + 10 to 100g)
- mason's set-square
- pocket penetrometer
- site block-breaking apparatus
- bradawl or styles
- metal brush
- trough min. I × w × h=50 × 35 × 15 cm

USE

- soil (touch test, cigar test, etc.)
- cigar test or checking blocks
- quick sedimentation test (for soil, sand, gravel)
- checking cement or soil preparation, cigar test
- measuring moisture content or salinity
- mixing and retention time
- checking capacities of measuring out containers
- moisture content, blocks, capacities, dry density
- parallelism of blocks
- compaction of blocks
- rupture test
- piercing blocks
- brushing blocks
- immersion and capillary absorption of blocks

Small laboratory equipment

Note: all the equipment listed for site tests is also needed. Only additional equipment is listed here.

EQUIPMENT

- 5 × 20 mm f sieves with 2, 1, 0.4, 0.2, and 0.1 mm meshes
- 1 rubber pestle and mortar
- 1 Casagrande apparatus
- 1 roll of pH indicator paper
- 1 hand-press for strength tests (optional)
- 2 metal troughs 30 × 30 × 8 cm
- 2 fine brushes for sieving
- 200 ml pipette
- 1 kiln or oven
- 1 pair of scales or dynamometer (1 to 2 kg capacity, accuracy ± 1g)
- 1 pair of 20 kg capacity scales, accuracy ± 10 to 50 g
- 20 to 30 small sample containers (aluminium or plastic)
- 1 stop-watch or accurate watch
- 1 small spade
- 1 flexible, 150 mm spatula
- 1 knife
- 1 × 140 mm o funnel
- 1 × 25 ml graduated tube
- 1 × 51 carboy
- 1 hydrometer, 1 thermometer
- 3 to 6 × 1 l test-tubes
- 1 × 30 × 30 cm sheet of glass

USE

- Particle size analysis
- Sedimentation analysis
- Atterberg limits
- Acidity
- Bending and compressive strengths

Examples of record sheet

The following pages show the record sheets which form the "memory'' of the production unit, and thus make it easier to manage, both in terms of quantity and quality. They were designed for use in a particular context and are not necessarily suitable for all production units. They are given here as examples and are shown in order of importance. Control sheets should be completed weekly or twice weekly. Record sheets and quality control sheets should be completed monthly and enable all the data collected in the follow-up and control sheets to be summarized.

The daily check sheet (see below) summarizes the daily activity of the production unit and enables all the critical data to be recorded (amounts used, personnel, equipment, production, disbursements).

The manufacturing control record sheet (see below) is used to check the quality of the ingredients and of the manufacturing procedures for each processing operation.

The product block control record sheet (see below) is used for a final check of the products obtained after processing, i.e. the compressed earth blocks.

The production and quantities consumed record sheets (see below) record inputs and outputs, as well as stocks in hand, and highlight any shortfalls (due to theft or loss).

The output record sheet (see below) enable one to measure the efficiency and regularity of the production unit and to observe rapidly any malfunctionning in the means of production or in its organization.

The quality control sheet (see below) summarizes internal checks (recorded on control sheets) as well as any external laboratory checks carried out.

The summary of outgoings sheet (see below) provides a monthly audit of all expenses linked to production (ingredients, running costs, etc.) and thus a quick check of the variable production cost.

The summary of receipts sheet (see below) provides a monthly audit of income and a quick check of the production unit's profits, by comparing outgoings and income.

The presenting the CEB production unit sheet (see below) provides an overall description of the unit (its statutes, infrastructure, means of production, targets, etc.); it records the history of the unit and tends to be aimed at an external audience (financial backers, clients, etc.).


FIGURE


FIGURE


FIGURE


FIGURE


FIGURE


FIGURE


FIGURE


FIGURE


FIGURE

TO PREVIOUS SECTION OF BOOK TO NEXT SECTION OF BOOK