Back to Home Page of CD3WD Project or Back to list of CD3WD Publications

CLOSE THIS BOOKDesign of a Suspension Burner System for Forestry and Agricultural Residues (NRI)
Suspension burner/timber drying system
VIEW THE DOCUMENTDesign
VIEW THE DOCUMENTDevelopment trials in Belize
VIEW THE DOCUMENTEconomic appraisal
VIEW THE DOCUMENTDiscussion

Design of a Suspension Burner System for Forestry and Agricultural Residues (NRI)

Suspension burner/timber drying system

Design

Following the success with the sawdust combustion trials, a commercial application in timber drying was considered for the unit. It was known that tropical countries trying to develop their timber industries are increasingly recognizing the importance of properly dried timber. The availability of timber drying facilities would assist timber producers and manufacturers in the developing world upgrade their timber products and enable them to be more competitive in foreign and domestic markets. Also, pressures on drying space and capacity of the developed countries are leading to increased interest in material dried at source. However, a major constraint in the running costs associated with many kiln designs is the amount of fossil fuel or fuelwood they consume to heat the air required for the drying operation.

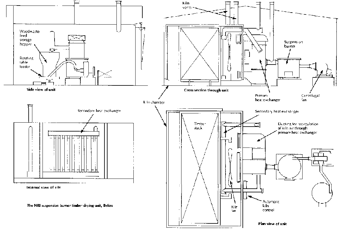
Against this background, contact was made with a leading United Kingdom timber drying company, GF Wells Ltd. Sheffield, to adapt their standard 16 m3-capacity timber drying kiln for operation with the suspension burner. The suspension burner, using woodwaste as a fuel, would supply heat to the drying kiln. Adaptation proved relatively easy, and a prototype design of a timber drying system for development trials, as shown in Figure 5, was produced. The unit was designed to suit small to medium-scale sawmilling and woodworking industries processing about 500-700 m3 of timber per year.

Development trials in Belize

A site for development trials was identified in Belize. The Belize Forestry Department had commenced an ODA-supported project to establish a small-scale furniture workshop for the manufacture of a variety of wood products. The supply of kiln-dried timber to the workshop was considered to be essential. The workshop would process annually about 500 m3 of softwood and mixed hardwoods which equated approximately to the output of a 16 m3 timber drying kiln. The workshop processing operations generated some 25% waste, in the form of sawdust and woodchips, and this would be sufficient to fuel the suspension burner and meet drying requirements.

Major components of the system were manufactured in the United Kingdom and shipped to Belize. The kiln chamber was constructed on site from locally produced concrete blocks. The system was commissioned by NRI, and an Associate Professional Officer was assigned to oversee operations and monitor progress during the one-year period of the development trials. During initial trials, modifications to the system were carried out to improve the overall performance of the system. This included the replacement of the vibratory feeder, which had difficulty feeding larger woodchips and wood shavings, by a turntable system.

The results of the trials with the modified system were impressive. Full control was maintained over temperature and humidity conditions inside the kiln to achieve the optimum rate of drying with minimum timber degrade. During the trials the operational output obtained from the burner was 300 MJ/h gross, at feedrates of 17-19 kg/h of woodwaste at 10-15% moisture content. This output was well within the burner's maximum design output of 500 MJ/h at feedrates of up to 28 kg/h. The unit supplied the required heat to the kiln at a rate of 230 MJ/h net, using a heat recovery system which operated at an 80% efficiency. It was regularly shown that 25 mm- and 50 mm-thick mahogany (Swietenia spp.) boards could be dried from 25% (dry basis) moisture content to 8% (dry basis) in five days, with the minimum amount of degrade. Santa Maria (Calophyllum brasiliense) and pine (Pinus caribaea) were also successfully dried during the trials. A summary of 7 timber drying trials and details of a typical heat balance and timber drying run are given in Appendix 3 (see p. 19).

Economic appraisal

An economic appraisal of the unit was carried out and it was concluded that this technology can prove to be an attractive commercial proposition. The main operating costs were recognized as labour, and electricity for driving the kiln fans - assuming that the woodwaste used to fuel the burner has little or no value. Various financial options were considered in the Belize situation and a revenue of 39 Belize cents per board foot, an acceptable charge in Belize, gave an internal rate of return of 66% and a payback period of 1.5 years.


Figure 5 Diagram of the timber drying system

Discussion


The one-year development trial gave very encouraging results. The suspension burner demonstrated its versatility in coping with, amongst other things, a range of: (i) woodwastes generated from the furniture workshop and (ii) operating conditions called upon by the various timber drying schedules. The burner required a minimum amount of maintenance and operator's attention. In the course of the developing trials the collaborating company, G F Wells, Ltd. ceased trading, and as a consequence various other avenues for the dissemination of this technology are being considered. It is planned that one option will be for a company to supply standard parts, enabling local construction and thus reducing costs.

TO PREVIOUS SECTION OF BOOK TO NEXT SECTION OF BOOK